¿Cómo distribuir un piso pequeño?

Necesito algo de ayuda con este plano, a ver que os parece

Luis
Luis preguntó sobre
Arquitectos
Actualizado Hace 8 años

¿Cómo distribuir un piso pequeño?

Necesito algo de ayuda con este plano, a ver que os parece

¿Tienes alguna pregunta?
Pregunta a la comunidad

6 Respuestas

Respuestas útiles 1
José Luis Búrdalo Martínez
José Luis Búrdalo Martínez
José Luis Búrdalo Martínez respondió... compás y cartabón (Alcalá de Henares, Madrid) compás y cartabón - hace 8 años

Buenos días Luis.

No se ha subido el plano... pruebe de nuevo si es tan amable.

Gracias. Un saludo.

Responder
¿Inapropiado? Reporta una incidencia
Luis respondió... Particular - hace 8 años

A ver si se ve ahora

Responder
¿Inapropiado? Reporta una incidencia
Luis replicó... Particular - hace 8 años

Se ve

¿Inapropiado? Reporta una incidencia
José Luis Búrdalo Martínez
José Luis Búrdalo Martínez
José Luis Búrdalo Martínez replicó... compás y cartabón (Alcalá de Henares, Madrid) compás y cartabón - hace 8 años

Buenas tardes Luis.

Ahora sí.

La verdad es que es una pieza pequeña y tal como está distribuido, es la mejor opción, únicamente se me ocurre cambiar la puerta abatible por una corredera para ganar algo de espacio perdido por el barrido de la hoja.

Gracias. Un saludo.

¿Inapropiado? Reporta una incidencia
Luis replicó... Particular - hace 8 años

Y este que tal, no sería mejor?

¿Inapropiado? Reporta una incidencia
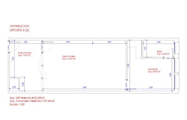
Luis respondió... Particular - hace 8 años

Hola

Este es el plano

A ver si se ve bien

Responder
¿Inapropiado? Reporta una incidencia
Deja tu respuesta

Para escribir una respuesta debes estar registrado. No está permitido incluir teléfonos de contacto, e-mails o enlaces a páginas web externas en este apartado, dicho contenido será moderado y eliminado.

Adjuntar fotografías
Pide presupuestos de arquitectos en tu zona

Escoge un tipo de trabajo

¿Eres un profesional? Consigue más clientes fácilmente
Registrarse como profesional