¿Pueden ayudarme para decorar mi salón?

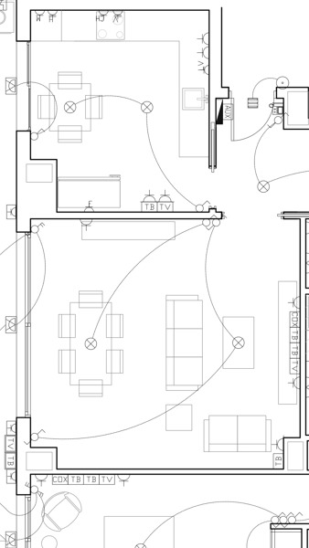
No tenemos clara la distribución del salón y tenemos que tomar decisiones respecto a puntos de luz y tomas de electricidad y TV. Es un salón cuadrado de 25m2. Hay una propuesta inicial pero no estamos del todo convencidos

Marga
Marga preguntó sobre
Decoradores
Actualizado Hace 7 años

¿Pueden ayudarme para decorar mi salón?

No tenemos clara la distribución del salón y tenemos que tomar decisiones respecto a puntos de luz y tomas de electricidad y TV. Es un salón cuadrado de 25m2. Hay una propuesta inicial pero no estamos del todo convencidos

¿Tienes alguna pregunta?
Pregunta a la comunidad

5 Respuestas

Respuestas útiles 2
José Luis Búrdalo Martínez
José Luis Búrdalo Martínez
José Luis Búrdalo Martínez respondió... compás y cartabón (Alcalá de Henares, Madrid) compás y cartabón - hace 7 años

Buenos días Marga.

Dependiendo de la orientación de la vivienda, que la luz natural que entre por la ventana ilumine la zona de la mesa, sobre todo si va a ser de uso habitual como comedor diario, es un acierto, pero sin embargo, puede generar reflejos en la zona de la TV... y si es usted más de comer en cocina y el comedor es de uso esporádico, se podría plantear girar toda la distribución de mobiliario 90º hacia la derecha, en sentido horario, para que la zona de TV quedase entre las dos mocheta de pilares y el posible reflejo en la TV sea más lateral, a poquito que gire o le de un poco de inclinación al TV si la cuelga, lo soluciona (además de cortinas) y la zona de comedor queda más cercana a la puerta y a la cocina.

Gracias. Un saludo.

Responder
¿Inapropiado? Reporta una incidencia
Aastha Rohatgi
Aastha Rohatgi
Aastha Rohatgi replicó... Design Station (Madrid, Madrid) Design Station - hace 7 años

Hola Marga, yo puedo ayudarte con tu casa con un diseño mejor con puntos de electricidad y otro conneciones cuando yo entiendo mejor la orientación de tu casa. Si quieres, puedes enviarme tu debujo completo de casa con las tallas de los habitaciones y podemos llegar una solución perfecto!!! Gracias

¿Inapropiado? Reporta una incidencia
Jennifer Estevez
Jennifer Estevez
Jennifer Estevez respondió... Kowa (Valdemoro, Madrid) Kowa - hace 7 años

Buen día Marga, se pueden evaluar muchas opciones de distribución según el plano que muestras, agregar más puntos de luz ya que lo que tienes es muy básico, replantear la ubicación de todo el mobiliario y que a futuro todo lo que se plantee quede funcional para todo el que habite el piso, pero tambien depende del presupuesto que se tenga para hacer estas modificaciones, el mover puntos de energía y el adicional iluminación que realmente se necesite teniendo una gran ventana que favorece a todo el espacio. Podríamos evaluar todas tus necesidades y presupuesto para plantarte todas las alternativas.

Que tengas un feliz día.

Responder
¿Inapropiado? Reporta una incidencia
Rocío Mos Ramos Tendero
Rocío Mos Ramos Tendero
Rocío Mos Ramos Tendero respondió... Mos estudio (Madrid, Madrid) Mos estudio - hace 7 años

¡Hola! Todo dependerá de la luz que queráis, vuestro estilo de vida y el uso de los espacios. Si veis mucho la TV, igual es mejor cambiar la distribución para que la tv no tenga reflejos, aunque esto siempre se soluciona con unas buenas cortinas que deje entrar la luz sin que afecte al día día. Lo mejor sería haceros una serie de preguntas para saber exactamente que necesitáis y poder hacerlo a vuestro gusto para que sea estético y funcional.

Un saludo

Responder
¿Inapropiado? Reporta una incidencia
Inspira Proyectos
Inspira Proyectos
Inspira Proyectos respondió... Inspira Proyectos (Madrid, Madrid) Inspira Proyectos - hace 7 años

Buenas Tardes, Marga. Como estas?

Depende mucho del uso. Si quieren tener un efecto decorativo, necesitamos una iluminación con puntos de distribución de decorativa y más acogedora. Si usted quiere utilizar el salón para la lectura por ejemplo, el punto debe ser otro.

Los enchufes también deben ser pensados ​​en los día a día de ustedes. Para hacer una distribución correcta, primero tengo que conocer un poco de su rutina para elaborar un plano para tus necesidades. Muchas Gracias, Un saludo, Tatielle Rodrigues

Responder
¿Inapropiado? Reporta una incidencia
Deja tu respuesta

Para escribir una respuesta debes estar registrado. No está permitido incluir teléfonos de contacto, e-mails o enlaces a páginas web externas en este apartado, dicho contenido será moderado y eliminado.

Adjuntar fotografías
Pide presupuestos de decoradores en tu zona

Escoge un tipo de trabajo

¿Eres un profesional? Consigue más clientes fácilmente
Registrarse como profesional