¿Cuánto costaría hacer una cocina nueva en obra nueva?

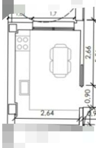
Hacer cocina pequeña en obra nueva. Con pilar en una esquina

Miguel Angel
Miguel Angel preguntó sobre
Carpinteros
Actualizado Hace 6 años

¿Cuánto costaría hacer una cocina nueva en obra nueva?

Hacer cocina pequeña en obra nueva. Con pilar en una esquina

¿Tienes alguna pregunta?
Pregunta a la comunidad

2 Respuestas

Alejandro Añon Espallargas Alcorisa
Alejandro Añon Espallargas Alcorisa
Alejandro Añon Espallargas Alcorisa respondió... Construcciones Y Carpinteria Hermanos Añon (Alcorisa, Teruel) Construcciones Y Carpinteria Hermanos Añon - hace 6 años

buenas tardes.

depende de los metros que tenga, si quiere muebles altos, los electrodomesticos, el tipo de puertas.

para dar un precio se tendria que medir y saber que quiere poner, porque puede costar 1.000 euros o 10.000 incluso mucho mas.

realizamos la reforma completa de una cocina, con suelos, paredes, techos, ventanas e instalaciones y rondo los 35.000 euros, eso si, preciosa y muyyyyy grande, mas de 30 metros cuadrados y con lo mejor

Responder
¿Inapropiado? Reporta una incidencia
Miguel Angel replicó... Particular - hace 6 años

Muebles bajos, sencilla pero moderna...

¿Inapropiado? Reporta una incidencia
Deja tu respuesta

Para escribir una respuesta debes estar registrado. No está permitido incluir teléfonos de contacto, e-mails o enlaces a páginas web externas en este apartado, dicho contenido será moderado y eliminado.

Adjuntar fotografías
Pide presupuestos de carpinteros en tu zona

Escoge un tipo de trabajo

¿Eres un profesional? Consigue más clientes fácilmente
Registrarse como profesional