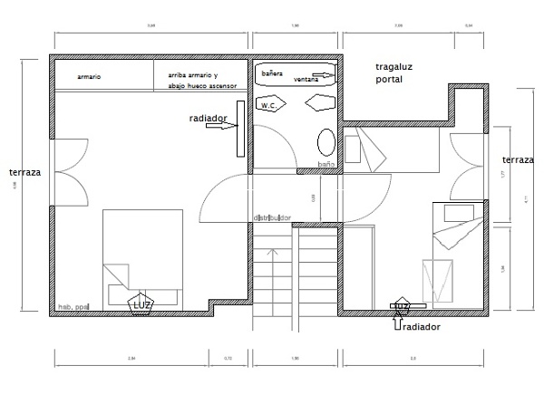
¿Cómo puedo reformar y distribuir una planta de mi duplex?

Me gustaría hacer un imposible. Quisiera sacar tres habitaciones de donde hay dos. Además quisiera tener un baño aunque fuese algo mas pequeño que el que tengo.

Necesitos vuestras opiniones sin que me cueste un riñon. Gracias

Minerina
Minerina preguntó sobre
Reformas Viviendas
Actualizado Hace 6 años

¿Cómo puedo reformar y distribuir una planta de mi duplex?

Me gustaría hacer un imposible. Quisiera sacar tres habitaciones de donde hay dos. Además quisiera tener un baño aunque fuese algo mas pequeño que el que tengo.

Necesitos vuestras opiniones sin que me cueste un riñon. Gracias

¿Tienes alguna pregunta?
Pregunta a la comunidad

8 Respuestas

Respuestas útiles 3
José Luis Búrdalo Martínez
José Luis Búrdalo Martínez
José Luis Búrdalo Martínez respondió... compás y cartabón (Alcalá de Henares, Madrid) compás y cartabón - hace 9 años

Buenos días.

Pues como le digo, si desea que estudie su caso personalmente, no tiene más que solicitar el contacto a través del perfil profesional

empresas.habitissimo.es/pro/compas-y-cartabon

usando la casilla de Pide Presupuesto Gratis y, el sistema nos pondrá en contacto, no está permitido incluir contactos y enlaces externos a nuestros correos, webs o marcas, pero le aseguro que si solicita el contacto mediante el perfil, podremos comenzar a ver este asunto.

Si mira algunas opiniones de mi perfil profesional, algunos trabajos comenzaron precisamente con lo que usted necesita.

Lo más sencillo es hacer algunas pruebas de diseño y distribución "sin tirar un solo ladrillo", en cad y poder ver el resultado en papel antes de arriesgar nada y, si finalmente alguna de las propuestas encaja, ya podrá decidir usted si lo lleva o no a la práctica.

Gracias. Un saludo.

Responder
¿Inapropiado? Reporta una incidencia
José Luis Búrdalo Martínez
José Luis Búrdalo Martínez
José Luis Búrdalo Martínez respondió... compás y cartabón (Alcalá de Henares, Madrid) compás y cartabón - hace 9 años

...si no es de Madrid o Guadalajara y no obstante, quiere enviarme el plano generando el contacto a través del perfil profesional

empresas.habitissimo.es/pro/compas-y-cartabon

puedo ofrecerle el trabajo a distancia de diseño de la planta.

Gracias. Un saludo.

Responder
¿Inapropiado? Reporta una incidencia
José Luis Búrdalo Martínez
José Luis Búrdalo Martínez
José Luis Búrdalo Martínez respondió... compás y cartabón (Alcalá de Henares, Madrid) compás y cartabón - hace 9 años

Buenas tardes.

El principal problema es que no hay ventana disponible para el nuevo dormitorio, todo dormitorio "habitable" necesita una ventana para ventilación e iluminación natural, aunque se me ocurre una idea que pasa por reformar toda la planta... desde luego no sería barato, pero como le suelo indicar a mis clientes con reformas en marcha, hasta que no lo encajo en un plano y yo soy el primero que "me lo creo" y veo que cabe todo lo que necesitamos, no me gusta decir que es posible... hay mucha gente que dicen que SI a todo y luego nos encontramos con los tabiques en el suelo y no encaja nada, lo que supone mosqueos, retrasos, incrementos de presupuesto, etc...

De hecho, la idea que tengo ahora mismo en la cabeza, puede que le permitiese tener hasta dos baños... pero es que el plano y cotas no ven bien en la foto adjunta.

Si se trata de una vivienda en la Comunidad de Madrid o Guadalajara, puedo estudiar su caso

empresas.habitissimo.es/pro/compas-y-cartabon

Gracias. Un saludo.

Responder
¿Inapropiado? Reporta una incidencia
Minerina replicó... Particular - hace 9 años

Si es en la Comunidad de Madrid. La planta tiene el techo abuhardillado, desde la zona de la puerta hacia la zona de las terrazas, por lo que dificulta las opciones.

Por este orden, las fotos son:

Vistas de la habitación pequeña (4 fotos)

Vistas del baño (3 fotos)

Vistas de la habitacion ppal (5 fotos)

Vistas del final de la escalera y tragaluz del techo en el descansillo común de las dependencias anteriores.

17 fotos
¿Inapropiado? Reporta una incidencia
Margarita Dufour respondió... Particular - hace 6 años

Buenos días Minerina,

Su caso es bastante complejo por el acotamiento del espacio y el techo abovedado. Sin embargo es posible pensar soluciones, que sin lugar implicarían una gran inversión a la hora de la realización. Coincido en que se debe replantear todo. Quizas en el dormitorio mayor se puedan ubicar dos pequeños y hacer del del fondo el principal, habría que ver bien las medidas que no se llegan a divisar en el plano. Cualquier cosa quedo a su disposición. Saludos cordiales,

Responder
¿Inapropiado? Reporta una incidencia
José Luis Búrdalo Martínez
José Luis Búrdalo Martínez
José Luis Búrdalo Martínez replicó... compás y cartabón (Alcalá de Henares, Madrid) compás y cartabón - hace 6 años

Buenos días Margarita.

Por suerte pude conocer y ver la vivienda de las fotografías y plano hace años y, al menos en aquel momento, era imposible sacar lo que se quería, de hecho, la vivienda vista in situ, con la inclinación de los techos, es que no da para mucho.

Gracias. Un saludo.

¿Inapropiado? Reporta una incidencia
Alejandro Añon Espallargas Alcorisa
Alejandro Añon Espallargas Alcorisa
Alejandro Añon Espallargas Alcorisa replicó... Construcciones Y Carpinteria Hermanos Añon (Alcorisa, Teruel) Construcciones Y Carpinteria Hermanos Añon - hace 6 años

me parece que Margarita no esdel gremio, lo primero su perfil es particular, lo segundo no se ha dado cuenta de las fotos, la planta es abuardillada, no abovedada y lo mas importante, si en tres años no ha realizado la reforma, no creo que pueda ser posible su realizacion o no le costara un riñon, sino dos.

si encima Jose Luis añade que ya conoce la vivienda, despues de su comentario, despidase de este trabajo.

lo siento, pero aqui entra mucho manitas sin seguro ni nada y eso no me gusta, no quiero afirmar que sea su caso, pero si es profesional abra un perfil profesional para no pensar lo contrario

¿Inapropiado? Reporta una incidencia
Francisco Javier  Cobreros
Francisco Javier  Cobreros
Francisco Javier Cobreros respondió... Acero 12 (Valdemorillo, Madrid) Acero 12 - hace 9 años

Estoy bastante de acuerdo con el compañero, seria necesario tirar casi toda la planta y volver a organizar las estancias sobre todo para que la tercera habitación tuviera luz natural.

Nosotros le realizaríamos una visita para asesorarla y realizarle un.presupuesto sin compromiso y totalmente gratuito.

Un saludo.

Responder
¿Inapropiado? Reporta una incidencia
Deja tu respuesta

Para escribir una respuesta debes estar registrado. No está permitido incluir teléfonos de contacto, e-mails o enlaces a páginas web externas en este apartado, dicho contenido será moderado y eliminado.

Adjuntar fotografías
Pide presupuestos de reformas viviendas en tu zona

Escoge un tipo de trabajo

¿Eres un profesional? Consigue más clientes fácilmente
Registrarse como profesional