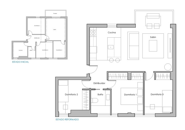
¿Cómo se ha redirigido la bajante del nuevo fregadero de la cocina?

Como se a redirigido la caida del fregadero de la cocina hasta la bajante del edificio? Que me imagino que está ahora en el dormitorio 2, estoy casi seguro que ese fregadero genera olores puesto que la unica forma debe ser por el suelo y no genera pendiente suficiente.

Silvia
Silvia preguntó sobre
Fontaneros
Actualizado Hace 6 años

¿Cómo se ha redirigido la bajante del nuevo fregadero de la cocina?

Como se a redirigido la caida del fregadero de la cocina hasta la bajante del edificio? Que me imagino que está ahora en el dormitorio 2, estoy casi seguro que ese fregadero genera olores puesto que la unica forma debe ser por el suelo y no genera pendiente suficiente.

¿Tienes alguna pregunta?
Pregunta a la comunidad

1 Respuestas

reformmia
reformmia
reformmia respondió... Reformmia Arquitectura Y Diseño (Madrid, Madrid) Reformmia Arquitectura Y Diseño - hace 6 años

Las instalaciones se conectaron satisfactoriamente a la bajante existente sin generar ningún tipo de olor ni problema

Responder
¿Inapropiado? Reporta una incidencia
Deja tu respuesta

Para escribir una respuesta debes estar registrado. No está permitido incluir teléfonos de contacto, e-mails o enlaces a páginas web externas en este apartado, dicho contenido será moderado y eliminado.

Adjuntar fotografías
Pide presupuestos de fontaneros en tu zona

Escoge un tipo de trabajo

¿Eres un profesional? Consigue más clientes fácilmente
Registrarse como profesional