¿Cuánto costaría construir una casa en planta baja de alrededor de 150m2?

Buenas,

Estoy empezando a buscar terrenos y a moverme por los bancos y ayuntamientos para construir una casa, y me gustaría saber, mas o menos por cuanto puede salirme el tema de la obra + arquitecto + permisos + cualquier cosa que todavía no conozco por ser la primera vez que me meto en estos berenjenales.

Por supuesto, sé que sin conocer el terreno ni tener más detalles, es imposible dar un presupuesto ajustado. La idea es conocer la horquilla en la que se pueden mover los precios de una vivienda de este estilo, suponiendo una parcela mas o menos llana y de tamaño suficiente para, en función de lo que pueda costar hacer la obra, ir buscando una parcela acorde. Obviamente, aparte de lo que pueda ser este presupuesto habrá que añadir lo que cueste nivelar o preparar la parcela en caso necesario.

Por eso mi idea es simplemente conocer la horquilla a grandes rasgos en que se puede mover el precio, considerando unas calidades medias en cuanto a materiales de interior, y un aislamiento decente en el exterior. La idea es hacer una vivienda de unos 130 m2 únicamente en planta baja. La imagen adjunta es un boceto, que obviamente debería pasar por la revisión de un arquitecto para realizar los cambios oportunos, pero que mas o menos da una idea de lo deseado.

Simeón
Simeón preguntó sobre
Construcción Casas
Actualizado Hace 8 años

¿Cuánto costaría construir una casa en planta baja de alrededor de 150m2?

Buenas,

Estoy empezando a buscar terrenos y a moverme por los bancos y ayuntamientos para construir una casa, y me gustaría saber, mas o menos por cuanto puede salirme el tema de la obra + arquitecto + permisos + cualquier cosa que todavía no conozco por ser la primera vez que me meto en estos berenjenales.

Por supuesto, sé que sin conocer el terreno ni tener más detalles, es imposible dar un presupuesto ajustado. La idea es conocer la horquilla en la que se pueden mover los precios de una vivienda de este estilo, suponiendo una parcela mas o menos llana y de tamaño suficiente para, en función de lo que pueda costar hacer la obra, ir buscando una parcela acorde. Obviamente, aparte de lo que pueda ser este presupuesto habrá que añadir lo que cueste nivelar o preparar la parcela en caso necesario.

Por eso mi idea es simplemente conocer la horquilla a grandes rasgos en que se puede mover el precio, considerando unas calidades medias en cuanto a materiales de interior, y un aislamiento decente en el exterior. La idea es hacer una vivienda de unos 130 m2 únicamente en planta baja. La imagen adjunta es un boceto, que obviamente debería pasar por la revisión de un arquitecto para realizar los cambios oportunos, pero que mas o menos da una idea de lo deseado.

¿Tienes alguna pregunta?
Pregunta a la comunidad

5 Respuestas

Respuestas útiles 4
José Luis Búrdalo Martínez
José Luis Búrdalo Martínez
José Luis Búrdalo Martínez respondió... compás y cartabón (Alcalá de Henares, Madrid) compás y cartabón - hace 8 años

Buenos días.

Le indicaré lo mismo que indico en multitud de consultas similares, siempre a nivel informativo / referencia zona centro de España.

Para construcción tradicional, contemple una horquilla de 900 a 1100 €/m2 y para construcción modular o prefabricada, de 700 a 900 €/m2, en ambos casos, suponiendo un terreno uniforme, de fácil acceso y que permita apoyo de cimentación a una profundidad media de 150 cms; sin contar con proyecto, dirección y ejecución de obra, estudio geotécnico (que determinará la profundidad de apoyo de la cimentación), tasas y licencias, acometidas, etc... lo cual puede suponer del orden de un 22 / 26 % del presupuesto de ejecución de obra.

Si los números le cuadran a grandes rasgos, como digo, con carácter informativo, lo primero que debe hacer usted es encargar el estudio geotécnico y buscar arquitecto o estudio que se ocupen de encajar su idea de vivienda en la normativa y ordenanzas que sean de aplicación, en fase es proyecto básico y de ejecución, comenzará a disponer de planos, mediciones y datos que poder lanzar a empresas constructoras que oferten la ejecución material de la vivienda, de modo que bajo una base común, los presupuestos sean comparables, se puedan tomar decisiones, seguramente bajar algo las horquillas informativas e ir atando cabos.

Si se trata de la Comunidad de Madrid o alrededores, puedo estudiar su caso si lo desea, no tendría más que entrar en la ficha profesional compás y cartabón en Habitissimo y usar la casilla de Pide Presupuesto Gratis, generando Habitissimo el contacto.

Gracias. Un saludo.

Responder
¿Inapropiado? Reporta una incidencia
Simeón replicó... Particular - hace 8 años

Muchas gracias por la información. La obra sería en los alrededores de la ciudad de Granada, que es donde estoy mirando los terrenos.

Ahora mismo estoy un poco perdido con todo esto, por eso lo de pedir info al respecto para ir cuadrando mis cuentas.

Una duda que tengo acerca de su respuesta, el 22-26% que indica sería solo por tasas, licencias y acometidas o sería incluyendo tambien direccion de obra, estudio geotecnico, proyecto etc? Es que estoy intentando hacer una lista con todos los gastos que puedo encontrarme para estimarlos mas o menos a grandes rasgos y poder empezar a pedir precios de cosas más especificas.

Un saludo!

¿Inapropiado? Reporta una incidencia
José Luis Búrdalo Martínez
José Luis Búrdalo Martínez
José Luis Búrdalo Martínez replicó... compás y cartabón (Alcalá de Henares, Madrid) compás y cartabón - hace 8 años

Buenas tardes.

Si, el 22 / 26 % serían tasas, proyecto, dirección, etc... es considerar ese porcentaje sobre una base de unos 1000 o 1100 €/m2 + IVA o considerar una horquilla de unos 1.300 / 1.400 €/m2 + IVA TODO INCLUIDO.

Gracias. Un saludo.

¿Inapropiado? Reporta una incidencia
Alberto
Alberto
Alberto respondió... Gisai Arquitectura e Ingenieria (Murcia, Murcia) Gisai Arquitectura e Ingenieria - hace 8 años

Buenos días Simeón,

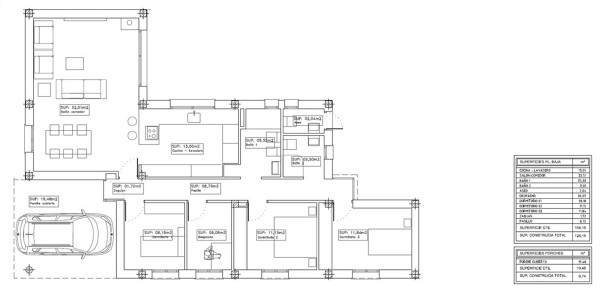
La obra se parece mucho a una que hemos hecho recientemente, adjunto fotografía del plano de planta.

La obra esta ahora mismo en fase de acabados y construcción, el metro construido ha salido en torno a los 850 euros con un coste total para entrar a vivir de 115.000 euros incluido la valla, con una clasificación energética de A, y unos niveles de acabados y aislamientos muy buenos.

Los proyectos, direcciones de obra y licencias del ayuntamiento han salido en torno a los 15.000 euros.

Si quieres más información puedes solicitarnos un presupuesto gratuito en nuestro apartado de GISAI en habitissimo pinchando en en la parte superior a la respuesta ya que trabajamos cerca de Granada.

Atentamente,

GISAI arquitectura e ingeniería

Responder
¿Inapropiado? Reporta una incidencia
Simeón replicó... Particular - hace 8 años

Gracias por la info! te he escrito por presupuesto privado :D

¿Inapropiado? Reporta una incidencia
Deja tu respuesta

Para escribir una respuesta debes estar registrado. No está permitido incluir teléfonos de contacto, e-mails o enlaces a páginas web externas en este apartado, dicho contenido será moderado y eliminado.

Adjuntar fotografías
Pide presupuestos de construcción casas en tu zona

Escoge un tipo de trabajo

¿Eres un profesional? Consigue más clientes fácilmente
Registrarse como profesional