¿Cómo me recomiendan distribuir el salón?

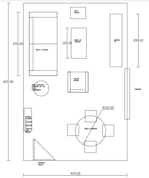
Hola. Os pongo plano orientativo de este salón comedor de techos altos que da a una gran terraza. Mi idea es ubicar mesa y sillas comedor a la derecha cuando se entra y el TV justo enfrente en la pared de 4,09 MTS. Qué pensáis? Quiero que la sensación sea de amplitud y luminosidad. Gracias

LGF
LGF preguntó sobre
Decoradores
Actualizado Hace 4 años

¿Cómo me recomiendan distribuir el salón?

Hola. Os pongo plano orientativo de este salón comedor de techos altos que da a una gran terraza. Mi idea es ubicar mesa y sillas comedor a la derecha cuando se entra y el TV justo enfrente en la pared de 4,09 MTS. Qué pensáis? Quiero que la sensación sea de amplitud y luminosidad. Gracias

¿Tienes alguna pregunta?
Pregunta a la comunidad

4 Respuestas

Respuestas útiles 1
Paz Hernández
Paz Hernández
Paz Hernández respondió... dEi Decoración e interiorismo (Cáceres, Cáceres) dEi Decoración e interiorismo - hace 4 años

Hola, yo no pondría el mueble de TV al fondo porque el sofá entonces lo tendrías de espaldas y es más dificil de organizar el espacio así. Adjunto foto de la distribución que te recomiendo. Cualquier duda no dudes en preguntarme. Saludos, Paz

Responder
¿Inapropiado? Reporta una incidencia
LGF replicó... Particular - hace 4 años

Muchas gracias. No lo había visto de esa manera porque donde coloca el TV está acotado por un pilar que deja muy escondido lo que se coloque en esa pared

¿Inapropiado? Reporta una incidencia
José Luis Búrdalo Martínez
José Luis Búrdalo Martínez
José Luis Búrdalo Martínez respondió... compás y cartabón (Alcalá de Henares, Madrid) compás y cartabón - hace 4 años

Buenos días.

Veo que ha hecho dos consultas similares para diferentes espacios (salón y terraza), para empezar no adjunta foto o plano alguno... por lo que, pese a que podamos tener una gran imaginación va a ser imposible acertar con lo que tiene usted y en segundo lugar, más allá de unas sencillas ideas que se puedan aportar en un foro generalista como éste, debería contratar al profesional adecuado para esos servicios.

Gracias. Un saludo.

Responder
¿Inapropiado? Reporta una incidencia
LGF replicó... Particular - hace 4 años

Tiene razón, hice la consulta desde el móvil y ha debido dar error al subir el archivo. Lo adjunto ahora y pido disculpas si ésta no es la sección adecuada para pedir consejo

¿Inapropiado? Reporta una incidencia
Deja tu respuesta

Para escribir una respuesta debes estar registrado. No está permitido incluir teléfonos de contacto, e-mails o enlaces a páginas web externas en este apartado, dicho contenido será moderado y eliminado.

Adjuntar fotografías
Pide presupuestos de decoradores en tu zona

Escoge un tipo de trabajo

¿Eres un profesional? Consigue más clientes fácilmente
Registrarse como profesional