¿Dónde colocar la puerta corredera?

Buenas tardes,

Quisiera que me ayudaran con un dilema que tengo en estos momentos.

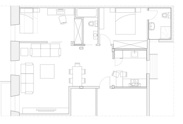
Voy a reformar mi piso y tengo que decidir dónde voy a colocar la puerta corredera que va de una habitación exterior al salón (tambén exterior).

La arquitecta me ha propuesto instalar la puerta corredera derca del hall, baño etc (tal y como aparece en el plano) Pero tengo la duda de si no sería mejor instalarla cerca de la pared exterior (tal y como he marcado en amarillo en el otro plano).

Entiendo que la primera opción es más cómoda para el transito, pero creo que colocando la puerta corredera en el lado de los ventanales, con la puerta abierta ganaría luminosidad y vería desde el salón los tres ventanales que dan al exterior. (por supuesto tendría que cambiar la ubicación del sofá y la cama de la habitación la pondría más hacia dentro)

¿Qué opináis? ¡Muchas gracias de entemano!

Josu

Iosu
Iosu preguntó sobre
Arquitectos
Actualizado Hace 8 años

¿Dónde colocar la puerta corredera?

Buenas tardes,

Quisiera que me ayudaran con un dilema que tengo en estos momentos.

Voy a reformar mi piso y tengo que decidir dónde voy a colocar la puerta corredera que va de una habitación exterior al salón (tambén exterior).

La arquitecta me ha propuesto instalar la puerta corredera derca del hall, baño etc (tal y como aparece en el plano) Pero tengo la duda de si no sería mejor instalarla cerca de la pared exterior (tal y como he marcado en amarillo en el otro plano).

Entiendo que la primera opción es más cómoda para el transito, pero creo que colocando la puerta corredera en el lado de los ventanales, con la puerta abierta ganaría luminosidad y vería desde el salón los tres ventanales que dan al exterior. (por supuesto tendría que cambiar la ubicación del sofá y la cama de la habitación la pondría más hacia dentro)

¿Qué opináis? ¡Muchas gracias de entemano!

Josu

2 fotos
¿Tienes alguna pregunta?
Pregunta a la comunidad

2 Respuestas

Respuestas útiles 1
José Luis Búrdalo Martínez
José Luis Búrdalo Martínez
José Luis Búrdalo Martínez respondió... compás y cartabón (Alcalá de Henares, Madrid) compás y cartabón - hace 8 años

Buenas tardes.

Personalmente, de las dos opciones que le plantean, me gusta más la que le indico adjunta, que no es necesario atravesar gran parte del salón comedor para acceder al despacho/dormitorio.

Un saludo.

Responder
¿Inapropiado? Reporta una incidencia
Luis Hernández
Luis Hernández
Luis Hernández respondió... Luis Hernández Gómez (Casco Antiguo, Alicante) Luis Hernández Gómez - hace 8 años

Me parece muy adecuada tu propuesta. Ahí te adjunto una posible distribución de los muebles, en los que éstos se sitúan simétricos a la actual situación, la mesa de comedor se corre hacia la derecha y la TV se pone entre las dos ventanas. Un saludo

Responder
¿Inapropiado? Reporta una incidencia
Deja tu respuesta

Para escribir una respuesta debes estar registrado. No está permitido incluir teléfonos de contacto, e-mails o enlaces a páginas web externas en este apartado, dicho contenido será moderado y eliminado.

Adjuntar fotografías
Pide presupuestos de arquitectos en tu zona

Escoge un tipo de trabajo

¿Eres un profesional? Consigue más clientes fácilmente
Registrarse como profesional