¿El fin de obra se lleva a Urbanismo o no es necesario?

Me compré un piso viejo de unos 100 m2. Hice una reforma integral por lo que solicité una licencia de obra mayor. Ya he terminado la reforma y tengo el certificado de fin de obra, pero el arquitecto me recomienda que no la lleve a Urbanismo pues dice que vendrá el inspector e igual me hace poner una puerta para separar la terraza que he integrado a la cocina, si sólo fuera eso tampoco lo veo tan grave...pero no sé...no estoy segura si hay algún otro interés en ello...él me dice que pasados 4 años del certificado de fin de obra (que está visado por el colegio de arquitectos) ya nadie podría decirme nada y si llevo los papeles a urbanismo igual me arriesgo. No sé que hacer pues nos estamos planteando vender el piso y hacernos una casa en el pueblo...así que no sé si para luego vender puede ser un problema... o si llegado el caso podría entregar los papeles en cuestión o ya sería tarde... Nosotros actualmente vivimos en el piso, tenemos dada de alta la luz, agua y todos los suministros...

Yom
Yom preguntó sobre
Arquitectos Técnicos
Actualizado Hace 5 años

¿El fin de obra se lleva a Urbanismo o no es necesario?

Me compré un piso viejo de unos 100 m2. Hice una reforma integral por lo que solicité una licencia de obra mayor. Ya he terminado la reforma y tengo el certificado de fin de obra, pero el arquitecto me recomienda que no la lleve a Urbanismo pues dice que vendrá el inspector e igual me hace poner una puerta para separar la terraza que he integrado a la cocina, si sólo fuera eso tampoco lo veo tan grave...pero no sé...no estoy segura si hay algún otro interés en ello...él me dice que pasados 4 años del certificado de fin de obra (que está visado por el colegio de arquitectos) ya nadie podría decirme nada y si llevo los papeles a urbanismo igual me arriesgo. No sé que hacer pues nos estamos planteando vender el piso y hacernos una casa en el pueblo...así que no sé si para luego vender puede ser un problema... o si llegado el caso podría entregar los papeles en cuestión o ya sería tarde... Nosotros actualmente vivimos en el piso, tenemos dada de alta la luz, agua y todos los suministros...

¿Tienes alguna pregunta?
Pregunta a la comunidad

21 Respuestas

Respuestas útiles 1
Alejandro Añon Espallargas Alcorisa
Alejandro Añon Espallargas Alcorisa
Alejandro Añon Espallargas Alcorisa respondió... Construcciones Y Carpinteria Hermanos Añon (Alcorisa, Teruel) Construcciones Y Carpinteria Hermanos Añon - hace 5 años

si, es necesario, el ayuntamiento tarde o temprano os pedirá el fin de obra para legalizarla y pasar la reforma al IBI

no suelen tardar mas de un año, después de terminar el plazo que se concedió para la realización de las obras y si en ese momento creen que algo no esta correctamente realizado, pues sanción, derribo y gastos varios, incluso pueden no dar cedula de habitabilidad al piso.

si en la reforma, se ha ampliado los metros de vivienda y no se podía realizar esa ampliación y a sido el arquitecto quien ha decidió realizarla, reclámale daños y perjuicios y que restablezca los metros legales

Responder
¿Inapropiado? Reporta una incidencia
Yom replicó... Particular - hace 5 años

Si lo llevo a Urbanismo, el arquitecto es quien debería asumir los gastos de los cambios que debiera realizar? Él ha sido invitado a ver la obra en varias ocasiones pero no ha venido más que al principio y al final... si hay algo mal tampoco me apetecería iniciar litigios y demás...porque supongo que sería yo la que tendría que reclamar esos daños... por eso...no sé si no hacer nada y ver si así prescribe la obra y lo que hayamos podido hacer mal...no sé

¿Inapropiado? Reporta una incidencia
Alejandro Añon Espallargas Alcorisa
Alejandro Añon Espallargas Alcorisa
Alejandro Añon Espallargas Alcorisa replicó... Construcciones Y Carpinteria Hermanos Añon (Alcorisa, Teruel) Construcciones Y Carpinteria Hermanos Añon - hace 5 años

si ha cerrado una terraza ilegalmente, para darle mas sitio a la cocina y eso figura en el proyecto, tiene que declarar la ampliación de vivienda, de lo contrario si un día el ayuntamiento se da cuenta, de alguna manera, le puede pedir que restituya la pared a su sitio.

si legalmente si que se puede realizar, pero no lo declara, le pueden pedir 10 años de IBI atrasados mas una sanción por no declararlo.

pueden pasar 20 años, el plazo comienza desde que el ayuntamiento tiene constancia de los hechos.

si vende el piso, los nuevos propietarios tienen 10 años para reclamarle, por venta fraudulenta, al no estar esa ampliación legalizada.

si quiere estar siempre pendiente de eso, adelante, el culpable siempre es el promotor.

siempre es mas barato legalizar nada mas terminar las obras que después.

si es culpa del arquitecto, le tocara denunciarlo

¿Inapropiado? Reporta una incidencia
José Luis Búrdalo Martínez
José Luis Búrdalo Martínez
José Luis Búrdalo Martínez replicó... compás y cartabón (Alcalá de Henares, Madrid) compás y cartabón - hace 5 años

Buenos días.

Todo este caso "huele raro", no cuadra, como decía en mi primera intervención... a un arquitecto que, presenta un proyecto visado, que se presenta a solicitud y concesión de licencias, no hay que invitarle a la obra, entra en su obligación profesional verificar que la obra se hace conforme a su proyecto, puesto que si no lo hace y se hace otra obra diferente, se mete en problemas, elude su responsabilidad profesional, caso en el cual, lo más sencillo es a mitad de obra, rescindir y dar de baja su proyecto y dicha responsabilidad... por ejemplo, imaginemos que el cerramiento de la terraza es algo que usted ha hecho y que no figura en proyecto, pues si el arquitecto no está dispuesto a asumir esa responsabilidad y no entra en aquello que ha proyectado, debería haber tomado medidas y, si ese cerramiento figura en proyecto, no debería preocuparse lo más mínimo.

Gracias. Un saludo.

¿Inapropiado? Reporta una incidencia
Yom respondió... Particular - hace 5 años

Finalmente escribí un email a urbanismo diciendo lo siguiente:

Buenos días,

Soy ...

En su día (marzo de 2017) me compré un piso y solicité licencia de obra mayor para reformarlo entre febrero de 2018 y 2020) lo terminamos y en enero 2021 ya me entregó el arquitecto el certificado de fin de obra.

Pero no sé si debo hacer algo más.

Tengo una cédula de habitabilidad que cuando compré el piso me dijeron que tenía una validez de 10 años.

Sin embargo, al haber hecho una reforma de obra mayor no sé si debo volver a solicitar una cédula y en ese caso a quién o si debo tramitar algo más, sobre todo por si en un futuro vendemos el piso poderlo tener todo en regla.

Un saludo,

...

Y me han contestado lo siguiente...

En el Ayuntamiento no tiene que hacer nada más, ya que solo se tramitan licencias de primera ocupación para obra nueva pero no para reformas.

Así que será que en Zaragoza no hace falta?? Me quedo más tranquila entonces... y me guardo el email... :)

Responder
¿Inapropiado? Reporta una incidencia
Jorge Nuño
Jorge Nuño
Jorge Nuño replicó... Nuño Arquitectura (Almoradi, Alicante) Nuño Arquitectura - hace 5 años

Buenas tardes.

Desde mi punto de vista, si es una reforma integral, aunque sea con proyecto, debería entregarse al ayuntamiento un justificante de que no ha habido modificaciones respecto de la distribución original, y que si las hay, éstas cumplen con las normas de habitabilidad. Por lo que debería presentarse una declaración responsable de licencia de segunda ocupación.

Pero si te han respondido eso, será allí como dicen.

Un saludo

¿Inapropiado? Reporta una incidencia
José Luis Búrdalo Martínez
José Luis Búrdalo Martínez
José Luis Búrdalo Martínez replicó... compás y cartabón (Alcalá de Henares, Madrid) compás y cartabón - hace 5 años

Buenas tardes.

Opino lo mismo que Jorge, siempre acertado en sus intervenciones.

Lo normal es lo que dice él o lo que le hemos indicado... lo raro es lo que le sucedía o de repente, la negativa o falta de colaboración o predisposición de su técnico, pero al final, cada Ayuntamiento es un mundo, como bien dice, guarde ese documento por si acaso, desde luego más o menos quedaría claro que usted, en su desconocimiento como ciudadano de a pie, lo ha intentado.

Gracias. Un saludo.

¿Inapropiado? Reporta una incidencia
Alejandro Añon Espallargas Alcorisa
Alejandro Añon Espallargas Alcorisa
Alejandro Añon Espallargas Alcorisa replicó... Construcciones Y Carpinteria Hermanos Añon (Alcorisa, Teruel) Construcciones Y Carpinteria Hermanos Añon - hace 5 años

si le contestan que no es necesario, imprima ese mensaje completo, guárdelo con los papeles de la reforma y si algún día le dicen algo, usted puede decir que ya pregunto y le comunicaron que no necesitaba nada mas.

podría decirse que ese papel seria como la licencia e ocupación después de la reforma.

¿Inapropiado? Reporta una incidencia
Yom respondió... Particular - hace 5 años

Hola de nuevo...aunque ya me pierdo un poco...

Intentando responder a vuestras preguntas...he ido mirando papeles que tengo por ahí...pagué aquellos 3000 euros más lo que pagué al Ayuntamiento.

El 1 % son 398.95 con una bonificación de 19.95 por tramitarlo electrónicamente = 379,00.

Y al conceder la licencia el resto...el 4% de 39.895,07 = 1.595,80.Con un recargo de 30 euros por hacerlo tarde... por eso yo tenía en mente el total de 5000 euros... (3000 al arquitecto y 2000 al Ayuntamiento). Y al Arquitecto le pagamos todo por adelantado...exceso de confianza...

En la licencia concedida hace referencia al proyecto y dice:

Longitud/Superficie total reformada por la reforma: 104,23 m2 .

Yo tengo el supuesto proyecto pero interpretar todo eso para mi imposible, visado el 18 de enero (la fecha coincide con el proyecto al que hace referencia la licencia del ayuntamiento). El trabajo está valorado tanto en el proyecto como en el certificado de fin de obra con la siguiente cantidad:

Asciende el presupuesto de ejecución material a la expresada cantidad de TREINTA Y NUEVE MIL OCHOCIENTOS NOVENTA Y CINCO EUROS CON SIETE CÉNTIMOS.

Yo siempre dije que quería que constase reforma integral...pero no sé si quizá al final me convencieron para hacer un porcentaje no sé... pero los gastos de la obra han sido aproximadamente esos (sin contar muebles).

La licencia se concedió el 18 de enero de 2017, aunque los papeles nos llegaron aquel febrero. Usamos los 2 años de licencia pues lo íbamos haciendo muy poco a poco...pero no me han dado el certificado de fin de obra hasta ahora...aunque acabo de darme cuenta de que han puesto fecha de firma el 4 de enero de 2020!!!!!!!! eso no será para que llegue yo tarde a entregarlo a Urbanismo??? madre mía...ya no sé ni qué pensar!!!!aunque en la fecha de la firma digital en pequeñito pone 2021-01-08.

En fin, espero haber respondido a vuestras preguntas José Luis y Alejandro y demás...

Yo creo que el problema ha sido eso de pagar todo por adelantado. Es cierto que cuando tardaban en concederme la licencia fui al ayuntamiento pregunté por el supuesto arquitecto y me hablaron bien, al menos me dijeron que sí que presentaba muchos proyectos (aunque la realidad es que se firman a otro nombre no sé, él sí que consta como que los presentaba). En fin, para otra vez ya veo que me fie muy rápido, me hablaron de él y pensé que era de fiar.

Todos los documentos (licencia, fin de obra, etc) están firmados por un supuesto arquitecto técnico que no conozco...no por el arquitecto con el cual yo hablaba...

El lugar Zaragoza.

En fin, creo que lo mejor será que lo presente a Urbanismo y que sea lo que dios quiera...aunque me da miedo eso...que él se haya cubierto las espaldas y yo tenga que pagar el pato... No tengo claro qué papeles me van a pedir y si tendré todos...pero ya me dirán.

Muchas gracias por todo.

Responder
¿Inapropiado? Reporta una incidencia
Alejandro Añon Espallargas Alcorisa
Alejandro Añon Espallargas Alcorisa
Alejandro Añon Espallargas Alcorisa replicó... Construcciones Y Carpinteria Hermanos Añon (Alcorisa, Teruel) Construcciones Y Carpinteria Hermanos Añon - hace 5 años

si, presente los papeles en urbanismo.

si encuentran algún defecto, tendrá que reclamar al arquitecto que firma el proyecto y que supuestamente es el que emite las facturas.

todo lo que se realice en la obra es cosa del arquitecto, es el que firma y el responsable, mas si esta en el proyecto.

incluso se le quieren cobrar recargo, porque el fin de obra se firma hace un año, podrá reclamar al arquitecto, ya que en ese momento las obras no estaban terminadas y podrá demostrarlo con facturas de obras realizadas posteriormente.

en caso de que el arquitecto pase de todo, dígale que pondrá una queja en el colegio, seguro que entonces entra en razón, ya que se arriesga a que revisen todos los proyectos presentados y si encuentran deficiencias le puede costar el que no pueda firmar mas proyectos.

en mi pueblo tengo uno así y al final siempre recula, no por presentar proyectos y realizar otras obras, si no porque quiere que el proyecto sea como el quiere, sin importarle el gusto o necesidades del cliente o el lugar de las obras y sus accesos.

a mi ya me ha rectificado dos proyectos sin cobrar mas.

¿Inapropiado? Reporta una incidencia
Yom respondió... Particular - hace 5 años

Ok, en primer lugar muchísimas gracias a todos por vuestras respuestas.

He exagerado con los gastos, sorry... recordaba que era mucho, pero acabo de mirarlo y el gasto fue exactamente 3.148 por Proyecto de Básico y de Ejecución de Arquitecto Técnico, Dirección de Obra de Arquitecto Técnico, Estudio Básico de Seguridad, Certificado Final de Obra, Tramitación urbanística y seguimiento de documentación y Anexos solicitados, por si es de su interés. Creía recordar que era más...pero no sé si fue algún otro gasto de pago de tasas del ayuntamiento al presentar la licencia (la autoliquidación fueron 379 euros) o algo así que me quiere sonar o que yo me hice idea en su día de que serían unos 5000.

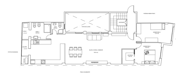
El piso es del año 1940 y en escrituras pone que tiene aproximadamente 100 m2 (no especifica nada más...ni si son útiles o no...es muy antigua). Y el piso en verdad incluida la terraza (o más bien balcón) son 104 metros construidos 96 útiles según el plano realizado por el arquitecto y medidas de otros gremios... El piso cuando lo compramos tenía el balcón o terraza cerrado (pero que yo sepa sin proyecto...es decir de modo ilegal...tampoco reclamé nada, pues en su día fue lo más barato que encontré y era todo para reformar por lo que la verdad es que no le di mucha importancia, la ignorancia... y que como iba a hacer hipoteca y el banco pide de todo... como el certificado ese que me dijo la del banco que lo guardase bien pues me valía para 10 años y lo tengo guardado. La reforma fue integral, tiramos todos los tabiques, pues todos se podían tirar...menos el de la actual cocina y baño a la terraza pues eso es fachada, lo único que había dos puertas de acceso a dicha terraza y nosotros las hemos quitado y una apertura la agrandamos un poquito (justo lo que el arquitecto dijo que se podía), el primer día sí vino...para medir y ver qué queríamos hacer, y la otra puerta se quedó igual de tamaño pero sin puerta, pues el balcón aunque con un nuevo cerramiento lo mantuvimos cerrado. Por otro lado, los baños deberían tener un tabique separando a la cocina, pero nosotros queríamos que pudiera estar abierto...aunque por si nos decían algo lo dejamos de manera que fuera fácil de subsanar y el arquitecto lo dejó en el plano como está realmente por si eso facilitaba que no nos lo echaran atrás, al igual que en el plano se ve que no hay puerta a las terrazas.

No sé...yo creo que es una mezcla entre que no se ha complicado y no querría verse complicado y nos vende como que ha sido de acuerdo mutuo y me siento mal por si le he hecho pensar eso...o si le pudiera perjudicar llevarlo a Urbanismo, pero yo en todo momento he querido que fuera todo legal pero tampoco querría verme envuelta en un lío... y eso que todo lo que pienso que podrían decirnos (cerrar puertas cocina y baño, quitar cerramiento y poner tabique separando baños de cocina) es de fácil arreglo (aunque un coste añadido...).

En fin, no sé si con las fotos se entiende mejor todo.

Un saludo y muchas gracias a todos.

3 fotos
Responder
¿Inapropiado? Reporta una incidencia
José Luis Búrdalo Martínez
José Luis Búrdalo Martínez
José Luis Búrdalo Martínez replicó... compás y cartabón (Alcalá de Henares, Madrid) compás y cartabón - hace 5 años

Buenos días.

Me va a perdonar, pero el compañero (dice que es arquitecto técnico) es un jeta... sean los 3000 o 5000 €, por ese importe está uno pendiente de la obra día sí y día no, vamos, es que por ese presupuesto de proyecto de reforma es que en mi caso, le aseguro que un cliente no tiene estas preocupaciones... y no las tiene por las 2/3 partes del presupuesto, en fin, lo que digo, me voy a tener que replantear cosas visto lo visto.

En el presupuesto usted tiene dirección de obra, seguimiento, certificado final de obra, etc... lo tiene todo y, si en el proyecto el compañero dibujó la terraza cerrada (el plano que ha subido entiendo que es de obra acabada) en ese momento, en el que se registra proyecto en el Ayuntamiento (¿de que ciudad hablamos si no es molestia?), se admite a trámite y se obtiene licencia, automáticamente está admitida y "prescrita"... si no hay ningún requerimiento sobre la terraza y hay licencia, no tienen porqué preocuparse, aunque coja esto que le digo con pinzas... como digo, habría que ver el proyecto presentado y la licencia concedida.

Por cierto, por las fotos que adjunta, bonita obra.

Gracias. Un saludo.

¿Inapropiado? Reporta una incidencia
Alejandro Añon Espallargas Alcorisa
Alejandro Añon Espallargas Alcorisa
Alejandro Añon Espallargas Alcorisa replicó... Construcciones Y Carpinteria Hermanos Añon (Alcorisa, Teruel) Construcciones Y Carpinteria Hermanos Añon - hace 5 años

a reformado todo el piso por 15.000 euros?

eso es lo que me sale si pago menos de 400 euros de permiso de obras.

algo no cuadra, seguro que se pidió el permiso para la reforma completa y se indico todo lo que se quería realizar?

yo de usted, miraría muy bien lo que entra en el permiso del ayuntamiento, me huele que se presento mucho menos de lo que se realizo y en ese caso si que tendrá problemas.

asegúrese de que el arquitecto le realice el fin de obras que figura en el contrato, de esta manera, si tiene una revisión, será culpa del arquitecto por falsedad de documentación.

ya que es el el que tiene que preparar todo el papeleo a presentar

es el primer arquitecto que conozco que no quiere presentar el fin de obra, ya que el ultimo pago que cobran, suele ser después de finalizar las obras

¿Inapropiado? Reporta una incidencia
Jorge Nuño
Jorge Nuño
Jorge Nuño respondió... Nuño Arquitectura (Almoradi, Alicante) Nuño Arquitectura - hace 5 años

Buenas tardes.

Se debería entregar la documentación requerida para la licencia de segunda ocupación.

Como indicáis, si alguien quiere comprar es posible que pregunte si tienen licencia de segunda ocupación, así como el certificado energético después de la obra.

Lo adecuado es solicitar la licencia de segunda ocupación, como lo es la primera ocupación en una obra nueva.

Un saludo

Responder
¿Inapropiado? Reporta una incidencia
Yom replicó... Particular - hace 5 años

Si no hiciera nada, el certificado energético que tengo de cuando yo lo compré no me serviría no?

¿Inapropiado? Reporta una incidencia
Jorge Nuño
Jorge Nuño
Jorge Nuño replicó... Nuño Arquitectura (Almoradi, Alicante) Nuño Arquitectura - hace 5 años

Buenos días.

La validez del certificado energético es de 10 años, siempre y cuando no haya habido cambios.

Si los cambios afectan a la envolvente térmica (fachada, cubiertas..) el certificado no es válido.

Un saludo

¿Inapropiado? Reporta una incidencia
José Luis Búrdalo Martínez
José Luis Búrdalo Martínez
José Luis Búrdalo Martínez replicó... compás y cartabón (Alcalá de Henares, Madrid) compás y cartabón - hace 5 años

Buenos días.

Añado al siempre acertado comentario de Jorge que el certificado energético no solamente se ve afectado a nivel de envolvente (fachadas), también instalaciones de agua caliente y calefacción, si en la obra ha cambiado dichas instalaciones y, el cerramiento de la terraza ha modificado la fachada, efectivamente, el certificado energético no vale.

Gracias. Un saludo.

¿Inapropiado? Reporta una incidencia
Jorge Nuño
Jorge Nuño
Jorge Nuño replicó... Nuño Arquitectura (Almoradi, Alicante) Nuño Arquitectura - hace 5 años

Toda la razón José Luís.

¿Inapropiado? Reporta una incidencia
José Luis Búrdalo Martínez
José Luis Búrdalo Martínez
José Luis Búrdalo Martínez respondió... compás y cartabón (Alcalá de Henares, Madrid) compás y cartabón - hace 5 años

Buenos días.

Aquí hay algo que no cuadra...

En principio, el responsable de solicitar licencias y toda tramitación administrativa ante el Ayuntamiento es usted, el promotor / propietario, del mismo modo que solicita una licencia conforme a un proyecto y se le concede, debe comunicar al Ayuntamiento que se ha terminado la obra... más que nada, por seguros y responsabilidad... y la licencia se concede sobre un proyecto de arquitectura (en su caso obra mayor por lo que comenta) que está visado y debe verificar y cumplir normativa y legalidad, si es así, ¿cual es el problema?, ¿que es lo que no cuadra?, está claro (o al menos así lo veo) que el tratamiento de la terraza no está reflejado en proyecto o no cumple con la normativa y legalidad.

También es verdad que, si va a vender la vivienda, si aquel que la vaya a adquirir o simplemente está interesado y, rasca un poco, se informa, puede llegar a saber que hay una licencia de obra mayor pero no consta fin de obra... lo cual le puede llegar a poner en aviso de que "algo no cuadra", si yo fuese técnico que estuviese asesorando para la compra, me llamaría la atención.

Gracias. Un saludo.

Responder
¿Inapropiado? Reporta una incidencia
Yom replicó... Particular - hace 5 años

En lo que es el plano del certificado de fin de obra sí aparece la terraza integrada, pero claro no me haría ninguna gracia que me dijeran que no se puede y que tengo que modificarla siendo que en ningún momento el arquitecto me ha dicho que esto no fuera posible. Y dudo mucho que asumiera las consecuencias. Por otro lado, me da miedo preguntar a Urbanismo y que me digan que preciso algún papel más que dependa del arquitecto y entonces el arquitecto no me lo quiera dar y entonces haber puesto sobre aviso a Urbanismo... no sé si no diciendo nada se olvidarán de mi y prescribirá... pero lo que más me fastidia es estar en esta situación cuando yo he solicitado la licencia, pagado casi 5000 euros al arquitecto y haber querido hacer bien las cosas...

Cuando le digo al arquitecto que yo quiero hacer bien las cosas...me dice que él no me ha dicho nada porque pensaba que no le había dicho que no lo iba a mandar a urbanismo... le dije que yo no había dicho eso que sino para que había pedido incluir en el presupuesto el fin de obra...pero con eso me quedo....

¿Inapropiado? Reporta una incidencia
José Luis Búrdalo Martínez
José Luis Búrdalo Martínez
José Luis Búrdalo Martínez replicó... compás y cartabón (Alcalá de Henares, Madrid) compás y cartabón - hace 5 años

Madre mía... cada vez me cuadra menos todo.

Por un lado, el presupuesto ¡¡¡5.000 €!!! por un proyecto de reforma de vivienda sin visitas de obra intermedias, supongo que sin control de certificaciones, de personal, etc... y ¿están dándole vueltas a si presentar o no documentación técnica y legal?, luego me dicen a mí algunos clientes que cobro caro, si oferto yo ese presupuesto por un proyecto de obra de reforma es que no me salía ni uno... o eso, o algunos tienen una estrella muy grande, se lo montan muy bien, pero por lo que veo, a la hora de la verdad, se escurren como pueden, para colmo, es que eso de no visitar la obra que es TU OBRA, para mí cada obra, cada trabajo es una parte de mí de la que trato de sentirme lo más orgulloso posible... a veces pienso que me debo replantear mejor precios y criterios, en fin...

Si en el proyecto inicial no estaba la terraza cerrada y durante la obra se ha cerrado la terraza y, el arquitecto lo incluye en su certificado final de obra (¿ha visado el certificado final de obra y lo tiene usted en su poder?), allá él, lo está asumiendo como propio... que no le venga ahora con "es que no sabía que iba a ser usted un promotor legal que llevase la documentación al Ayuntamiento" (ironía en modo on), ¡ostras!, si yo soy un técnico cuyo proyecto ha sido visado, se ha presentado al Ayuntamiento para solicitud de licencias, no puedo ser tan ingenuo como para pensar que el último requisito legal y técnico no se va a cumplir...

...y si el cerramiento estaba de origen en el proyecto, cero temores en ese caso.

Sinceramente, creo que debería actuar, como indica Alejandro (y es que es así), la responsabilidad como promotor es suya, antes de la obra (para contratar un técnico competente y una empresa constructora competente), durante la obra (para eso el técnico debe hacer su trabajo y vigilar la ejecución de obra (punto importante si, tiene contratada la dirección de obra)) y por supuesto a la hora de finalizar puesto que usted es responsable de comunicar lo finalmente ejecutado a la administración y, en compraventa, es usted responsable del bien que va a transmitir.

No es cuestión de litigios o problemas con Ayuntamiento y arquitecto... ahora mismo usted tiene varios frentes abiertos, Ayuntamiento, arquitecto, un futuro comprador, solo usted tiene el control y decisión de cuales quiere o puede cerrar, si cierra el del Ayuntamiento y, su arquitecto no ha hecho bien su trabajo, que apechugue que para eso están nuestros seguros de RC y para la próxima vez, ya se andará con mas cuidado y ojo el arquitecto... pues anda que no pierdo yo oportunidades de trabajo sencillamente por decir "eso no se puede hacer, eso no es legal", sé que pierdo el cliente puesto que sé que detrás llegará otro que dirá "SÍ A TODO", pero es que creo que es mucho peor para usted que se quede con todos los frentes abiertos y expuestos en caso de venta de la vivienda.

Gracias. Un saludo.

¿Inapropiado? Reporta una incidencia
Deja tu respuesta

Para escribir una respuesta debes estar registrado. No está permitido incluir teléfonos de contacto, e-mails o enlaces a páginas web externas en este apartado, dicho contenido será moderado y eliminado.

Adjuntar fotografías
Pide presupuestos de arquitectos técnicos en tu zona

Escoge un tipo de trabajo

¿Eres un profesional? Consigue más clientes fácilmente
Registrarse como profesional