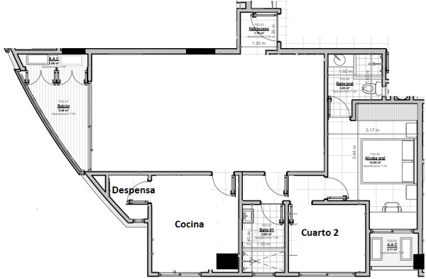
Podrian sugerirme una distribución para el siguiente apartamento.

La foto a color es la distribución sugerida por el constructor y la otra es una distribución sugerida.

Eduardo
Eduardo preguntó sobre
Construcción Casas
Actualizado Hace 5 años

Podrian sugerirme una distribución para el siguiente apartamento.

La foto a color es la distribución sugerida por el constructor y la otra es una distribución sugerida.

2 fotos
¿Tienes alguna pregunta?
Pregunta a la comunidad

2 Respuestas

Respuestas útiles 3
José Luis Búrdalo Martínez
José Luis Búrdalo Martínez
José Luis Búrdalo Martínez respondió... compás y cartabón (Alcalá de Henares, Madrid) compás y cartabón - hace 5 años

Buenos días.

¿Vivienda existente o de nueva construcción?, si es nueva construcción, para empezar la distribución no es propiedad ideológica-intelectual del constructor, lo será del proyectista, del estudio de arquitectura que se haya encargado del proyecto, por lo que seguramente, le guste más o menos, es lo que hay, es la distribución que cumple normativas y con la que legalizar final de obra y cédula de habitabilidad...

Si es vivienda existente, las fotos del plano que ha adjuntado tienen una calidad pésima (incluso aunque fuese vivienda nueva), mala definición, no hay cotas, no hay referencia gráfica de escalas, lo que usted solicita y necesita, implica tiempo, recursos... en el fondo, dinero, a veces una idea surge a la primera, a veces es fruto de varias pruebas y varios días dando vueltas a ideas, borradores de planos, etc.

Así pues, lo que debería hacer usted es invertir un poco en contratar un técnico que haga ese trabajo, que levante un plano exacto y en su despacho haga pruebas y les presente una o dos opciones, que ustedes vean en planos acotados y escalados como puede quedar la obra antes de mover un solo tabique y, si les convence, ese técnico puede acabar desarrollando labores de dirección y control de obra, además, con sus planos podrán solicitar presupuestos bajo un único criterio y que sean ofertas comparables.

Si se trata de la Comunidad de Madrid o Guadalajara, puedo estudiar su caso. Puede solicitar contacto a través del perfil profesional compás y cartabón, usando la casilla Pide Presupuesto Gratis, Habitissimo generará el contacto.

Gracias. Un saludo.

Responder
¿Inapropiado? Reporta una incidencia
INTEGRALE OBRAS Y PROYECTOS
INTEGRALE OBRAS Y PROYECTOS
INTEGRALE OBRAS Y PROYECTOS respondió... INTEGRALE. OBRAS Y PROYECTOS (Castellón de la Plana, Castellón) INTEGRALE. OBRAS Y PROYECTOS - hace 5 años

Hola Eduardo, yo creo que la distribución es ideal, el único cambio que haría como mucho es instalar una puerta de vidrio corredera de acceso a cocina, que tuviera mínimo1m de ancho por toda la altura hasta el falso techo con guía oculta y con casonetto a medida (mira la página de ECLISSE). Espero haberte ayudado un saludo

Responder
¿Inapropiado? Reporta una incidencia
Deja tu respuesta

Para escribir una respuesta debes estar registrado. No está permitido incluir teléfonos de contacto, e-mails o enlaces a páginas web externas en este apartado, dicho contenido será moderado y eliminado.

Adjuntar fotografías
Pide presupuestos de construcción casas en tu zona

Escoge un tipo de trabajo

¿Eres un profesional? Consigue más clientes fácilmente
Registrarse como profesional