¿Cuánto costaría poner aire acondicionado por conductos?

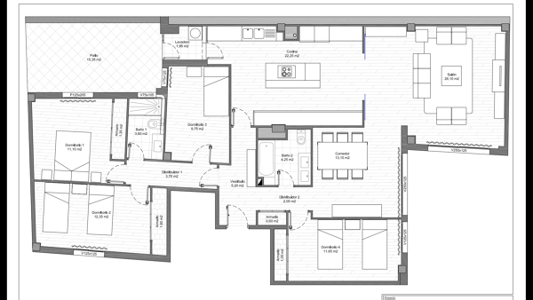
Hola voy a hacer una reforma, en la zona de Málaga, y me gustaría cuanto puede costar poner los conductos, la instalación y la máquina para el piso, de unos 130m útiles, adjunto foto.

Eduardo
Eduardo preguntó sobre
Aire Acondicionado
Actualizado Hace 7 años

¿Cuánto costaría poner aire acondicionado por conductos?

Hola voy a hacer una reforma, en la zona de Málaga, y me gustaría cuanto puede costar poner los conductos, la instalación y la máquina para el piso, de unos 130m útiles, adjunto foto.

¿Tienes alguna pregunta?
Pregunta a la comunidad

5 Respuestas

Manuel Riquelme climatización y electricidad
Manuel Riquelme climatización y electricidad
Manuel Riquelme climatización y electricidad respondió... Manuel Riquelme Climatización Y Electricidad (Elche, Alicante) Manuel Riquelme Climatización Y Electricidad - hace 7 años

Buenas tardes

hemos realizado instalaciones de ese tipo y sí, confirmo que quien le de un precio muy barato en comparación a la competencia algo habrá extraño por ahi, con el tiempo se desgrapan y despegan los conductos, y el aire no sale por donde corresponde , aislamientos de mala calidad en tuberías que se desacen con el paso del tiempo y falta de limpieza de tuberías al instalar, mal abocardado o soldado y perdida de gas en al tiempo, suelen ser los problemas mas comunes

si instala una máquina de calidad tipo TOSHIBA SAMSUNG MITSUBISHI PANASONIC en 10000 frigorías y conductos, la instalación podría salirle con IVA incluido por los 3800 a 4500 euros para esa superficie dependiendo del instalador y creame bien hecho le cobraran eso, con garantías y conductos a medida con las dimensiones correctas.

Tenga en cuenta su potencia contratada, estos aparatos consumen del orden de 3000 watios

lo agradecerá asi

un saludo

Responder
¿Inapropiado? Reporta una incidencia
Miquel Font
Miquel Font
Miquel Font respondió... MKF Instal (Manresa, Barcelona) MKF Instal - hace 7 años

A la vista del plano, la instalación de conductos no es precisamente de las mas baratas. 12 KW o sea 10.000 frig. para un piso de 130 m2 en Malaga tampoco me parece sobrado, yo mas bien contaria de 4.000 para arriba mas trabajos de albañilería mas pladur para bajar techos. Si te decides por el suelo radiante refrescante ten en cuenta que este sistema esta muy bien pero tiene el inconveniente de que no elimina la humedad ambiente.

Responder
¿Inapropiado? Reporta una incidencia
Eduardo respondió... Particular - hace 7 años

Gracias por las respuestas, querría saber que costaría todo aproximadamente, es decir instalación y también los demás gastos, de ayuda albañilería y demás, ya que estoy en la duda de su poner aire por conductos más radiadores, o suelo radiante refrescante con aerotermia, de ahí que quiera saber cual es el precio aproximado de cada cosa para valorar que merece la pena

Responder
¿Inapropiado? Reporta una incidencia
Juan María
Juan María
Juan María respondió... Jmanclima (Málaga, Málaga) Jmanclima - hace 7 años

Buenas Eduardo.

Mi Consejo es que busques por tu zona una empresa o instalador autorizado .

Son muchos los datos a tener en cuenta y cualquier respuesta sin ver la vivienda es aventurarse a fallar.

Donde digo 3000€ luego serán 4000€. y empezarán los problemas.

Un saludo.

Responder
¿Inapropiado? Reporta una incidencia
Juan
Juan
Juan respondió... Saico Climatización (Madrid, Madrid) Saico Climatización - hace 7 años

Con una potencia de aprox. 12 kw y una marca media, la instalación, más conductos, más rejillas de impulsión y de retorno, sin contar ayudas de albañilería y otros oficios entre 3.000 y 3.500 €.

Responder
¿Inapropiado? Reporta una incidencia
Deja tu respuesta

Para escribir una respuesta debes estar registrado. No está permitido incluir teléfonos de contacto, e-mails o enlaces a páginas web externas en este apartado, dicho contenido será moderado y eliminado.

Adjuntar fotografías
Pide presupuestos de aire acondicionado en tu zona

Escoge un tipo de trabajo

¿Eres un profesional? Consigue más clientes fácilmente
Registrarse como profesional