¿Qué paredes, muros y otros elementos puedo tirar o modificar?

Buenas!

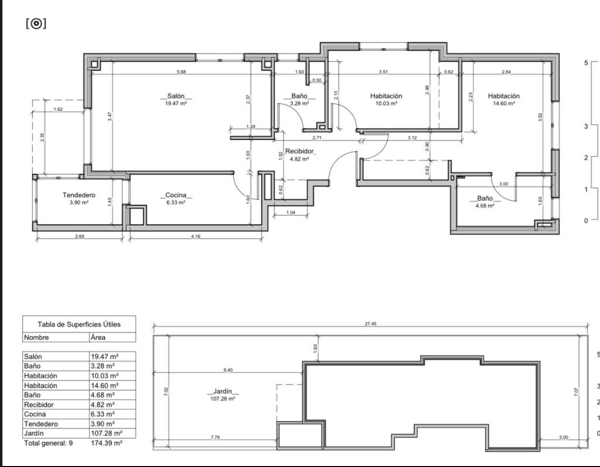
Mi pareja y yo estamos planteandonos hacer una reforma de nuestro piso, pero no estamos seguros de qué elementos podemos tirar y modificar y cuáles no.

Nos gustaría que un arquitecto o técnico nos ayudara a confirmar, y nos explicara que son cada uno de los elementos del plano de nuestra vivienda y saber diferenciarlos.

Muchas gracias se antemano,

Un saludo,

Aron
Aron preguntó sobre
Arquitectos Técnicos
Actualizado Hace 2 años

¿Qué paredes, muros y otros elementos puedo tirar o modificar?

Buenas!

Mi pareja y yo estamos planteandonos hacer una reforma de nuestro piso, pero no estamos seguros de qué elementos podemos tirar y modificar y cuáles no.

Nos gustaría que un arquitecto o técnico nos ayudara a confirmar, y nos explicara que son cada uno de los elementos del plano de nuestra vivienda y saber diferenciarlos.

Muchas gracias se antemano,

Un saludo,

¿Tienes alguna pregunta?
Pregunta a la comunidad

3 Respuestas

Jorge Diaz
Jorge Diaz
Jorge Diaz respondió... Jorge Diaz (Málaga, Málaga) Jorge Diaz - hace 2 años

De acuerdo con los consejos anteriores.... una visita de un Técnico no sale muy cara y te podra asesorar en varios temas...

Responder
¿Inapropiado? Reporta una incidencia
Antonio Cilea
Antonio Cilea
Antonio Cilea respondió... Antonio Cilea Arquitecto (Barcelona, Barcelona) Antonio Cilea Arquitecto - hace 2 años

Buenos dias,

hay que saber de que esta hecha la casa, la estructura del forjado superior y el grosor de los muros divisorios, informaciones que en este planito no salen. Contrata un arquitecto para concertar una visita y que lo compruebe en situ. Si estas en Barcelona, puedes contactar conmigo

Responder
¿Inapropiado? Reporta una incidencia
José Luis Búrdalo Martínez
José Luis Búrdalo Martínez
José Luis Búrdalo Martínez respondió... compás y cartabón (Alcalá de Henares, Madrid) compás y cartabón - hace 2 años

Buenos días.

Viendo que lo tienen claro, lo que necesitan en contratar un técnico (arquitecto o arquitecto técnico) para que les asesore en todo el proceso, o al menos, en la parte inicial que plantean ahora, pudiendo estudiar la vivienda in situ además de con los planos, plantear opciones de distribución de reforma, documento de mediciones para que todas las empresas oferten lo mismo y con el mismo criterio, etc... incluso llevarles la parte de seguimiento y dirección de obra.

Si se trata de Comunidad de Madrid, pueden solicitar mi contacto a través de mi perfil profesional Habitissimo.

Saludos.

Responder
¿Inapropiado? Reporta una incidencia
Deja tu respuesta

Para escribir una respuesta debes estar registrado. No está permitido incluir teléfonos de contacto, e-mails o enlaces a páginas web externas en este apartado, dicho contenido será moderado y eliminado.

Adjuntar fotografías
Pide presupuestos de arquitectos técnicos en tu zona

Escoge un tipo de trabajo

¿Eres un profesional? Consigue más clientes fácilmente
Registrarse como profesional