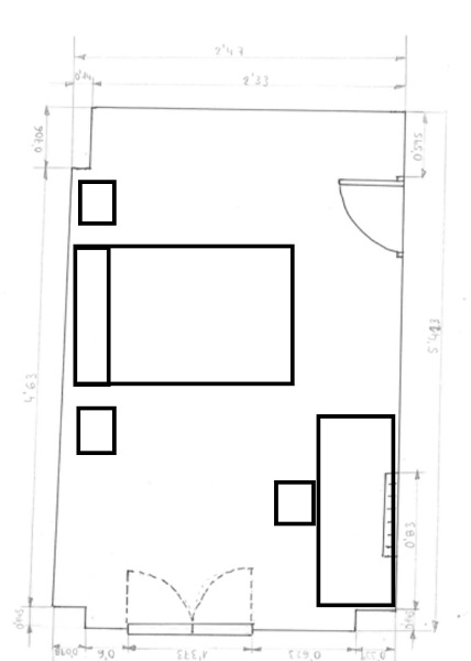
Quiero amueblar este dormitorio juvenil

Hola,quiero amueblar este dormitorio juvenil con escritorio y tengo dudas sobre dónde colocar la cama,el escritorio,etc. ¿Pueden asesorarme? Gracias.

David
David preguntó sobre
Decoradores
Actualizado Hace 8 meses

Quiero amueblar este dormitorio juvenil

Hola,quiero amueblar este dormitorio juvenil con escritorio y tengo dudas sobre dónde colocar la cama,el escritorio,etc. ¿Pueden asesorarme? Gracias.

¿Tienes alguna pregunta?
Pregunta a la comunidad

10 Respuestas

Maxim Daniel Maxim
Maxim Daniel Maxim
Maxim Daniel Maxim respondió... Maxim (Aoiz, Navarra) Maxim - hace 8 meses

mi opinion

Responder
¿Inapropiado? Reporta una incidencia
José Luis Búrdalo Martínez
José Luis Búrdalo Martínez
José Luis Búrdalo Martínez respondió... compás y cartabón (Alcalá de Henares, Madrid) compás y cartabón - hace 8 meses

Buenas tardes.

No suelo hacer propuestas de este tipo... al final pasamos de ser una asesoría altruista a hacer trabajo gratis y es que, en su caso se debería hacer una propuesta decorativa a escala y demás pero, hoy me siento generoso y, aunque no sea a escala, le adjunto la siguiente propuesta.

En color rojo, armario... si es de puertas correderas no tendrá problema con la hoja que queda tras la puerta del acceso al dormitorio, si es de puertas abatibles tendrá que cerrar la puerta del dormitorio para abrir la del armario o puede colocar un módulo de estantes abierto justo tras la puerta del armario.

En verde la zona de la cama, con ventana al lateral y radiador a los pies.

En azul la zona de escritorio.

El resto zona central despejada.

Saludos. De nada.

Responder
¿Inapropiado? Reporta una incidencia
David replicó... Particular - hace 8 meses

Muchas gracias Jose Luis por su respuesta

¿Inapropiado? Reporta una incidencia
José Luis Búrdalo Martínez
José Luis Búrdalo Martínez
José Luis Búrdalo Martínez replicó... compás y cartabón (Alcalá de Henares, Madrid) compás y cartabón - hace 8 meses

Gracias a usted, espero le sea de utilidad.

Saludos.

¿Inapropiado? Reporta una incidencia
Bea respondió... Particular - hace 8 meses

Yo pondría el armario enfrente d la puerta d entrada q creo q es la d arriba a la derecha. A continuación la cama hacia abajo a la izda y la mesa casi enfrente

Responder
¿Inapropiado? Reporta una incidencia
jose Manuel Rivas Hornero
jose Manuel Rivas Hornero
jose Manuel Rivas Hornero respondió... RH REFORMAS CON JOSE MANUEL (Madrid, Madrid) RH REFORMAS CON JOSE MANUEL - hace 9 meses

Hola David , cama al fondo escritorio a la derecha y mueble ropero ala izquierda , dejando pasillo central libre . Un saludo.

Responder
¿Inapropiado? Reporta una incidencia
Sole Roig Interiorismo
Sole Roig Interiorismo
Sole Roig Interiorismo respondió... Sole Roig Interiorismo (Valencia, Valencia) Sole Roig Interiorismo - hace 9 meses

Hola David! yo haria algo asi. contactame si necesitas mas ideas o un plano completo en autocad. mi instagram: @soleroig_interiorismo

gracias.

Responder
¿Inapropiado? Reporta una incidencia
Emy Franco
Emy Franco
Emy Franco respondió... Emy'store (Can Pastilla, Illes Balears) Emy'store - hace 9 meses

Esta sería la opción más adecuada, después hay que ver la paleta de colores y el estilo

Responder
¿Inapropiado? Reporta una incidencia
David replicó... Particular - hace 9 meses

Hola

Lo primero gracias por la respuesta pero este plano no corresponde con lo que he enviado

¿Inapropiado? Reporta una incidencia
Vicente Fernández
Vicente Fernández
Vicente Fernández respondió... Boronia home (La Granjilla, Madrid) Boronia home - hace 9 meses

Hola David. Hay varias opciones aunque la más recomendable es en L.

Te podremos ayudar encantados.

Responder
¿Inapropiado? Reporta una incidencia
Deja tu respuesta

Para escribir una respuesta debes estar registrado. No está permitido incluir teléfonos de contacto, e-mails o enlaces a páginas web externas en este apartado, dicho contenido será moderado y eliminado.

Adjuntar fotografías
Pide presupuestos de decoradores en tu zona

Escoge un tipo de trabajo

¿Eres un profesional? Consigue más clientes fácilmente
Registrarse como profesional