Reforma de cocina y baño agrandando ambos

Hola comunidad,

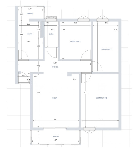
Estoy a punto de comprar un piso (2do de un edificio) y me gutaría hacer la siguiente reforma: agrandar la cocina y el baño y equipar ambos espacios. También la idea sería tirar el tabique que separa el dormitorio 2 y 3 y unir ambos espacios en una habitación de unos 3m x 3m.

Adjunto plano del estado actual.

La duda que tengo es que, por lo que llevo consultado con una tía que es arquitecta, NO podríamos agrandar la cocina a lo largo ni hacia la terraza/lavadero ni hacia el pasillo. Entiendo que el "problema de agrandar la cocina hacia la derecha es que habría que desplazar el baño y la pared entre cocina y baño es la bajante del edificio. ¿Hay alguna forma de darle una vuelta a esto? Gracias.

Jesica Aran
Jesica Aran preguntó sobre
Reformas Cocinas
Actualizado Hace 3 años

Reforma de cocina y baño agrandando ambos

Hola comunidad,

Estoy a punto de comprar un piso (2do de un edificio) y me gutaría hacer la siguiente reforma: agrandar la cocina y el baño y equipar ambos espacios. También la idea sería tirar el tabique que separa el dormitorio 2 y 3 y unir ambos espacios en una habitación de unos 3m x 3m.

Adjunto plano del estado actual.

La duda que tengo es que, por lo que llevo consultado con una tía que es arquitecta, NO podríamos agrandar la cocina a lo largo ni hacia la terraza/lavadero ni hacia el pasillo. Entiendo que el "problema de agrandar la cocina hacia la derecha es que habría que desplazar el baño y la pared entre cocina y baño es la bajante del edificio. ¿Hay alguna forma de darle una vuelta a esto? Gracias.

¿Tienes alguna pregunta?
Pregunta a la comunidad

5 Respuestas

Manuel
Manuel
Manuel respondió... Olazcuaga S. L. (Rincon de Seca, Murcia) Olazcuaga S. L. - hace 3 años

lo primero es ver sobre el terreno porque los planos de muchas obras ya estan modificado abria que hacer unas catas y comprobar todo muy bien lo de los patios es otra obsion si hay en el edificio otro que lo halla echo enfin todo es pocible pero hay que estar en la obra nos llama le analisamos todo y le damos obciones y un presupuesto sin compromiso pero que sepa que todo en esta vida tiene solucion y buena

Responder
¿Inapropiado? Reporta una incidencia
José Luis Búrdalo Martínez
José Luis Búrdalo Martínez
José Luis Búrdalo Martínez replicó... compás y cartabón (Alcalá de Henares, Madrid) compás y cartabón - hace 3 años

¿y dónde ha leído usted que hay un patio?... segundo piso, se trata de una vivienda en altura.

Por otro lado, no se lo tome a mal, pero antes de publicar, debería pasar el corrector, piense que sus intervenciones son su tarjeta de visita en este foro.

Saludos.

¿Inapropiado? Reporta una incidencia
Jose Luis
Jose Luis
Jose Luis respondió... Construsan (Torrejón de Ardoz, Madrid) Construsan - hace 3 años

Hola, si sería posible realizar su propuesta.

Estamos a su disposición para aclarar detalles y hacerle una oferta ajustada.

Responder
¿Inapropiado? Reporta una incidencia
Roberto Mendieta
Roberto Mendieta
Roberto Mendieta respondió... Roberto Mendieta (Vitoria-Gasteiz, Álava) Roberto Mendieta - hace 3 años

Contacta cuando lo tengas y te explicamos los pormenores de todo. Esperamos su llamada.

Responder
¿Inapropiado? Reporta una incidencia
José Luis Búrdalo Martínez
José Luis Búrdalo Martínez
José Luis Búrdalo Martínez respondió... compás y cartabón (Alcalá de Henares, Madrid) compás y cartabón - hace 3 años

Buenos días.

Estructura, núcleo de bajantes e instalaciones y huecos de ventanas, MANDAN, bastante complejo salvo por una opción que se me ocurre, ganar el baño para la cocina y que el baño se mueva hacia la derecha, hacia el dormitorio 2 (sin ventilación natural, habrá que forzarla mecánicamente) y alejando la bajante peligrosamente del núcleo de bajantes... como decía, bastante complejo.

Saludos.

Responder
¿Inapropiado? Reporta una incidencia
Deja tu respuesta

Para escribir una respuesta debes estar registrado. No está permitido incluir teléfonos de contacto, e-mails o enlaces a páginas web externas en este apartado, dicho contenido será moderado y eliminado.

Adjuntar fotografías
Pide presupuestos de reformas cocinas en tu zona

Escoge un tipo de trabajo

¿Eres un profesional? Consigue más clientes fácilmente
Registrarse como profesional