¿Cuánto costaría realizar una reforma eléctrica completa?

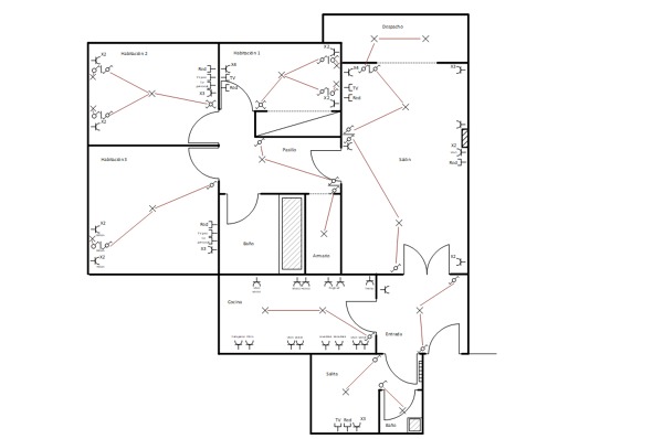
Hola buenas, quiero hacer una reforma completa de mi piso, pero donde tengo dudas es en el tema de electricidad, tiene unos 120m2, quiero cambiar la caja general para poner las protecciones divididas en cocina, salón y despacho, el aire en una protección a parte y por último las habitaciones y el baño, a partir de ahí reubicar cajas de derivación e interruptores y poner más enchufes y una caja que lleve todo el tema del internet en el salón, ya que quiero llevar a las 3 habitaciones un cable de datos y antena. Me gustaría saber por cuanto me podría salir y tal, yo he hecho un plano ya de como va a ir mas o menos, sin saber todavía el baño como ubicarlo. Lo pondré en imágenes para que lo veáis más claro. El techo irá de pladur, asi que se podrá llevar todos los tubos por arriba sin problemas. Muchas gracias y un saludo!

Fernando Martín Díaz
Fernando Martín Díaz preguntó sobre
Electricistas
Actualizado Hace 7 años

¿Cuánto costaría realizar una reforma eléctrica completa?

Hola buenas, quiero hacer una reforma completa de mi piso, pero donde tengo dudas es en el tema de electricidad, tiene unos 120m2, quiero cambiar la caja general para poner las protecciones divididas en cocina, salón y despacho, el aire en una protección a parte y por último las habitaciones y el baño, a partir de ahí reubicar cajas de derivación e interruptores y poner más enchufes y una caja que lleve todo el tema del internet en el salón, ya que quiero llevar a las 3 habitaciones un cable de datos y antena. Me gustaría saber por cuanto me podría salir y tal, yo he hecho un plano ya de como va a ir mas o menos, sin saber todavía el baño como ubicarlo. Lo pondré en imágenes para que lo veáis más claro. El techo irá de pladur, asi que se podrá llevar todos los tubos por arriba sin problemas. Muchas gracias y un saludo!

¿Tienes alguna pregunta?
Pregunta a la comunidad

9 Respuestas

Ramiro
Ramiro
Ramiro respondió... Pladur Y Escayola (Málaga, Málaga) Pladur Y Escayola - hace 7 años

Hola mi nombre es Ramiro .

Con todos los datos que me aporta no le puedo dar un precio exacto.faltan algunas cosas .

Si ay que colocar luminaria si ay que hacer Arrebolas y ciertas dudas que tengo.

Yo me dedico a reformas integrales le podría pasar precios de la reforma completa.

La electricidad podría ronda de 2000 € a 2600€ con boletín nuevo.

Le pasó fotos de un salón de juegos que estamos terminando.

Un saludo.

Responder
¿Inapropiado? Reporta una incidencia
Jose Maria Pedrosa Arias
Jose Maria Pedrosa Arias
Jose Maria Pedrosa Arias respondió... Grupo Parusa Reizeng,s.l. (Torremolinos, Málaga) Grupo Parusa Reizeng,s.l. - hace 7 años

Con esa superficie, cuadro de mandos, a/a..etc, mecanismo gama media, unos 4000 euros con legalización incluida.

Responder
¿Inapropiado? Reporta una incidencia
Jose Manuel Garcia respondió... Particular - hace 7 años

Hola muchos electricistas cobran las reformas por la cantidad de puntos de la instalación ( interruptores, conmutadores, enchufes, tomas tv, etc...)sobre precios que rondan los 30/40€ para mecanismos de gama media, así un piso de unos 50 mecanismos puede salir por los 1500€, con todo incluido automáticos y mecanismos gama media....,también hay que tener en cuenta que las tomas tf/ informática son mas caras por los precios de los mecanismos....

Responder
¿Inapropiado? Reporta una incidencia
Raül Tejedor
Raül Tejedor
Raül Tejedor respondió... Tot Reformes (Badalona, Barcelona) Tot Reformes - hace 7 años

El precio por el que nuestra empresa realizaría una instalación de estas características con el suministro e instalación contemplando una gama media de embellecedores y mecanismos, rondaría entre los 4500 y los 5500 aproximadamente.

Responder
¿Inapropiado? Reporta una incidencia
DIEGO Najarro
DIEGO Najarro
DIEGO Najarro respondió... Cable Gestion Comunicaciones sl (Acebuchal, Málaga) Cable Gestion Comunicaciones sl - hace 7 años

según lo solicitado, todo dependerá de la gama de los mecanismos que quiera usted, si eliges de gama medía el presupuesto podría oscilar entre 2200€ y 2500€

Responder
¿Inapropiado? Reporta una incidencia
limaservice
limaservice
limaservice respondió... Limaservice (Mijas, Málaga) Limaservice - hace 7 años

El precio mas económico con la mejor calidad.

Todo en uno:

Albañil, electricista y pintor

Rápido y limpio

Responder
¿Inapropiado? Reporta una incidencia
Francisco
Francisco
Francisco respondió... B.i.m.c. Proyectos (Torremolinos, Málaga) B.i.m.c. Proyectos - hace 7 años

2000 euros mas o menos

Responder
¿Inapropiado? Reporta una incidencia
Diego
Diego
Diego respondió... Remaconst S.l (Cabrillas, Málaga) Remaconst S.l - hace 7 años

unos 2400 €

Responder
¿Inapropiado? Reporta una incidencia
Leonardo Gonzalez Dominguez
Leonardo Gonzalez Dominguez
Leonardo Gonzalez Dominguez respondió... Construcciones Lgd (Málaga, Málaga) Construcciones Lgd - hace 7 años

Hola dependerá mucho de las calidad de los elementos y mecanismos que quiera poner. Pero bueno teniendo en cuenta su información y con material de gama media , mínimo 4000€ eso es un estimado de trabajo terminado

Responder
¿Inapropiado? Reporta una incidencia
Deja tu respuesta

Para escribir una respuesta debes estar registrado. No está permitido incluir teléfonos de contacto, e-mails o enlaces a páginas web externas en este apartado, dicho contenido será moderado y eliminado.

Adjuntar fotografías
Pide presupuestos de electricistas en tu zona

Escoge un tipo de trabajo

¿Eres un profesional? Consigue más clientes fácilmente
Registrarse como profesional