¿Podría poner rejillas de salida del aire acondicionado en estas zonas?

Se calienta el recibidor poniendo la rejilla del aire donde esta puesta? Esta abierta la escalera, no? Yo la tengo asi y estoy en duda de poner o no salida de aire en recibidor/rellano y pasillos. Que me dice?

Beatriz
Beatriz preguntó sobre
Aire Acondicionado
Actualizado Hace 5 años

¿Podría poner rejillas de salida del aire acondicionado en estas zonas?

Se calienta el recibidor poniendo la rejilla del aire donde esta puesta? Esta abierta la escalera, no? Yo la tengo asi y estoy en duda de poner o no salida de aire en recibidor/rellano y pasillos. Que me dice?

¿Tienes alguna pregunta?
Pregunta a la comunidad

4 Respuestas

Respuestas útiles 1
Jorge  Blanco Brotons
Jorge  Blanco Brotons
Jorge Blanco Brotons respondió... Ddau Arquitectos (Pinto, Madrid) Ddau Arquitectos - hace 5 años

La clave en los sistemas de calefacción por aire está siempre en la situación de las tomas de retorno.

Especialmente cuando hay dobles alturas o comunicación entre plantas, el aire caliente al ser menos denso que el aire frio, va a subir, por lo que la planta baja va a ser muy complicado que se mantenga caliente. Por la imagen que veo, y la disposición de la rejilla, la corriente de aire está direccionada hacia el hueco de la escalera, por lo que el aire caliente saldrá en horizontal y se irá directamente a la planta primera.

La única opción que veo es disponer sobre la puerta de una salida de aire en techo, que no lance el aire demasiado en horizontal, casi como tobera hacia abajo, y lo ideal sería disponer de una toma de retorno en el suelo para asegurar que el aire calienta barra toda la estancia.

Responder
¿Inapropiado? Reporta una incidencia
Beatriz replicó... Particular - hace 5 años

Aaah, entiendo. Si pongo rejilla de retorno arriba de la puerta de entrada, no se ira tanto que ponerla donde esta, no?. Muchas gracias, voy a ver que hago... estoy indecisa... xk quiero que me caldee toda la casa y no se si llegare a caldearla ????

¿Inapropiado? Reporta una incidencia
Juan
Juan
Juan respondió... Saico Climatización (Madrid, Madrid) Saico Climatización - hace 5 años

Como imagino que obras las justas, yo cambiaría la colocación de la rejilla de impulsión, en la foto horizontal, a vertical, debajo de la actualmente instalada, mirando hacia el suelo. No se como va actualmente el retorno, pero si fuera posible, pondría una rejilla próxima al suelo, para que el aire caliente no se estratifique, y circule por toda la estancia.

Responder
¿Inapropiado? Reporta una incidencia
Beatriz replicó... Particular - hace 5 años

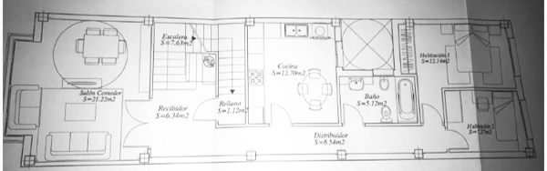
Disculpad, pero la foto indexada no es mi casa, escogí una que estaba en habitissimo, ya que mi escalera es parecida.

No tengo la preinstalación hecha, debo de tirar el techo de los paaillos, molduras y techos de los wc para poder poner las 2 maquinas. Les adjunto mi plano verdadero. Disculpad por las molestias ocasionadas.

Saludos,

¿Inapropiado? Reporta una incidencia
Deja tu respuesta

Para escribir una respuesta debes estar registrado. No está permitido incluir teléfonos de contacto, e-mails o enlaces a páginas web externas en este apartado, dicho contenido será moderado y eliminado.

Adjuntar fotografías
Pide presupuestos de aire acondicionado en tu zona

Escoge un tipo de trabajo

¿Eres un profesional? Consigue más clientes fácilmente
Registrarse como profesional