Sistema de calefacción

Hola buenas, estoy hecho un lio a la hora de elegir el sistema de calefacción para mi piso de 180 m2, me estoy declinando por poner bomba de calor mediante instalación de conductos y así me valdría también para el aire acondicionado. Me han comentado que existen máquinas de muy poco consumo. También un dato a tener en cuenta es que el piso solo va a estar habitado por las tardes y noches. He pensado en realizarlo en dos zonas con dos máquinas.

La verdad que estoy hecho un lío, ¿qué me aconsejáis?, ¿qué gasto me supondría la preinstalación?

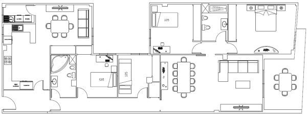
Adjunto foto, estoy en Jaén.

Fmanuel Lara
Fmanuel Lara preguntó sobre
Calefacción
Actualizado Hace 11 años

Sistema de calefacción

Hola buenas, estoy hecho un lio a la hora de elegir el sistema de calefacción para mi piso de 180 m2, me estoy declinando por poner bomba de calor mediante instalación de conductos y así me valdría también para el aire acondicionado. Me han comentado que existen máquinas de muy poco consumo. También un dato a tener en cuenta es que el piso solo va a estar habitado por las tardes y noches. He pensado en realizarlo en dos zonas con dos máquinas.

La verdad que estoy hecho un lío, ¿qué me aconsejáis?, ¿qué gasto me supondría la preinstalación?

Adjunto foto, estoy en Jaén.

Sin título_690485
¿Tienes alguna pregunta?
Pregunta a la comunidad

5 Respuestas

Respuestas útiles 4
José Luis Búrdalo Martínez
José Luis Búrdalo Martínez
José Luis Búrdalo Martínez respondió... compás y cartabón (Alcalá de Henares, Madrid) compás y cartabón - hace 11 años

Buenas noches.

La verdad es que Jaén no tiene precisamente unos inviernos tan crudos como tenemos en el centro peninsular o mucho más en el norte. La bomba de calor de alta eficiencia energética parece buena solución, pero precisamente hablaba hace unos días con un compañero de Marbella y planteabamos colocar en una vivienda de allí una instalación de climatización por aerotérmia y los datos que obteníamos en las simulaciones eran bastante buenos, contando que en ese caso (vivienda unifamiliar en una villa) también podíamos colocar una placas solares para apoyo de producción de agua caliente.

En cuanto a la instalación, lo más lógico es que pida precios a algunos instaladores de su ciudad y aquí mismo, en habitissimo, puede usted pedir presupuesto y se pondrán en contacto con usted profesionales interesados próximos a su residencia.

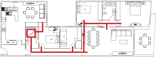
La preinstalación de conductos en la parte inferior de la fotografía no parece complicada, equipo interior en el falso techo del baño secundario y desde ahí, distribución por el falso techo del pasillo, incluso si quiere, puede sacar un ramal a la zona de comedor de la cocina por el propio baño o sobre el armario del dormitorio situado al lado. La parte "fea" está en llegar con los conductos a la zona superior derecha de la foto sería preciso atravesar el salón con una falsa viga, por ejemplo, transversalmente sobre el mueble aparador junto a al meda de comedor y otra falsa viga en el dormitorio secundario, para alcanzar el pasillo y llegar al dormitorio principal,... pero vamos es factible dicha instalación.

Gracias. Un saludo.

Sin título-1_690775
Responder
¿Inapropiado? Reporta una incidencia
José Luis Búrdalo Martínez
José Luis Búrdalo Martínez
José Luis Búrdalo Martínez respondió... compás y cartabón (Alcalá de Henares, Madrid) compás y cartabón - hace 11 años

Buenos días.

Adjunto la fotografías de un sistema muy básico de aerotermica de BAXI para pequeñas viviendas, como digo es muy básico, en una vivienda como la suya se complicaría un poco, pero lo bueno de este esquema es que dada su sencillez se puede entender fácilmente su funcionamiento.

En cuanto a la opción de dos máquinas, parece buena a priori, y podría pensarse también en dividir la instalación de aerotermia con ese mismo criterio.

Un saludo.

AEROTERMIA BÁSICA_692612
Responder
¿Inapropiado? Reporta una incidencia
Angel Hita López
Angel Hita López
Angel Hita López respondió... Hitagas (Las Gabias, Granada) Hitagas - hace 11 años

Tiene varias opciones, pero yo me inclino por un sistema híbrido AEROTERMIA, .Posibilidad de Calefacción, refrigeración y Agua Caliente Sanitaria, con un bajo consumo.

Podríamos estudiarlo. Un saludo

Responder
¿Inapropiado? Reporta una incidencia
José Luis Búrdalo Martínez
José Luis Búrdalo Martínez
José Luis Búrdalo Martínez respondió... compás y cartabón (Alcalá de Henares, Madrid) compás y cartabón - hace 11 años

Buenas noches.

Deje que le busco un esquema en envié hace unos días al compañero que indicaba en la primera respuesta (es un esquema de una casa comercial) y mañana o pasado lo cuelgo aquí para explicarle un poco como funciona.

Un saludo.

Responder
¿Inapropiado? Reporta una incidencia
Fmanuel Lara respondió... Particular - hace 11 años

En que consiste la aerotermia? he oido hablar de ello, pero no tengo claro como funciona.

Y la idea de instalar dos máquinas?, una en cada baño, para así dividir en dos zonas el piso, es que son muy grandes las habitaciones. Me han hablado de poner una en el baño interior, para salón y los dos dormitorios grandes, y otra en el otro baño, para cocina-comedor y dormitorios (que uno irá destinado a oficina), por tanto con una maquina mas pequeña, podría climatizar la zona de día (cocina-comedor y oficina), sin ser necesario climatizar el resto del piso. Realmente, ¿merece esto la pena?

Muchisimas gracias por el interés. Un saludo

Responder
¿Inapropiado? Reporta una incidencia
Deja tu respuesta

Para escribir una respuesta debes estar registrado. No está permitido incluir teléfonos de contacto, e-mails o enlaces a páginas web externas en este apartado, dicho contenido será moderado y eliminado.

Adjuntar fotografías
Pide presupuestos de calefacción en tu zona

Escoge un tipo de trabajo

¿Eres un profesional? Consigue más clientes fácilmente
Registrarse como profesional