Ayuda para integrar cocina

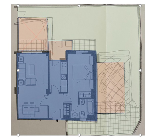
Estoy viendo una casa, pequeña, pero que creo que tiene muchas posibilidades. Me gustaría integrar la cocina y quizá sacar otro dormitorio o baño, o sacar una terraza acristalada. Alguna idea? No tengo las medidas, la verdad.

Carolina Ramos
Carolina Ramos preguntó sobre
Reformas Viviendas
Actualizado Hace 4 años

Ayuda para integrar cocina

Estoy viendo una casa, pequeña, pero que creo que tiene muchas posibilidades. Me gustaría integrar la cocina y quizá sacar otro dormitorio o baño, o sacar una terraza acristalada. Alguna idea? No tengo las medidas, la verdad.

¿Tienes alguna pregunta?
Pregunta a la comunidad

7 Respuestas

Respuestas útiles 2
Juan Ionel Nitu
Juan Ionel Nitu
Juan Ionel Nitu respondió... Modelica Sl (Mejorada del Campo, Madrid) Modelica Sl - hace 4 años

Hola Carolina:

Nuestras propuestas:

1. Cocina de diseño integrada al salón (Cocina americana)

2. Utilizar puertas de corredera en todo el inmueble.

3. La actual cocina pasaría a ser un pequeño dormitorio.

4. Achicar baño y dar más espacio al dormitorio principal

5. Acristalar terraza

6. Suelos de color claro

Responder
¿Inapropiado? Reporta una incidencia
Carolina Ramos replicó... Particular - hace 4 años

Muchas gracias! Aún es pronto para decidir qué hacer, porque estoy en proceso de compra, pero en unos meses lo valoraré seriamente y pediré presupuestos.

¿Inapropiado? Reporta una incidencia
Luz Marina Urdaneta Olivarez
Luz Marina Urdaneta Olivarez
Luz Marina Urdaneta Olivarez respondió... ARQUILUZ REFORMAS Y MUCHO MAS (Madrid, Madrid) ARQUILUZ REFORMAS Y MUCHO MAS - hace 4 años

Hola Carolina!

Buenos días, revisando la planta que nos enviaste estamos convencidos de que se pueden hacer una transformación integral muy interesante, tenemos la experiencia necesaria para ayudarte.

Contacta con nosotros para concretar una cita y visitar la vivienda, a fin de conocer tus requerimientos y poder presentarle un proyecto personalizado y su correspondiente presupuesto.

Quedamos a tu disposición para cualquier otra consulta.

Felices fiestas.

Luz Marina Urdaneta.

5 fotos
Responder
¿Inapropiado? Reporta una incidencia
Alejandro Añon Espallargas Alcorisa
Alejandro Añon Espallargas Alcorisa
Alejandro Añon Espallargas Alcorisa respondió... Construcciones Y Carpinteria Hermanos Añon (Alcorisa, Teruel) Construcciones Y Carpinteria Hermanos Añon - hace 4 años

yo pienso mas como José Luis.

abrir huecos en fachadas, difícil, por no decir imposible.

cerrar una terraza, lo mismo.

poner la cocina en otro sitio, muy complicado, por los desagües mayormente y salidas de humos.

porque por el plano, parece un ático en un edificio de viviendas.

si fuese una casa particular, sin vecinos debajo ni encima, seria otra cosa.

Responder
¿Inapropiado? Reporta una incidencia
José Luis Búrdalo Martínez
José Luis Búrdalo Martínez
José Luis Búrdalo Martínez respondió... compás y cartabón (Alcalá de Henares, Madrid) compás y cartabón - hace 4 años

Buenas tardes Carolina.

Me temo que lo tiene muy complicado, tal vez pueda sacar un pequeño aseo, pero nada más... a costa de perder el armario de la entrada y hacer algo más pequeño el dormitorio, el resto, lo tiene francamente complicado... en principio para un nuevo dormitorio debe abrir huecos de ventanas en una fachada que, intuyo es una planta ático, no es de su propiedad, toda fachada de vivienda en altura es un elemento común que no se puede modificar (Ley de Propiedad Horizontal) y aquel que diga que se puede alegremente, sin un proyecto de conjunto, me gustaría ver lo alegremente que también lo firman acompañado de una póliza de seguro de responsabilidad civil o con un visado Colegial.

Y agrandar la vivienda usando la terraza, tres cuartas partes de lo mismo, los áticos no tienen las terrazas grandes por capricho, son requisitos urbanísticos, los retranqueos de fachadas son mayores, la edificabilidad suele estar agotada y para colmo, esas terrazas también suelen ser de uso privativo pero no en propiedad por lo que también son elementos comunes y, le podría mostrar un par de casos peritados y juzgados dónde un cerramiento y ganancia de superficie (por muy acristalado que sea) generar problemas de fallos de impermeabilización y goteras a los vecinos de debajo y otro par de casos de desmontaje y ordenes de demolición de cerramientos en áticos o terrazas acristaladas con ejecución subsidiaria del orden de los 12000 €.

Saludos.

Responder
¿Inapropiado? Reporta una incidencia
Decoraciones y Obras Joan SL
Decoraciones y Obras Joan SL
Decoraciones y Obras Joan SL respondió... Decoraciones Y Obras Joan S.l. (Alcorcón, Madrid) Decoraciones Y Obras Joan S.l. - hace 4 años

Hola buenas tarde .

puede hacer usted los que quiere en la vivienda . puede llamarno quedamos y la hacemos un diseño de la vivienda de varias formas . un saludo

Responder
¿Inapropiado? Reporta una incidencia
Actum Inversiones y Proyectos
Actum Inversiones y Proyectos
Actum Inversiones y Proyectos respondió... ACTUM INVERSIONES Y PROYECTOS (San Martín de Valdeiglesias, Madrid) ACTUM INVERSIONES Y PROYECTOS - hace 4 años

Buenos días.

A la vista del plano que remite, se nos ocurren varias soluciones. Verá:

- Podría sacar una habitación donde tiene el comedor. Habría que abrir una ventana, cambiar la puerta y modificar la instalación eléctrica.

- La cocina la puede integrar con el salón tirando el tabique que los separa. Por el grosor del dibujo, me da la sensación que es de carga, por lo que habrá que poner una viga de soporte, y cambiar todas las instalaciones al otro lado del salón.

- Puede alargar el salón hacia lo que parece una terraza, ganando la superficie que ha perdido al hacer la habitación. El cierre de esta estancia se pude hacer en obra, en cristal o mixta, que es como yo lo plantearía, con cubierta de madera vista y puerta de acceso al jardín.

Desde luego tiene muchas posibilidades.

Responder
¿Inapropiado? Reporta una incidencia
Deja tu respuesta

Para escribir una respuesta debes estar registrado. No está permitido incluir teléfonos de contacto, e-mails o enlaces a páginas web externas en este apartado, dicho contenido será moderado y eliminado.

Adjuntar fotografías
Pide presupuestos de reformas viviendas en tu zona

Escoge un tipo de trabajo

¿Eres un profesional? Consigue más clientes fácilmente
Registrarse como profesional