¿Cómo podría hacer un dormitorio más en mi piso?

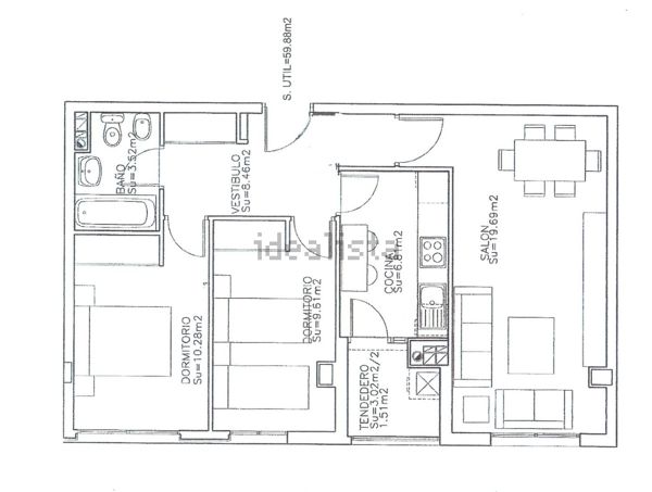
Me gustaría sacar una habitación más y un baño más en mi piso. El recibidor es algo grande por lo que me gustaría sacar metros de ahí, e intentar respetar lo máximo posible el resto de instancias.

En cuanto al baño actual, la idea es que pase a la habitación principal. Y sea el segundo baño que se pretende sacar el que quede para el resto de la casa.

Agradezco cualquier idea, al respecto

Alberto
Alberto preguntó sobre
Reformas Viviendas
Actualizado Hace 7 años

¿Cómo podría hacer un dormitorio más en mi piso?

Me gustaría sacar una habitación más y un baño más en mi piso. El recibidor es algo grande por lo que me gustaría sacar metros de ahí, e intentar respetar lo máximo posible el resto de instancias.

En cuanto al baño actual, la idea es que pase a la habitación principal. Y sea el segundo baño que se pretende sacar el que quede para el resto de la casa.

Agradezco cualquier idea, al respecto

¿Tienes alguna pregunta?
Pregunta a la comunidad

9 Respuestas

Respuestas útiles 3
Alejandro Añon Espallargas Alcorisa
Alejandro Añon Espallargas Alcorisa
Alejandro Añon Espallargas Alcorisa respondió... Construcciones Y Carpinteria Hermanos Añon (Alcorisa, Teruel) Construcciones Y Carpinteria Hermanos Añon - hace 7 años

pues si, jose luis, mi idea es como tu propones, mas la separacion con puertas correderas acristaladas, quedan perfectas y cumplen con el tema de luz y ventilacion, ademas del de separacion, tengo otra foto mas chula si se puede, pero no la puedo poner, el cliente me pidio que no la publicase nunca, es una cocina con puertas correderas, parece un almario o una pared de madera, segun se mire, para acceder a la parte o partes de la cocina se desplazan las puertas correderas y listo,

opino como dices, lo mejor es que contrate un tecnico y que le realice un estudio concreto para su caso, en este foro solo intentamos dar ideas y consejos, un proyecto es algo mas complejo para realizar en un foro

saludos

Responder
¿Inapropiado? Reporta una incidencia
José Luis Búrdalo Martínez
José Luis Búrdalo Martínez
José Luis Búrdalo Martínez replicó... compás y cartabón (Alcalá de Henares, Madrid) compás y cartabón - hace 7 años

...muy cierto.

Un saludo Alejandro.

¿Inapropiado? Reporta una incidencia
Alejandro Añon Espallargas Alcorisa
Alejandro Añon Espallargas Alcorisa
Alejandro Añon Espallargas Alcorisa respondió... Construcciones Y Carpinteria Hermanos Añon (Alcorisa, Teruel) Construcciones Y Carpinteria Hermanos Añon - hace 7 años

creo que lo que dice jose luis es la unica opcion posible, a falta de poder confirmar en obra lo que se puede hacer.

todas las estancias tienen que tener luz natural, para ventilar, de otra manera no te aprobaran el proyecto de mejora.

la unica solucion sobre plano, es que la cocina quede integrada con el comedor y separarla con una cristalera de este si es necesario.

te pongo foto de como hemos resuelto este problema y queda estupendo

2 fotos
Responder
¿Inapropiado? Reporta una incidencia
Alberto replicó... Particular - hace 7 años

Hola,

Gracias por tu respuesta. La idea de separar el salón y la cocina con un cristalera me gusta y esto ya lo tenía pensado.

¿De esta forma de donde sacarías la habitacón (despacho) y el nuevo baño? ¿de que tamaño quedaría el despacho y el nuevo baño?

Un saludo

¿Inapropiado? Reporta una incidencia
José Luis Búrdalo Martínez
José Luis Búrdalo Martínez
José Luis Búrdalo Martínez replicó... compás y cartabón (Alcalá de Henares, Madrid) compás y cartabón - hace 7 años

...yo creo que Alejando va en mi línea, llevar la cocina al salón y, separarla con la cristalera (esto es lo que yo no había planteado), de modo que el nuevo dormitorio se haga en la cocina.

El nuevo aseo / baño, sería del modo que dije, eliminando los armarios del vestíbulo y, al menos el del dormitorio 2 (a lo mejor también el principal y poner un nuevo mas cerca de la cama y ésta desplazarla hacia la fachada... pues, sea como sea, el nuevo baño y su inodoro, tienen que verter a la bajante del actual inodoro, pero todo eso, como le dije, lo mejor es que contrate un técnico que le levante los planos in situ y se lo dibuje, entenderá que una cosa son las ideas y ayuda desinteresada que prestamos en este foro (y le puedo asegurar que a este foro le dedico mucho tiempo), otra cosa es ponerse a dibujar y hacer un trabajo por el que se debería facturar, sobre todo, para que esté amparado por garantías profesionales y sirva para algo.

Gracias. Un saludo.

¿Inapropiado? Reporta una incidencia
José Luis Búrdalo Martínez
José Luis Búrdalo Martínez
José Luis Búrdalo Martínez respondió... compás y cartabón (Alcalá de Henares, Madrid) compás y cartabón - hace 7 años

Buenos días Alberto.

Le voy a indicar algo obvio y es que, cuanto más grande es la vivienda, más fácil es añadir estancias (baño y dormitorio en su caso), pero su vivienda tiene un tamaño bastante contenido, no es grande, por lo que sacar un nuevo baño o aseo, podría ser posible, seguramente a costa de sacrificar los armarios del vestíbulo y del dormitorio 2, pero una segunda habitación mínimamente habitable me parece harto complejo, sobre todo debido a que le falta una ventana para iluminar y ventilar dicha habitación y, las opciones de partir una ventana para sacar dos... además de ser una modificación estética de fachada que seguramente no se le autorizaría, dejaría espacios muy pequeños y desaprovechados simplemente por disponer de esas dos ventanas y precisamente, lo que falta en su caso es espacio para poder desarrollar y trabajar, pues la única idea viable que se me ocurre es que la cocina sea la nueva habitación y la cocina y salón compartan espacio, girando la cocina sobre la misma pared para poder seguir aprovechando la salida de humos.

No obstante, le sugiero que contrate a un técnico de su ciudad o provincia, que le pueda levantar el plano en cad y hacer un par de propuestas (sobre todo con el asunto de baños) y las vea gráficamente en un plano antes de tomar cualquier decisión y liarse a tirar tabiques y que luego, las cosas no quepan.

Si se trata de la Comunidad de Madrid o Guadalajara, puedo estudiar su caso. Puede solicitar contacto a través del perfil profesional compás y cartabón, usando la casilla Pide Presupuesto Gratis, Habitissimo generará el contacto.

Gracias. Un saludo.

Responder
¿Inapropiado? Reporta una incidencia
Alberto replicó... Particular - hace 7 años

Hola, lo primero, muchas gracias por contestar.

realmente lo que quiero no es una habitación, si no un despacho. Dónde pueda poner una mesa de trabajo y alguna estantería. Lo de hacer cocina americana no me gusta la idea.

¿Inapropiado? Reporta una incidencia
José Luis Búrdalo Martínez
José Luis Búrdalo Martínez
José Luis Búrdalo Martínez replicó... compás y cartabón (Alcalá de Henares, Madrid) compás y cartabón - hace 7 años

Gracias a usted.

Pues si no va a compartir el espacio de salón y cocina, le falta una ventana y el problema es que, siendo una vivienda de dimensiones contenidas, no tiene muchas más opciones.

Un saludo.

¿Inapropiado? Reporta una incidencia
Carmen Gamez Garcia replicó... Particular - hace 7 años

Totalmente de acuerdo con usted!! Le daria la vuelta a la cocina y en la cocina lavadero, haría un aseo y una habitación!! Saludos!!

¿Inapropiado? Reporta una incidencia
Deja tu respuesta

Para escribir una respuesta debes estar registrado. No está permitido incluir teléfonos de contacto, e-mails o enlaces a páginas web externas en este apartado, dicho contenido será moderado y eliminado.

Adjuntar fotografías
Pide presupuestos de reformas viviendas en tu zona

Escoge un tipo de trabajo

¿Eres un profesional? Consigue más clientes fácilmente
Registrarse como profesional