¿Cuál es la mejor manera de amueblar esta habitación?

Me preguntaba si sería mejor colocar una cama a lo largo del muro de la fachada, dejando la cama encajonada pero con un pasillo decente en el que incluso poner algo con poco fondo. O si por el contrario es preferible colocar la cama con su cabecero centrado en la pared de la fachada, dos mesillas a cada lado y poco o nada más.

Sergio
Sergio preguntó sobre
Reformas Viviendas
Actualizado Hace 4 años

¿Cuál es la mejor manera de amueblar esta habitación?

Me preguntaba si sería mejor colocar una cama a lo largo del muro de la fachada, dejando la cama encajonada pero con un pasillo decente en el que incluso poner algo con poco fondo. O si por el contrario es preferible colocar la cama con su cabecero centrado en la pared de la fachada, dos mesillas a cada lado y poco o nada más.

¿Tienes alguna pregunta?
Pregunta a la comunidad

3 Respuestas

Sergio respondió... Particular - hace 4 años

Muchas, gracias José Luis.

Me ha parecido genial la idea de "incrustar" el cabecero de la cama en el armario. En una habitación tan pequeña sería ideal una cama abatible y que visualmente todo estuviese despejado pero el día a día puede resultar tedioso subir y bajar la cama.

¡Muchas gracias!

Responder
¿Inapropiado? Reporta una incidencia
José Luis Búrdalo Martínez
José Luis Búrdalo Martínez
José Luis Búrdalo Martínez replicó... compás y cartabón (Alcalá de Henares, Madrid) compás y cartabón - hace 4 años

Gracias a usted.

Saludos.

¿Inapropiado? Reporta una incidencia
José Luis Búrdalo Martínez
José Luis Búrdalo Martínez
José Luis Búrdalo Martínez respondió... compás y cartabón (Alcalá de Henares, Madrid) compás y cartabón - hace 4 años

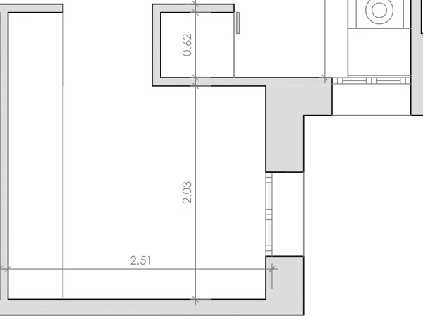
Buenas tardes Sergio.

La estancia es pequeña y la dimensión mayor de 2,51 m intuyo que no es tal, que la línea corresponde a un armario que restará como mínimo 0,60 m, por lo que en realidad tiene un espacio de 1,91 x 2,03 m, prácticamente un cuadrado.

La cama la debería colocar en el sentido de la dimensión mayor, es decir, paralela a la línea del armario, lo que tal vez pueda hacer es sacrificar parte del armario para conseguir "algo más", me explico, entre el cabecero de la cama y la pared de fachada de la ventana, hueco para una mesilla y para poder moverse alrededor de la cama, asumiendo que los pies de la misma el hueco disponible será de unos 20 cm, casi lo mínimo para mover un poco la cama a la hora de hacerla cada día... o la puede pegar a la pared de la ventana encajándola en el hueco y le queda entre la cama y el armario espacio para una mesa escritorio.

Le decía sobre sacrificar un poco de armario, actualmente estamos terminando una reforma en un pequeño piso en Madrid y sucede algo parecido, se ha generado una pequeña habitación en un hueco mínimo y el armario, que tiene unas dimensiones generosas, será mitad armario, mitad espacio de trabajo, las tomas de red doméstica, un par de puntos de luz, enchufes y una balda escritorio de trabajo se quedan "incrustados" dentro del armario para poder usarlo como espacio de trabajo... a final de año estará terminado y lo podré mostrar.

También se me ocurre que, si tiene que sacrificar armario, que es grande, tal como está orientado su plano, coloque la cama pegada a la pared inferior, a lo largo de los 2,51 m, de manera que le van a quedar 50 o 60 cm a los pies (pared de fachada con la ventana), como si incrustase usted la cama, el cabecero, en el armario y, tiene toda el rincón superior derecho para zona de escritorio.

Una variación de lo anterior sería que los pies de la cama se incrustasen en el hueco del armario, de manera que realmente sea una zona de almacenaje, estanterías... pero no el armario propiamente dicho, conservando el rincón superior derecho como zona de escritorio.

Opciones hay...

Saludos.

Responder
¿Inapropiado? Reporta una incidencia
Deja tu respuesta

Para escribir una respuesta debes estar registrado. No está permitido incluir teléfonos de contacto, e-mails o enlaces a páginas web externas en este apartado, dicho contenido será moderado y eliminado.

Adjuntar fotografías
Pide presupuestos de reformas viviendas en tu zona

Escoge un tipo de trabajo

¿Eres un profesional? Consigue más clientes fácilmente
Registrarse como profesional