¿Cuánto costaría ampliar el patio?

Buenas tardes, quiero comprar esta vivienda pero me gustaría saber si la reforma que tengo en mente es posible y en qué horquilla de precios se podría mover. Adjunto plano y fotos.

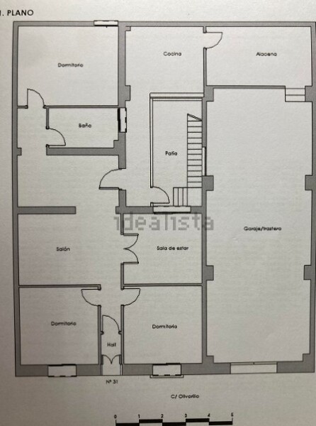
La reforma consistiría en ampliar el patio ganando espacio del garaje (que está en bruto). Para ello habría que derribar pared, techo, hacer pared nueva, escalera y el cerramiento del patio habría que cambiarlo entero ya que está viejísimo (y llevarlo hasta donde llegase el nuevo patio).

Paula Maximiano Millán
Paula Maximiano Millán preguntó sobre
Reformas Viviendas
Actualizado Hace 1 año

¿Cuánto costaría ampliar el patio?

Buenas tardes, quiero comprar esta vivienda pero me gustaría saber si la reforma que tengo en mente es posible y en qué horquilla de precios se podría mover. Adjunto plano y fotos.

La reforma consistiría en ampliar el patio ganando espacio del garaje (que está en bruto). Para ello habría que derribar pared, techo, hacer pared nueva, escalera y el cerramiento del patio habría que cambiarlo entero ya que está viejísimo (y llevarlo hasta donde llegase el nuevo patio).

4 fotos
¿Tienes alguna pregunta?
Pregunta a la comunidad

4 Respuestas

Reformas Total Asturias
Reformas Total Asturias
Reformas Total Asturias respondió... Reformas Total Asturias (Oviedo, Asturias) Reformas Total Asturias - hace 1 año

Consulta sobre Viabilidad y Presupuesto de Reforma**

Buenas tardes,

Gracias por su mensaje y por enviar el plano y las fotos de la vivienda.

Hemos revisado la información proporcionada y estamos encantados de ayudarle con la evaluación de la reforma que tiene en mente. A continuación, le detallo algunos puntos clave basados en su consulta:

### **Viabilidad de la Reforma:**

1. **Ampliación del Patio Interior:** Ampliar el patio utilizando parte del garaje es posible, pero requerirá una evaluación detallada de la estructura actual, especialmente para la eliminación del techo, el movimiento de paredes y la reubicación de la escalera.

2. **Cerramiento y Acabados:** La renovación del cerramiento del patio actual y la integración con el nuevo espacio también es factible, aunque habrá que considerar el estado de la estructura existente y los materiales a utilizar.

### **Estimación de Costos:**

Para ofrecerle un rango de precios aproximado, consideraremos los siguientes aspectos:

- **Demolición y Preparación:** Este proceso puede costar entre 1.250 € y 2.500 €, dependiendo de la extensión del área y la complejidad de la demolición.

- **Construcción y Estructura:** La construcción de nuevas paredes y adaptación de la estructura podría oscilar entre 7.000 € y 15.000 €, con un costo adicional de 2.000 € a 5.000 € para la reubicación de la escalera.

- **Cerramiento y Acabados:** Los costos de cerramiento y acabados interiores pueden variar entre 4.000 € y 11.500 €, dependiendo de los materiales y acabados seleccionados.

- **Permisos y Licencias:** Estos costos suelen estar entre 200 € y 1.000 €, dependiendo de la normativa local.

**Estimación Total Aproximada:** Para un proyecto de esta envergadura, el rango estimado sería de 12.450 € a 30.000 €, aunque esta cifra puede variar según los detalles específicos de la reforma.

### **Próximos Pasos:**

1. **Evaluación Detallada:** Le sugerimos realizar una visita a la propiedad para una evaluación más precisa. Esto nos permitirá confirmar la viabilidad del proyecto y proporcionar un presupuesto más ajustado.

2. **Reunión:** Podemos agendar una reunión para discutir sus requisitos en detalle, responder a cualquier pregunta que pueda tener y ajustar el presupuesto según sus necesidades.

Por favor, indíquenos su disponibilidad para coordinar una visita o reunión, o si prefiere discutir esto por teléfono. Estamos a su disposición para cualquier consulta adicional y para ayudarle en cada etapa del proceso.

Quedamos a la espera de su respuesta.

Saludos cordiales,

Iván

Reformas Total Asturias

Responder
¿Inapropiado? Reporta una incidencia
Antonio Cilea
Antonio Cilea
Antonio Cilea respondió... Antonio Cilea Arquitecto (Barcelona, Barcelona) Antonio Cilea Arquitecto - hace 1 año

Con 3 fotos y un plano estado actual es imposible pasar precio.

Hay que averiguar la parte estructural de la casa, vuestras exigencias, vuestras posibilidades y finalmente definir la memoria de calidades.

Solo la carpinteria podria valer 10k si uno quisiese mas calidad....

Una horquilla real podria ir de los 15k a los 30k, dependiendo de estructura y calidades. No se puede acotar mas al no tener mas informaciones, por lo tanto te recomiendo de contratar un tecnico para que haga una visita y propuestas

Responder
¿Inapropiado? Reporta una incidencia
Aurelian Bogdan
Aurelian Bogdan
Aurelian Bogdan respondió... Reformas Y Construcción Aurelio (Huelva, Huelva) Reformas Y Construcción Aurelio - hace 1 año

No se puede dar un presupuesto fijo hasta qué no se hace una visita en la vivienda puede salir unos 9000

Responder
¿Inapropiado? Reporta una incidencia
MACAM CONSTRUCIONES Y REFORMA
MACAM CONSTRUCIONES Y REFORMA
MACAM CONSTRUCIONES Y REFORMA respondió... Macam Home (Alicante, Alicante) Macam Home - hace 1 año
El precio para este trabajo sería... 10.000 €

Hola buenos días, es complejo dar un valor para esta reforma ya que la forma más oportuna es realizar una visita en sitio para revisar temas estructurales, pero podría salir máximo en 10.000 euros.

Responder
¿Inapropiado? Reporta una incidencia
Deja tu respuesta

Para escribir una respuesta debes estar registrado. No está permitido incluir teléfonos de contacto, e-mails o enlaces a páginas web externas en este apartado, dicho contenido será moderado y eliminado.

Adjuntar fotografías
Pide presupuestos de reformas viviendas en tu zona

Escoge un tipo de trabajo

¿Eres un profesional? Consigue más clientes fácilmente
Registrarse como profesional