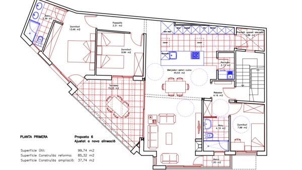
¿Qué opináis acerca de la distribución de la sala, comedor y cocina?

Les agradecería que me aconsejaran en la distribución de sala, pues aun no hemos empezado el proyecto i estamos a tiempo de modificar lo que sea necesario. No se si quedara bien la mesa del comedor, pues da prácticamente en la entrada a la sala.

Muchas gracias

Josep Ramon Castells Ribes
Josep Ramon Castells Ribes preguntó sobre
Reformas Viviendas
Actualizado Hace 9 años

¿Qué opináis acerca de la distribución de la sala, comedor y cocina?

Les agradecería que me aconsejaran en la distribución de sala, pues aun no hemos empezado el proyecto i estamos a tiempo de modificar lo que sea necesario. No se si quedara bien la mesa del comedor, pues da prácticamente en la entrada a la sala.

Muchas gracias

¿Tienes alguna pregunta?
Pregunta a la comunidad

1 Respuestas

Moya Interiorismo Moya
Moya Interiorismo Moya
Moya Interiorismo Moya respondió... Moyainteriorismo (Lleida, Lleida) Moyainteriorismo - hace 9 años

En nuestra opinión la mesa debería ser adyacente a la isla ya que así no estaría tan en medio y quedaría más integrada.

Responder
¿Inapropiado? Reporta una incidencia
Deja tu respuesta

Para escribir una respuesta debes estar registrado. No está permitido incluir teléfonos de contacto, e-mails o enlaces a páginas web externas en este apartado, dicho contenido será moderado y eliminado.

Adjuntar fotografías
Pide presupuestos de reformas viviendas en tu zona

Escoge un tipo de trabajo

¿Eres un profesional? Consigue más clientes fácilmente
Registrarse como profesional