¿Cómo podría distribuir la entrada junto al salón y habitación de matrimonio?

Buenos días, me gustaría asesoramiento para distribuïr mi entrada junto a mi salón, y por otro lado, mi habitación de matrimonio. Os djunto planos de lo que tengo pensado.

Sandra
Sandra preguntó sobre
Decoradores
Actualizado Hace 9 años

¿Cómo podría distribuir la entrada junto al salón y habitación de matrimonio?

Buenos días, me gustaría asesoramiento para distribuïr mi entrada junto a mi salón, y por otro lado, mi habitación de matrimonio. Os djunto planos de lo que tengo pensado.

¿Tienes alguna pregunta?
Pregunta a la comunidad

11 Respuestas

Respuestas útiles 3
José Luis Búrdalo Martínez
José Luis Búrdalo Martínez
José Luis Búrdalo Martínez respondió... compás y cartabón (Alcalá de Henares, Madrid) compás y cartabón - hace 9 años

Roberto, no están permitidos los datos de contacto y usted va dejando en diversas respuestas su web, bien escribiéndola, bien en forma de logotipo con .es

Debe limitarse a su ficha profesional Habitissimo, como hacemos todos aquellos que asumimos las normas del espacio en el que intervenimos y respetamos al resto de compañeros que hacen lo propio.

Ayer lo hizo en un par de respuestas en las que ya se han eliminado esos datos y veo que hoy, en al menos tres, vuelve a incluir datos.

Respete al resto de compañeros.

Responder
¿Inapropiado? Reporta una incidencia
José Luis Búrdalo Martínez
José Luis Búrdalo Martínez
José Luis Búrdalo Martínez respondió... compás y cartabón (Alcalá de Henares, Madrid) compás y cartabón - hace 9 años

Buenas tardes Sandra.

Cuando decía puertas correderas de gran formato, me refería al espacio que quedaba entre la escalera y la fachada de la puerta de entrada, pensando que la escalera estaba cubierta con tabique por lo que indica, no es así... así que esa idea no es válida y volveríamos sobre la idea de un elemento separador, tabique de vidrio o como ha indicado algún compañero, estanterías, etc...

En cuanto al dormitorio, lo que le quería decir en la primera respuestas es lo mismo que ya le han dibujado.

Gracias. Un saludo.

Responder
¿Inapropiado? Reporta una incidencia
José Luis Búrdalo Martínez
José Luis Búrdalo Martínez
José Luis Búrdalo Martínez respondió... compás y cartabón (Alcalá de Henares, Madrid) compás y cartabón - hace 9 años

Buenas noches Sandra.

La disposición del salón me parece correcta, si no quiere dejarlo tan expuesto respecto de la entrada, puede colocar una puertas correderas de gran formato o algún elemento separador (un tabique de vidrio, por ejemplo, elementos vegetales (un pequeño jardín interior vertical)), etc... en cuanto al dormitorio, queda muy bien la idea de separar el armario del cabecero de la cama pero dependiendo de la orientación de la vivienda, el ventanal a los pies de la cama puede llegar a ser incómodo, piense que en verano puede que duerman con las ventanas abiertas y al amanecer se pueden encontrar el sol de cara, por lo que poner el cabecero pegado al muro medianero puede ser mejor opción.

Gracias. Un saludo.

Responder
¿Inapropiado? Reporta una incidencia
Sandra replicó... Particular - hace 9 años

Cuando habla de puertas correderas de grandes dimensiones, no quedaría extraño si la pongo de la pared (entrada) a la escalera. Ya que quedaría una parte tapada (puerta corredera) y otra abierta (barandas escaleras).

Gracias

¿Inapropiado? Reporta una incidencia
Roberto respondió... Particular - hace 9 años

BUENOS DÍAS LE HACEMOS PLANO PLANTA Y 3D DISTRIBUCIÓN ,PARA VER ACABADOS PRECIO ECONÓMICO: 200 EUROS

Responder
¿Inapropiado? Reporta una incidencia
Bolper
Bolper
Bolper respondió... Bolper Arquitectura Y Construcción (Valladolid, Valladolid) Bolper Arquitectura Y Construcción - hace 9 años

Buenos días Sandra,

Si lo deseas puedes contactar con nuestra empresa para ofrecerte hacer cambios de distribuciones interiores sobre los planos que tienes realizados, con varias opciones para que puedas estudiarlo con detalle.

También ofrecemos renderizados y fotomontajes para que vieras el resultado final.

Recibe un cordial saludo.

Bolper · Arquitectura y Construcción

Responder
¿Inapropiado? Reporta una incidencia
Oscar Almiñana López
Oscar Almiñana López
Oscar Almiñana López respondió... óscar Almiñana (Getafe, Madrid) óscar Almiñana - hace 9 años

Buenas Sandra

Si necesita ayuda con las estancias, es muy difícil dar consejos y distribuciones en estos mensaje.

Un saludo

Oscar Almiñana López

Decorador interiorista

Responder
¿Inapropiado? Reporta una incidencia
Ines Guillan Iglesias
Ines Guillan Iglesias
Ines Guillan Iglesias respondió... In-Decor (Siero, Asturias) In-Decor - hace 9 años

La distribución del salón es la correcta, para separar la entrada del salón puedes trabajar con una estantería divisoria de suelo a techo, daría mucho juego y hay muchas opciones en cuanto acabados y materiales, puedes utilizar biombos, prestas acristaladas plegables, muretes de altura media con ornamentación vegetal ... etc

Respecto al dormitorio giraría la cama 90 grados y la colocaría en la pared focal de la estancia, el resto de la distribución es la correcta

Responder
¿Inapropiado? Reporta una incidencia
Sandra replicó... Particular - hace 9 años

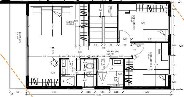
En relación a la habitación de matrimonio. ¿Ésta es la idea que me comenta (imagen)? entonces tengo que eliminar el tabique que separa el vestidor del cabezal.

Gracias.

¿Inapropiado? Reporta una incidencia
Xavier Bagó
Xavier Bagó
Xavier Bagó respondió... Taller De Obras 01std (Sant Cugat del Vallés, Barcelona) Taller De Obras 01std - hace 9 años

Buenos dias

Bonito duplex y espacioso, como todo hay distintas posibilidades que se tienen que estudiar, a mi entender según la distrubución actual hay la misma medida de salón que de comedor (posiblemente este espacio se use poco a la vista de la cocina que tiene) hay que ver opciones de comedor-estudio??, ampliar zona salón??, en cuanto a la apertura entre recibidor y salón entiendo que se puede resolver con un espacio separador pero de utilidad dejando siempre aperturas para tener sensacion de espacio y de fácil conexión con el resto del piso. En cuanto al dormitorio es un gran espacio con poca zona de armario si le gusta como lo ha distribuido tendría que alargar la pared donde esta la butaca y crear otro vestidor en esta zona, le ayudaría a tener más armarios.

Cordialmente. Xavier

Responder
¿Inapropiado? Reporta una incidencia
Sandra replicó... Particular - hace 9 años

Buenos días Xavier,

Las medidas salón-comedor vienen dadas por la escalera que al centrarla en la planta para poder crear habitaciones delante y detrás, condicionó que el salón no fuera tan grande. La verdad que sí que hacemos mucha vida en el salón y me gustaría verlo más amplio ya que al tener el sofá en medio lo veo pequeño. Qué otras opciones de distribuir el dormitorio hay? había pensado en eliminar el tabique que separa el vestidor y poner la cama de la siguiente manera, pero no acabo de ver claro la zona dónde está la butaca que función puede tener.

Gracias.

¿Inapropiado? Reporta una incidencia
Deja tu respuesta

Para escribir una respuesta debes estar registrado. No está permitido incluir teléfonos de contacto, e-mails o enlaces a páginas web externas en este apartado, dicho contenido será moderado y eliminado.

Adjuntar fotografías
Pide presupuestos de decoradores en tu zona

Escoge un tipo de trabajo

¿Eres un profesional? Consigue más clientes fácilmente
Registrarse como profesional