¿Podéis ayudarme con la distribución del salón?

Buenos días,

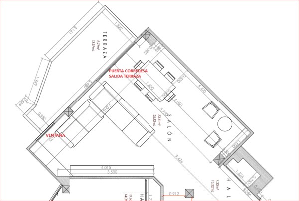
Os envío un plano del salón para ver si me podéis ayudar a realizar la distribución, no tengo radiadores y me gustaría hacer dos ambientes, sofás y comedor. Como podéis ver en el plano, es un salón abierto, sin puerta de entrada y con una forma irregular. La distribución que aparece no me desagrada, pero la duda que tengo es si es cómodo colocar el televisor en una pared que no está paralela al sofá.

Nuria
Nuria preguntó sobre
Reformas Viviendas
Actualizado Hace 10 años

¿Podéis ayudarme con la distribución del salón?

Buenos días,

Os envío un plano del salón para ver si me podéis ayudar a realizar la distribución, no tengo radiadores y me gustaría hacer dos ambientes, sofás y comedor. Como podéis ver en el plano, es un salón abierto, sin puerta de entrada y con una forma irregular. La distribución que aparece no me desagrada, pero la duda que tengo es si es cómodo colocar el televisor en una pared que no está paralela al sofá.

¿Tienes alguna pregunta?
Pregunta a la comunidad

4 Respuestas

Nuria respondió... Particular - hace 10 años

Es un sofá en L

Responder
¿Inapropiado? Reporta una incidencia
Alejandro Pop
Alejandro Pop
Alejandro Pop respondió... Alejandro Reformas Y Construcciones (Madrid, Madrid) Alejandro Reformas Y Construcciones - hace 10 años

los sofas parecen muy grandes para el citio creo que ai que eliminar uno de

los sofas

Responder
¿Inapropiado? Reporta una incidencia
Alejandro Morales
Alejandro Morales
Alejandro Morales respondió... Estudio Sta Mónica L´eliana Diseño Interior (L'Eliana, Valencia) Estudio Sta Mónica L´eliana Diseño Interior - hace 10 años

Por mi parte, no entiendo la representación del sofá, se superpone uno de tres plazas sobre otro de dos. O está mal representado y en realidad es un sofá con chaiselong o son módulos. Habría que empezar por ahí....

Responder
¿Inapropiado? Reporta una incidencia
comtres
comtres
comtres respondió... Comtres (Boadilla, Madrid) Comtres - hace 10 años

Creemos que la distribución es bastante equilibrada, te permite libertad de movimientos. Lo que te aconsejariamos es que cambiases la zona de comedor donde has puesto las pequeña butacas ya que te va a permitir acceder mejor a la salida que tienes a la terraza. La televisión esta correcta y la vas a ver perfectamente

Responder
¿Inapropiado? Reporta una incidencia
Deja tu respuesta

Para escribir una respuesta debes estar registrado. No está permitido incluir teléfonos de contacto, e-mails o enlaces a páginas web externas en este apartado, dicho contenido será moderado y eliminado.

Adjuntar fotografías
Pide presupuestos de reformas viviendas en tu zona

Escoge un tipo de trabajo

¿Eres un profesional? Consigue más clientes fácilmente
Registrarse como profesional