Duda diseño en habitación principal

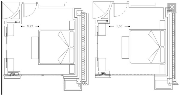
Tenemos dos opciones de entrada a la habitación principal, una es con la pared recta y otra con una pared curva al principio y luego recta. La idea es poner un banco delante de la cama, tal cual se aprecia en el plano. Nuestra duda es si merece la pena o no perder la linealidad de la pared en la entrada a cambio de ganar 14 cm en el paso entre la cama y dicha pared, pasando de 92 a 106 cm, teniendo en cuenta que el banco que comentamos está en la trayectoria de entrada. Os adjunto plano.

Gracias

Luis
Luis preguntó sobre
Reformas Viviendas
Actualizado Hace 9 años

Duda diseño en habitación principal

Tenemos dos opciones de entrada a la habitación principal, una es con la pared recta y otra con una pared curva al principio y luego recta. La idea es poner un banco delante de la cama, tal cual se aprecia en el plano. Nuestra duda es si merece la pena o no perder la linealidad de la pared en la entrada a cambio de ganar 14 cm en el paso entre la cama y dicha pared, pasando de 92 a 106 cm, teniendo en cuenta que el banco que comentamos está en la trayectoria de entrada. Os adjunto plano.

Gracias

¿Tienes alguna pregunta?
Pregunta a la comunidad

5 Respuestas

Respuestas útiles 1
José Luis Búrdalo Martínez
José Luis Búrdalo Martínez
José Luis Búrdalo Martínez respondió... compás y cartabón (Alcalá de Henares, Madrid) compás y cartabón - hace 9 años

Buenas noches Luis.

Para gustos, los colores,... las dos opciones son válidas y no hay impedimento técnico ni estético que favorezca a una respecto de la otra. Personalmente me gusta la idea de dejar la pared recta en el dormitorio y que la curva se quede en el otro espacio, que supongo es una escalera.

Un saludo.

Responder
¿Inapropiado? Reporta una incidencia
Jose Luis Garcia
Jose Luis Garcia
Jose Luis Garcia respondió... Reformas Garcen S.L (Madrid, Madrid) Reformas Garcen S.L - hace 9 años

Buenos dias luis , a mi particularmente me parece mejor opcion dejar la pared recta,es mas aprovechable el espacio

saludos

Responder
¿Inapropiado? Reporta una incidencia
Daniel Sanchez
Daniel Sanchez
Daniel Sanchez respondió... Atipical (Madrid, Madrid) Atipical - hace 9 años

Buenos días Luis, en mi opinión, al estar detrás de la puerta no va a ser visibles salvo cuando la puerta esté cerrada, la estética del muro curvo es bonita, sobre todo si pudieras continuarlo más y llevar los huecos de instalaciones a la esquina, con el ancho del mueble aparador que tienes en la pared de la izquierda. En todo caso, con la opción del muro curvo se hace más amplio el espacio y eso sí se va a notar, por lo que yo elegiría esta opción.

Responder
¿Inapropiado? Reporta una incidencia
Carlos
Carlos
Carlos respondió... Visual (Alcalá de Henares, Madrid) Visual - hace 9 años

Buenos días Luis, dada la distancia de la puerta a la cama, el paso entre el banco y la pared es el mismo en las dos opciones. A mi particularmente me gusta más en recto. Saludos.

Responder
¿Inapropiado? Reporta una incidencia
Deja tu respuesta

Para escribir una respuesta debes estar registrado. No está permitido incluir teléfonos de contacto, e-mails o enlaces a páginas web externas en este apartado, dicho contenido será moderado y eliminado.

Adjuntar fotografías
Pide presupuestos de reformas viviendas en tu zona

Escoge un tipo de trabajo

¿Eres un profesional? Consigue más clientes fácilmente
Registrarse como profesional