¿Podría construir una cochera?

Buenas, hace unos meses me compré una vivienda adosada a la cual me gustaría poder sacarle una puerta de cochera ya que en el barrio se puede volver algo tedioso aparcar, pero no se me ocurre como hacerlo sin sacrificar mas cosas en la planta de abajo, porque ademas quiero darle una nueva ubicacion a la cocina y baño (la tengo que reformar, pero NO tengo idea de que hacerle, la verdad).

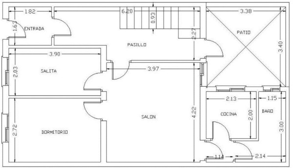
La dimension del muro exterior es de 55cm y el muro de carga de la salita y dormitorio 35cm, en principio me gustaría poner la cochera donde está la salita, aunque haya que agrandar de alguna forma, por la distribucion de la calle por el tema de no quitar muchos aparcamientos, ya que es una calle estrecha en el que se puede estacionar en un lado de la via (enfrente mi casa)

He "contactado" con varios profesionales de mi zona, pero de 4 que me ha visitado la casa, ninguno me ha dado una respuesta, ni presupuestos ni nada, aunque estoy a la espera de una empresa encontrada en esta plataforma, pero ando un poco "desesperado" porque pensaba que me sería relativamente facil que algun profesional me aconsejara.

Adjunto plano acotado.

Muchas gracias

Daniel Juarez
Daniel Juarez preguntó sobre
Reformas Viviendas
Actualizado Hace 7 años

¿Podría construir una cochera?

Buenas, hace unos meses me compré una vivienda adosada a la cual me gustaría poder sacarle una puerta de cochera ya que en el barrio se puede volver algo tedioso aparcar, pero no se me ocurre como hacerlo sin sacrificar mas cosas en la planta de abajo, porque ademas quiero darle una nueva ubicacion a la cocina y baño (la tengo que reformar, pero NO tengo idea de que hacerle, la verdad).

La dimension del muro exterior es de 55cm y el muro de carga de la salita y dormitorio 35cm, en principio me gustaría poner la cochera donde está la salita, aunque haya que agrandar de alguna forma, por la distribucion de la calle por el tema de no quitar muchos aparcamientos, ya que es una calle estrecha en el que se puede estacionar en un lado de la via (enfrente mi casa)

He "contactado" con varios profesionales de mi zona, pero de 4 que me ha visitado la casa, ninguno me ha dado una respuesta, ni presupuestos ni nada, aunque estoy a la espera de una empresa encontrada en esta plataforma, pero ando un poco "desesperado" porque pensaba que me sería relativamente facil que algun profesional me aconsejara.

Adjunto plano acotado.

Muchas gracias

¿Tienes alguna pregunta?
Pregunta a la comunidad

6 Respuestas

Respuestas útiles 1
José Luis Búrdalo Martínez
José Luis Búrdalo Martínez
José Luis Búrdalo Martínez respondió... compás y cartabón (Alcalá de Henares, Madrid) compás y cartabón - hace 7 años

Buenos días Daniel.

El problema no está en como redistribuir la vivienda (que eso puede llegar a ser más o menos sencillo), el problema es si urbanísticamente se lo permite su Ayuntamiento, puesto que el acceso a una cochera particular implica rebaje de aceras, invasión de las mismas en las maniobras de entrada y salida, es decir, un uso/ocupación y alteración de suelo público que no le corresponde a priori y, si además, como indica, la calle es estrecha, peor aún, pues necesitará espacio de entrada y salida, para el giro y maniobra... explicado de manera sencilla y sin complicarnos la vida, por ejemplo, cuando un Ayuntamiento permite la ocupación de suelo público para la instalación de un ascensor para mejora de la accesibilidad de un edificio (el beneficio de muchas personas... aquí estamos hablando de un beneficio particular, suyo... en algo que a priori, puede que no le permitan) y ello implica cambiar el trazado de aceras y perder una o dos plazas de aparcamiento, se supone que en un mundo ideal, el Ayuntamiento cuando concede la licencia, se apunta esas plazas que ha mermado de dotación a la ciudadanía, para poder incluirlas en otra zona o en futuras ampliaciones y modificaciones de planeamiento o desarrollos urbanos (como digo, explicado muy somera y fácilmente), si su barrio es zona complicada para encontrar aparcamiento, dudo mucho que el consistorio esté por la labor de perder plazas para un beneficio particular.

Debería consultar en su Ayuntamiento si es que aún no lo ha hecho.

Gracias. Un saludo.

Responder
¿Inapropiado? Reporta una incidencia
Alejandro Añon Espallargas Alcorisa
Alejandro Añon Espallargas Alcorisa
Alejandro Añon Espallargas Alcorisa respondió... Construcciones Y Carpinteria Hermanos Añon (Alcorisa, Teruel) Construcciones Y Carpinteria Hermanos Añon - hace 7 años

si fueses mi cliente, lo primero que yo miraria es si el ayuntamiento me permite realizar el hueco para la puerta y las medidas minimas que se necesitan en el interior.

lo segundo, que un arquitecto estudie la posibilidad de realizar el hueco para la puerta y si es necesario, por metros de profundidad, retrasar la pared del salon en la anchura de la cochera.

para mi, el mejor sitio es enmedio de la casa, donde se encuentra la salita y si es necesario ampliar de anchura, quitar de la entrada y el patio lo posible.

si el ayuntamiento da el permiso y el arquitecto dice que es posible, pues a seguir su consejo y realizar las aperturas correspondientes.

es entonces cuando los albañiles tienen su turno.

que aunque alguno tengamos estudios sobre el tema sin llegar a ser aparejadores, no es suficiente para dar el visto bueno, pero ayuda para la realizacion correcta de los trabajos y ejecutar correctamente lo que el arquitecto decida que es lo mejor en cada caso

esos son los consejos que le daria si fuese mi cliente y los pasos que yo seguiria

Responder
¿Inapropiado? Reporta una incidencia
Daniel Juarez respondió... Particular - hace 7 años

A ver, creo que o no me he expresado correctamente o se me han tergiversado las palabras. En ningun momento he hablado que me de igual lo que diga mi ayuntamiento, justo lo contrario, es al ayuntamiento al que le ha estado dando igual el conceder de forma descabellada vados por doquiera en zonas que no debería, pero no voy a entrar en el tema porque no procede. Obviamente cuando decida realizar la cochera, si es que entra, es contratar a un arquitecto para modificar la fachada y poder o no abrir el hueco, pero eso es otro tema ahora mismo, ya que si no hay forma "normal" de sacar una cochera, todo lo que hablemos son palabras vacías.

Algunas personas me han comentado de modificar la entrada de la casa a mitad de la fachada, y donde está ahora mismo la entrada, usarlo para la cochera, pero para ello tengo que modificar la escalera, y ya no solo abrir un "agujero" en la fachada, sino que tengo que abrir dos, uno para la puerta principal y otro para la cochera, con los gastos extra que eso me pueda repercutir, pero por mas vueltas que le doy, no me aclaro. Por un lado, necesito cochera, por lo que he comentado, pero por otro lado, los muros de cargas como bien me comenta, imposibilitan mucho, y perdería salón, y bastante. A todo este tema llevo 2 - 3 meses dandole una y mil vueltas francamente.

Si yo fuera su cliente... ¿Me recomendaría buscar de la forma que sea la cochera o me recomendaría olvidarme de ella?

Muchas gracias.

Responder
¿Inapropiado? Reporta una incidencia
Alejandro Añon Espallargas Alcorisa
Alejandro Añon Espallargas Alcorisa
Alejandro Añon Espallargas Alcorisa respondió... Construcciones Y Carpinteria Hermanos Añon (Alcorisa, Teruel) Construcciones Y Carpinteria Hermanos Añon - hace 7 años

si el ayuntamiento te permite abrir ese acceso o puerta, tendras que contratar un arquitecto, ya que tienes que quitar parte de una pared de carga y se tiene que estudiar si se puede, posiblemente tal pared solo sea de cierre y el forjado este diseñado para soportar sin esa pared, pero eso solo lo puede decir un arquitecto,

por lo de quitar aparcamientos no creo que sea problema, en mi pueblo en una plaza que se aparcaban 32 coches y sin problemas de circulacion, en estos momentos solo se puede aparcar 7, existiendo menos vados que antes y con mas problemas y accidentes de circulacion, raro es el mes que no se dan 1 o 2 coches y antes de la remodelacion 1 o 2 al año

Responder
¿Inapropiado? Reporta una incidencia
Daniel Juarez respondió... Particular - hace 7 años

Muy buenas Jose Luis, gracias por tu respuesta.

A ver, sin entrar a desmerecer mi ayuntamiento como lo explico... Le importa tres pimientos todo, basicamente funciona así. En mi misma calle existen 7 vados, dos en mi acera y 5 en la de enfrente, por lo que hay margen de maniobra peses a ser calle estrecha, simplemente que en la acera de enfrente no se permite aparcar, es más, frente a mi puerta principial, hay una cochera con su vado correspondiente, entonces por el tema licencia y ayuntamiento no hay problema, porque como realmente yo creo que ni saben cuantos huecos se han "comido" los vados... y aun así, creo que podría alegar que existe un descampado en el que aparcar que es propiedad del ayuntamiento a pocos metros.

Más o menos explicado eso, vuelvo a mi duda inicial. Tengo entendido que por ley, la cochera debe tener 5m x 2.5m. Los 2.5m salen sin complicación... pero no se como darle a la habitación salita (es la que menos jode a los vecinos una vez concedida licencia) los metros que le falta sin que se note en exceso en el resto....

Un saludo

Responder
¿Inapropiado? Reporta una incidencia
José Luis Búrdalo Martínez
José Luis Búrdalo Martínez
José Luis Búrdalo Martínez replicó... compás y cartabón (Alcalá de Henares, Madrid) compás y cartabón - hace 7 años

Buenos días Daniel.

De nada...

Sobre su Ayuntamiento, al final... sobre las medidas necesarias, indica usted que "por ley" la cochera debe tener... volvemos a ordenanzas y normativas, sinceramente, si le da igual lo que diga el Ayuntamiento, no le debería importar las medidas de la cochera (no lo defiendo ni lo sacaría adelante de ser yo, por ejemplo, el técnico que le aconsejase o llevase su caso) pero la realidad es tozuda y si bien los 2,50 mts los tiene, la longitud la tiene francamente complicada va a perder gran parte del salón, sin contar que entre el salón y la salita y dormitorio, parece que tiene un muro de carga... no digo más ¿de verdad le merece la pena?.

En cuanto al Ayuntamiento, el desconocimiento de la Ley no exime de su cumplimiento y muchas veces... les da igual, parece que les da igual o se hacen los tontos... y solo hace falta un problema, una mecha, una denuncia, un cambio de equipos de gobierno o de normativas para empezar a inspeccionar y, ya puede usted o sus vecinos decir que si no sabían que si nadie del Ayuntamiento dijo nada... ellos no tienen que decir nada, es el particular, el ciudadano el que tiene que "conocer" la legislación y cumplirla.

Esta año 2018 me están llegando clientes con requerimientos municipales de Madrid, Alcalá de Henares, Torrejón de Ardoz, etc... como nunca me han llegado, con cerramientos de terrazas, aires acondicionados en fachadas, toldos, pérgolas, etc... y en la inmensa mayoría de las ocasiones, no hay forma de legalizar cosas que se hicieron mirando a otros que lo hacían igual o por lo típico que se suele escuchar de "es mi casa"...

En fin, usted mismo, por mi parte, hasta aquí puedo llegar y desde luego no voy a afirmar ni comprometer nada en un foro de público acceso que vaya en contra de legislación o normativa, sencillamente, en cualquier momento se podría volver en mi contra.

Un saludo.

¿Inapropiado? Reporta una incidencia
Deja tu respuesta

Para escribir una respuesta debes estar registrado. No está permitido incluir teléfonos de contacto, e-mails o enlaces a páginas web externas en este apartado, dicho contenido será moderado y eliminado.

Adjuntar fotografías
Pide presupuestos de reformas viviendas en tu zona

Escoge un tipo de trabajo

¿Eres un profesional? Consigue más clientes fácilmente
Registrarse como profesional