¿Me ayudáis con los LED?

Buenos días,

Tengo varias dudas eligiendo los focos led para el salón de mi casa, estoy reformándolo así que todavía no hay nada puesto.

Las dudas que tengo son:

Marca: la única marca que conozco es Phillips sin embargo esta marca tiene pocos "apliques" para viviendas. Por favor, alguien puede indicarme alguna marca fiable para leds, que tenga buen índice cromática, durabilidad, etc...

Con o sin trasformador: me han comentado que con trasformador el led se calienta menos y dura más. Aunque otras personas me indican que apenas se calientan y no es muy relevante instalar un transformador, además esto tendría un coste

Aplique retranquedo: en alguna tienda he visto apliques que hacen que el led quede unos centímetros metidos dentro del techo, de esta manera no dan luz directa en los ojos. Por ejemplo, algo de este tipo:

www.lamparayluz.es/foco-empotrable-dept-negro.html

www.lamparayluz.es/foco-empotrado-torno-fijo-blanco.html

¿Conocéis alguna marca o modelo que pueda quedar bien?

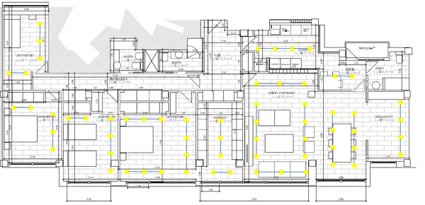
Distribución: más o menos ¿qué os parece la distribución que he realizado?¿En cuanto a la potencia de led qué recomendáis? Adicionalmente instalaré reguladores

Son muchas preguntas así que doy las gracias por adelantado o todo aquél que quiera colaborar.

Un saludo

Diego
Diego preguntó sobre
Reformas Viviendas
Actualizado Hace 10 años

¿Me ayudáis con los LED?

Buenos días,

Tengo varias dudas eligiendo los focos led para el salón de mi casa, estoy reformándolo así que todavía no hay nada puesto.

Las dudas que tengo son:

Marca: la única marca que conozco es Phillips sin embargo esta marca tiene pocos "apliques" para viviendas. Por favor, alguien puede indicarme alguna marca fiable para leds, que tenga buen índice cromática, durabilidad, etc...

Con o sin trasformador: me han comentado que con trasformador el led se calienta menos y dura más. Aunque otras personas me indican que apenas se calientan y no es muy relevante instalar un transformador, además esto tendría un coste

Aplique retranquedo: en alguna tienda he visto apliques que hacen que el led quede unos centímetros metidos dentro del techo, de esta manera no dan luz directa en los ojos. Por ejemplo, algo de este tipo:

www.lamparayluz.es/foco-empotrable-dept-negro.html

www.lamparayluz.es/foco-empotrado-torno-fijo-blanco.html

¿Conocéis alguna marca o modelo que pueda quedar bien?

Distribución: más o menos ¿qué os parece la distribución que he realizado?¿En cuanto a la potencia de led qué recomendáis? Adicionalmente instalaré reguladores

Son muchas preguntas así que doy las gracias por adelantado o todo aquél que quiera colaborar.

Un saludo

¿Tienes alguna pregunta?
Pregunta a la comunidad

5 Respuestas

Respuestas útiles 1
Edificalia Viviendas SA
Edificalia Viviendas SA
Edificalia Viviendas SA respondió... Edificalia Viviendas S.A. (Pozuelo de Alarcón, Madrid) Edificalia Viviendas S.A. - hace 10 años

Hola Diego.

Te adjunto nuestra experiencia por si te sirve:

Habitualmente utilizamos bombilla 5w/3000º, algunos clientes nos piden neutra de 4500º, pero nunca fría (6000º)

En dormitorios colocamos hileras a 45-50cm de la pared. Las ponemos más próximas en cabeceros de cama o pared de sofás, o para iluminar más específicamente una pared

Para instalar reguladores asesórate bien antes, no todas las bombillas led son compatibles con los REGULADORES convencionales, pues éstos exigen un consumo mínimo de arranque (por ejemplo 50w) y como generalmente no se cumple, los led parpadean pero no regulan. Existen reguladores específicos para LED.

Por otro lado, algunos reguladores específicos para LED no tienen la función de conmutación, por lo que no podrás conmutar su encendido con otro punto.

En cuanto a tu croquis de instalación, aparentemente está bien. Quizás en el dormitorio principal es un poco excesivo. Yo quitaría 2...

Sin ánimo de rebatir otras opiniones que puedan darte...

Responder
¿Inapropiado? Reporta una incidencia
Cristian
Cristian
Cristian respondió... Electricidad (Fuenlabrada, Madrid) Electricidad - hace 10 años

La marca secom tiene muy buenas bombillas calidad precio muy bien

Responder
¿Inapropiado? Reporta una incidencia
Diego respondió... Particular - hace 10 años

Muchas gracias por los comentarios.

He realizado una prueba colocando los led a 50cm de la pared pero no me ha gustado mucho; voy a probar colocandolos a 20cm. Me gusta el efecto de bañar la pared e iluminar indirectamente la estancia

Responder
¿Inapropiado? Reporta una incidencia
Chema Aluenda de Castiello
Chema Aluenda de Castiello
Chema Aluenda de Castiello respondió... Aluenda Castiello (Jaca, Huesca) Aluenda Castiello - hace 10 años

Estoy totalmente de acuerdo con el compañero anterior no lo ha podido explicar mejor.

Responder
¿Inapropiado? Reporta una incidencia
Diego respondió... Particular - hace 10 años

Actualización: Adjunto dos fotos de la primera instalación que he realizado de prueba. Los leds son de 5W, 3000k y 90º de apertura. La distancia a la pared es de 50cm pero voy a modificarla a 20cm de forma que bañen la pared.

2 fotos
Responder
¿Inapropiado? Reporta una incidencia
Deja tu respuesta

Para escribir una respuesta debes estar registrado. No está permitido incluir teléfonos de contacto, e-mails o enlaces a páginas web externas en este apartado, dicho contenido será moderado y eliminado.

Adjuntar fotografías
Pide presupuestos de reformas viviendas en tu zona

Escoge un tipo de trabajo

¿Eres un profesional? Consigue más clientes fácilmente
Registrarse como profesional