¿Cuál sería el precio para habilitar una buhardilla de 30m2?

Sería hacer los siguientes trabajos:

- Tirar dos pequeños tabiques de 4,5 de largo x 1,5m de alto)

- Cambiar una ventana por puerta para acceder a la terraza (hay que subir la vigueta)

- Injerto en bajante para instalación de desagüe de lavadora (está accesible y cerca)

- Sacar toma de agua para lavadora (está accesible y cerca)

- Aislar cubierta con lana de roca (o poliuretano proyectado) y pladur (unos 30m2 en panel sandwich)

- Instalación de suelo radiante (la punta de calefacción está a mano)

- Instalación de suelo porcelánico (el suelo lo pondría yo)

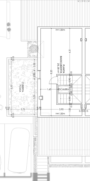
- Las paredes, espuma proyectada o lana de roca y pladur (siempre que se pueda poner el desagüe y toma de agua para lavadora en pladur). Adjunto plano.

Víctor
Víctor preguntó sobre
Reformas Viviendas
Actualizado Hace 4 años

¿Cuál sería el precio para habilitar una buhardilla de 30m2?

Sería hacer los siguientes trabajos:

- Tirar dos pequeños tabiques de 4,5 de largo x 1,5m de alto)

- Cambiar una ventana por puerta para acceder a la terraza (hay que subir la vigueta)

- Injerto en bajante para instalación de desagüe de lavadora (está accesible y cerca)

- Sacar toma de agua para lavadora (está accesible y cerca)

- Aislar cubierta con lana de roca (o poliuretano proyectado) y pladur (unos 30m2 en panel sandwich)

- Instalación de suelo radiante (la punta de calefacción está a mano)

- Instalación de suelo porcelánico (el suelo lo pondría yo)

- Las paredes, espuma proyectada o lana de roca y pladur (siempre que se pueda poner el desagüe y toma de agua para lavadora en pladur). Adjunto plano.

¿Tienes alguna pregunta?
Pregunta a la comunidad

7 Respuestas

Víctor respondió... Particular - hace 4 años

Gracias a todos.

Responder
¿Inapropiado? Reporta una incidencia
Víctor respondió... Particular - hace 4 años

Nadie me puede orientar?

Responder
¿Inapropiado? Reporta una incidencia
José Luis Búrdalo Martínez
José Luis Búrdalo Martínez
José Luis Búrdalo Martínez respondió... compás y cartabón (Alcalá de Henares, Madrid) compás y cartabón - hace 4 años

Buenos días Víctor.

En primera lugar, deberá legalizar normativamente el uso del espacio si en catastro no costa dicha planta como vividera, aunque al disponer de escalera y ventana, imagino que sí... por otro lado, la cubierta no es una terraza, teóricamente no puede cambiar ese uso lo que implica que no puede hacer una puerta para acceder y disfrutar de una superficie de terraza que no es, mientras el uso bajo cubierta supongo en catastro estará correcto, ducho mucho que la cubierta tenga designación TZA.

En cuanto al presupuesto, es mejor que contacte con algún profesional de su ciudad o provincia pues hay que ver el estado de paredes y techos para los aislamientos, por ejemplo, ver la distancia real a las puntas de instalaciones, importante, si la caldera tiene capacidad para la superficie de solado del bajo cubierta además del resto de la vivienda, altura del hueco a elevar, dimensiones de la puerta, etc.

Más que nada, en el plano lo que consta es altura 1,50 m, que es lo mínimo establecido para superficie habitable de un bajo cubierta pero no se indica altura máxima (supongo cubierta a dos aguas), al final esa superficie inclinada son muchos metros de aislamiento en techo y los trapecios que se generan en paramentos verticales, también serán de altura media mayor de 1,50 m.

Gracias. Un saludo.

Responder
¿Inapropiado? Reporta una incidencia
Víctor replicó... Particular - hace 4 años

Gracias José Luis. La buardilla es habitable y está incluida en el catastro. Lo único es que está sin terminar.

¿Inapropiado? Reporta una incidencia
Víctor replicó... Particular - hace 4 años

Por cierto, me gustaría aclarar un par de cosas, ya que creo que se ha malinterpretado. La casa es mía, se trata de un chalet unifamiliar y la buardilla está incluida en el catastro. La terraza exterior también está incluida y es todo llegado

¿Inapropiado? Reporta una incidencia
Víctor respondió... Particular - hace 4 años

No necesito un presupuesto, con una aproximación es suficiente, muchas gracias.

Responder
¿Inapropiado? Reporta una incidencia
Víctor replicó... Particular - hace 4 años

Todo legal quería decir

¿Inapropiado? Reporta una incidencia
Deja tu respuesta

Para escribir una respuesta debes estar registrado. No está permitido incluir teléfonos de contacto, e-mails o enlaces a páginas web externas en este apartado, dicho contenido será moderado y eliminado.

Adjuntar fotografías
Pide presupuestos de reformas viviendas en tu zona

Escoge un tipo de trabajo

¿Eres un profesional? Consigue más clientes fácilmente
Registrarse como profesional