Hacer un tercer dormitorio en vivienda de 2 dormitorios

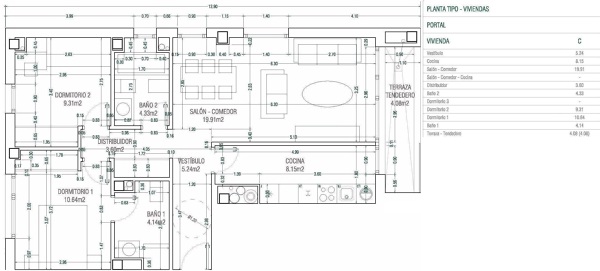
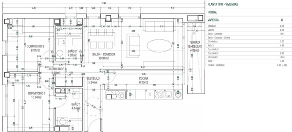
Actualmente tenemos una vivienda de 2 dormitorios y 2 baños. Nos gustaría saber si de esta vivienda podríamos hacer un tercer dormitorio. Sabemos que esta reforma conllevaría perder un wc. No sabemos si la mejor opción es hacer el 3º dormitorio en el baño 2 y llevarlo hasta la columna del salón donde aparece pintada la mesa (el problema de este baño es que tiene falso techo por las máquinas del aire acondicionado) o unir el baño 1 al dormitorio 1 pero con esta opción no vemos posibilidad de sacar un dormitorio más.

Julio
Julio preguntó sobre
Reformas Viviendas
Actualizado Hace 11 meses

Hacer un tercer dormitorio en vivienda de 2 dormitorios

Actualmente tenemos una vivienda de 2 dormitorios y 2 baños. Nos gustaría saber si de esta vivienda podríamos hacer un tercer dormitorio. Sabemos que esta reforma conllevaría perder un wc. No sabemos si la mejor opción es hacer el 3º dormitorio en el baño 2 y llevarlo hasta la columna del salón donde aparece pintada la mesa (el problema de este baño es que tiene falso techo por las máquinas del aire acondicionado) o unir el baño 1 al dormitorio 1 pero con esta opción no vemos posibilidad de sacar un dormitorio más.

¿Tienes alguna pregunta?
Pregunta a la comunidad

5 Respuestas

José Luis Búrdalo Martínez
José Luis Búrdalo Martínez
José Luis Búrdalo Martínez respondió... compás y cartabón (Alcalá de Henares, Madrid) compás y cartabón - hace 11 meses

...al menos, con unos planos con un par de propuestas dibujadas y escaladas, saldrá usted de dudas y lo verá sobre el papel, de manera gráfica, con opciones de poder desarrollarlo si el presupuesto de obra le cuadra, creo que es peor quedarse con la duda si se podrá hacer o no o encontrarse con la casa a medio demoler y que resulte que no cabe... sí, tendrá que pagar al técnico pero tendrá esa garantía de conocer el resultado antes en papel, es más, si alguna de las opciones le cuadra y el presupuesto de obra le cuadra, ese técnico que ha hecho los planos podrá llevarle la dirección y seguimiento de obra.

Si se trata de Comunidad de Madrid o Guadalajara, puedo estudiar su caso.

Saludos.

Responder
¿Inapropiado? Reporta una incidencia
Julio replicó... Particular - hace 11 meses

Buenos días José Luis, estaría interesado en ver posibles opciones. Cómo podría contactar con usted?

¿Inapropiado? Reporta una incidencia
José Luis Búrdalo Martínez
José Luis Búrdalo Martínez
José Luis Búrdalo Martínez replicó... compás y cartabón (Alcalá de Henares, Madrid) compás y cartabón - hace 11 meses

Buenos días.

Si busca en redes sociales mi marca, encontrará correo... no podemos dejar aquí medios de contacto.

Saludos.

¿Inapropiado? Reporta una incidencia
Luis Zamarra Vallas
Luis Zamarra Vallas
Luis Zamarra Vallas respondió... Regaliz Arquitectos (Castejón, Cuenca) Regaliz Arquitectos - hace 11 meses

La primera opción podría ser viable, pero pierde usted espacio en el salón y el falso techo debería conservarse si por ahí van tubos de aire, con lo que tiene una habitación más baja. La segunda opción no es viable, le falta a usted una ventana para eso. En cualquier caso, contrate a un técnico como bien le han dicho.

Responder
¿Inapropiado? Reporta una incidencia
José Luis Búrdalo Martínez
José Luis Búrdalo Martínez
José Luis Búrdalo Martínez respondió... compás y cartabón (Alcalá de Henares, Madrid) compás y cartabón - hace 11 meses

Buenos días.

Casos así son complejos, aunque se pueden tratar de resolver... me explico, es muy sencillo pensar "muevo esto aquí y eso allá" y parece que las cosas caben, incluso se plantan allí empresas y albañiles que empiezan a mover las manos aquí y allá y parece que las cosas caben, pero también he visto demasiadas veces viviendas con obras empezadas en las que nada encajaba y todos esos movimientos de brazos y aspavientos, no cuadraban...

Le diría que contratase un técnico que haga unos planos, dos o tres propuestas para que puede ver sobre el papel si las cosas caben y si quedan unos espacios y uso razonables pues, evidentemente, opciones hay pasando por perder un baño... o incluso manteniéndolo de menor tamaño, pero al final, lo mejor es que tener esos planos puesto que va a suponer una obra de cierta entidad y que menos que tenerlo lo suficientemente claro.

Saludos.

Responder
¿Inapropiado? Reporta una incidencia
Deja tu respuesta

Para escribir una respuesta debes estar registrado. No está permitido incluir teléfonos de contacto, e-mails o enlaces a páginas web externas en este apartado, dicho contenido será moderado y eliminado.

Adjuntar fotografías
Pide presupuestos de reformas viviendas en tu zona

Escoge un tipo de trabajo

¿Eres un profesional? Consigue más clientes fácilmente
Registrarse como profesional