¿Qué opinan sobre la iluminación de esta nueva vivienda?

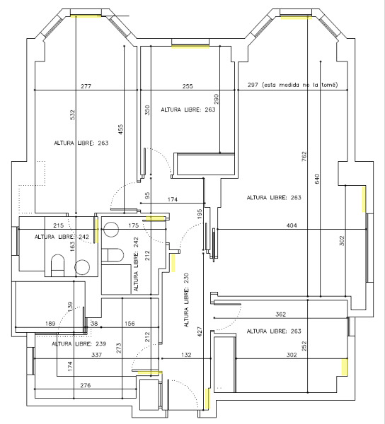
Recientemente hemos adquirido una vivienda que tiene un alumbrado con leds empotrados de baja calidad y mal dimensionada en todas las estancias. A priori esta solución no me parece mal para cocina y baños sustituyendo lo existente por leds semejantes a los existentes pero de mayor calidad.

En salón, pasillo y habitación principal he pensado instalar aros empotrados orientables con posibilidad de regulación.

Agradecería enormemente que un experto me asesorara a la hora de modificar esta iluminación.

José Granero Nueda
José Granero Nueda preguntó sobre
Electricistas
Actualizado Hace 5 años

¿Qué opinan sobre la iluminación de esta nueva vivienda?

Recientemente hemos adquirido una vivienda que tiene un alumbrado con leds empotrados de baja calidad y mal dimensionada en todas las estancias. A priori esta solución no me parece mal para cocina y baños sustituyendo lo existente por leds semejantes a los existentes pero de mayor calidad.

En salón, pasillo y habitación principal he pensado instalar aros empotrados orientables con posibilidad de regulación.

Agradecería enormemente que un experto me asesorara a la hora de modificar esta iluminación.

13 fotos
¿Tienes alguna pregunta?
Pregunta a la comunidad

4 Respuestas

Respuestas útiles 1
Juan Jose
Juan Jose
Juan Jose respondió... Reformas Energéticas (Madrid, Madrid) Reformas Energéticas - hace 5 años

Estimado José, referente a su consulta y con las imágenes enviadas, indicarle que es la iluminación habitual que se suele pedir para las reformas, con una relación calidad precio ajustada. La calidad o expectativa a cumplir siempre depende del cliente o el usuario final, que es quien termina decidiendo en este caso que lampara o luminaria se ha de montar y si se lo puede permitir.

Actualmente en el mercado podemos encontrar multitud de fabricantes con diferentes precios y calidades a tener en cuenta en cada proyecto de iluminación. Fundamental para una vivienda temperatura de color 4000ºK, 0 flicker (parpadeo alta frecuencia) y diferentes encendidos o regulación de intensidad de luz. La diferencia de precio por punto entre una lámpara económica y otra de una calidad óptima puede rondar los 15€, precio que poca gente está dispuesta a pagar para una vivienda.

Responder
¿Inapropiado? Reporta una incidencia
Instalaciones Hersan
Instalaciones Hersan
Instalaciones Hersan respondió... Instalaciones hersan (Ugao-Miraballes, Vizcaya) Instalaciones hersan - hace 5 años

Llama a un profesional y que te valore in-situ en la instalación el proyecto de iluminación adecuado a la vivienda.

Responder
¿Inapropiado? Reporta una incidencia
José Granero Nueda replicó... Particular - hace 5 años

Exactamente, eso es lo que quiero. He pedido precio dentro de la reforma general de la vivienda, pero se limitan a cambiar las luminarias por otras y no es para nada lo que quiero. Yo hace muchos años que no utilizo Dialux ;).

¿Inapropiado? Reporta una incidencia
Wilson
Wilson
Wilson respondió... Wilson (Majadahonda, Madrid) Wilson - hace 5 años

Primero se debe visualizar personalmente para calcular presupuesto y a la misma para debatir que tipo de lámparas LED decea instalar, el trabajo resulta fácil pero lo difícil es poder instalar el modelo de lámparas y aros que sea con forme a sus gustos por lo que se debe compartir personalmente la inspección de trabajo.

Responder
¿Inapropiado? Reporta una incidencia
Deja tu respuesta

Para escribir una respuesta debes estar registrado. No está permitido incluir teléfonos de contacto, e-mails o enlaces a páginas web externas en este apartado, dicho contenido será moderado y eliminado.

Adjuntar fotografías
Pide presupuestos de electricistas en tu zona

Escoge un tipo de trabajo

¿Eres un profesional? Consigue más clientes fácilmente
Registrarse como profesional