¿Cómo crear un pequeño recibidor recogido?

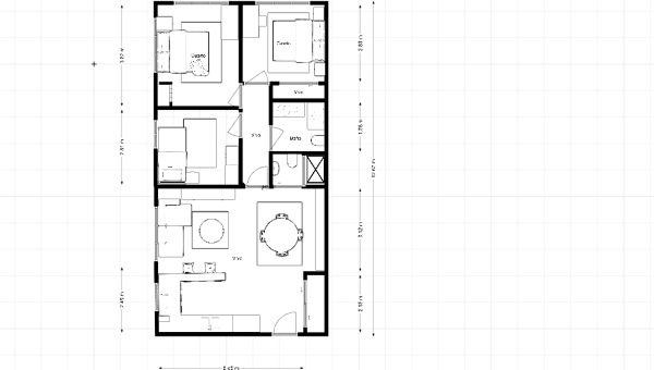
La cocina y el salón en la actualidad están separados por una pared. quiero tirarla y unirlos ero me encuentro con que la entrada es directa a la estancia y pierdo el espacio del recibidor. ¿cómo disponer la cocina y cómo no perder el recibidor? La foto muestra cómo quedaría el plano al tirar el muro separados?

Dulce
Dulce preguntó sobre
Reformas Viviendas
Actualizado Hace 5 años

¿Cómo crear un pequeño recibidor recogido?

La cocina y el salón en la actualidad están separados por una pared. quiero tirarla y unirlos ero me encuentro con que la entrada es directa a la estancia y pierdo el espacio del recibidor. ¿cómo disponer la cocina y cómo no perder el recibidor? La foto muestra cómo quedaría el plano al tirar el muro separados?

¿Tienes alguna pregunta?
Pregunta a la comunidad

3 Respuestas

Alejandro Morales
Alejandro Morales
Alejandro Morales respondió... Estudio Sta Mónica L´eliana Diseño Interior (L'Eliana, Valencia) Estudio Sta Mónica L´eliana Diseño Interior - hace 5 años

Buenas tardes.

Coincido con José Luis en la solución. Adjunto una foto de la celosía y mueble auxiliar diseñado a medida, de uno de mis últimos trabajos.

Responder
¿Inapropiado? Reporta una incidencia
José Luis Búrdalo Martínez
José Luis Búrdalo Martínez
José Luis Búrdalo Martínez replicó... compás y cartabón (Alcalá de Henares, Madrid) compás y cartabón - hace 5 años

Oh, enhorabuena, queda genial.

Un saludo.

¿Inapropiado? Reporta una incidencia
José Luis Búrdalo Martínez
José Luis Búrdalo Martínez
José Luis Búrdalo Martínez respondió... compás y cartabón (Alcalá de Henares, Madrid) compás y cartabón - hace 5 años

Buenos días.

Desconozco como está actualmente la vivienda pero si lo que quiere es generar un pequeño vestíbulo y conservar la sensación de espacio abierto, lo único que se me ocurre es colocar un tabique o mampara que cierre un poco es espacio de entrada a la vivienda, algo similar a lo que le adjunto sobre su propio dibujo... el siguiente paso sería cerrar ese vestíbulo con su correspondiente puerta respecto del salón o cocina.

Gracias. Un saludo.

Responder
¿Inapropiado? Reporta una incidencia
Deja tu respuesta

Para escribir una respuesta debes estar registrado. No está permitido incluir teléfonos de contacto, e-mails o enlaces a páginas web externas en este apartado, dicho contenido será moderado y eliminado.

Adjuntar fotografías
Pide presupuestos de reformas viviendas en tu zona

Escoge un tipo de trabajo

¿Eres un profesional? Consigue más clientes fácilmente
Registrarse como profesional