¿Cómo debo iluminar mi cocina?

Buenas noches, estoy de reforma y no tengo claro cuántas luces poner ni en qué posición en la cocina. Creo que me decanto por unos empotrables led que he visto cuadrados de 22 cm. No se si con dos sería suficiente para la cocina o no. También podría combinarlos con alguna luz led pequeña (tamaño halógeno) pero no lo tengo muy claro.

¿Podríais aconsejarme en este tema por favor? No quisiera que quedara algún rincón sin luz, o poner demasiada. Por cierto, ahora mismo la instalación eléctrica está preparada para poner doble llave, para encender dos zonas de luz.

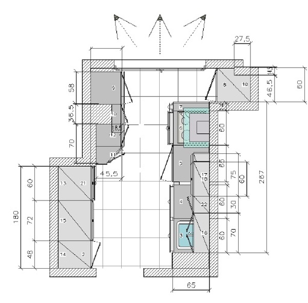
Adjunto un plano de las medidas de la cocina.

Muchas gracias por todo!!

Jose
Jose preguntó sobre
Electricistas
Actualizado Hace 9 años

¿Cómo debo iluminar mi cocina?

Buenas noches, estoy de reforma y no tengo claro cuántas luces poner ni en qué posición en la cocina. Creo que me decanto por unos empotrables led que he visto cuadrados de 22 cm. No se si con dos sería suficiente para la cocina o no. También podría combinarlos con alguna luz led pequeña (tamaño halógeno) pero no lo tengo muy claro.

¿Podríais aconsejarme en este tema por favor? No quisiera que quedara algún rincón sin luz, o poner demasiada. Por cierto, ahora mismo la instalación eléctrica está preparada para poner doble llave, para encender dos zonas de luz.

Adjunto un plano de las medidas de la cocina.

Muchas gracias por todo!!

¿Tienes alguna pregunta?
Pregunta a la comunidad

14 Respuestas

Respuestas útiles 3
José Luis Búrdalo Martínez
José Luis Búrdalo Martínez
José Luis Búrdalo Martínez respondió... compás y cartabón (Alcalá de Henares, Madrid) compás y cartabón - hace 9 años

Buenos días Jose.

Dos o tres puntos de luz led pueden ser "suficientes", pero entre suficientes y tener suficiente luz, hay una gran diferencia. Si algo he aprendido con los años es que en determinados espacios (cocina por ejemplo) nunca sobre luz ni enchufes y es además, un sitio del que nos gusta presumir en las casas...

Tal vez, por la proximidad de la ventana, el punto que dibujo en la parte superior del dibujo sea el menos necesario y se podría centrar el que está debajo, pero también pienso en el uso de la cocina de noche y que el rincón-entrante de la derecha tenga iluminación suficiente, pese a que los muebles bajos de la zona de la columna permitieran paso de luz.

Gracias. Un saludo.

Responder
¿Inapropiado? Reporta una incidencia
Jose replicó... Particular - hace 9 años

Muchas gracias Jose Luis, bien explicado y con el dibujo. Muchas gracias!!

¿Inapropiado? Reporta una incidencia
José Luis Búrdalo Martínez
José Luis Búrdalo Martínez
José Luis Búrdalo Martínez replicó... compás y cartabón (Alcalá de Henares, Madrid) compás y cartabón - hace 9 años

Gracias a usted Jose.

Un saludo.

¿Inapropiado? Reporta una incidencia
Ana
Ana
Ana respondió... Alem Arquitectura (Madrid, Madrid) Alem Arquitectura - hace 9 años

Buenos días Jose,

En la cocina es muy importante una buena iluminación de los planos de trabajo. Cuando veamos su distribución le podremos dar alguna idea más concreta pero, por norma general, lo más recomendable es iluminar con líneas centradas con las encimeras (o bien lineas de Led empotradas, o bien varias unidades de downlights alineadas). Si tiene armarios altos, tendrá que salvarlos pero, ya que está haciendo reforma, huya de la iluminación en el centro de la estancia que lo único que consigue es dar sombra cuando trabajamos en los mesados.

Un saludo

Responder
¿Inapropiado? Reporta una incidencia
LUIS OLMO MOLINA
LUIS OLMO MOLINA
LUIS OLMO MOLINA replicó... Luis olmo molina (Móstoles, Madrid) Luis olmo molina - hace 9 años

Una distribución lineal sería lo más coherente siempre que la cocina vaya distribuida alrededor de la estancia, si la cocina es central, se haría alrededor de la campana, centrando las luminarias para alumbrar correctamente la estancia

¿Inapropiado? Reporta una incidencia
José Luis Búrdalo Martínez
José Luis Búrdalo Martínez
José Luis Búrdalo Martínez respondió... compás y cartabón (Alcalá de Henares, Madrid) compás y cartabón - hace 9 años

Buenos días Jose.

No se ha adjuntado el plano... si hace el favor de volver a intentarlo.

Gracias. Un saludo.

Responder
¿Inapropiado? Reporta una incidencia
José Francisco Gómez Garcia
José Francisco Gómez Garcia
José Francisco Gómez Garcia replicó... Electricidad Josan (Leganés, Madrid) Electricidad Josan - hace 9 años

Con tres down líne de los que me has dicho es más que suficiente

¿Inapropiado? Reporta una incidencia
Juan Ignacio Gómez
Juan Ignacio Gómez
Juan Ignacio Gómez respondió... Más Que Electricidad (Madrid, Madrid) Más Que Electricidad - hace 9 años

Hola Jose, necesitaría ver una foto o un plano de la cocina para calcular las medidas y las esquinas que tenga, dónde está la ventana para tener en cuenta la luz de día y la luz de la noche... En principio los led de 22cm cuadrados, a mí me gustan mucho, los veo más modernos y bonitos que los redondos. Por favor adjúnteme plano y foto. Un saludo.

Responder
¿Inapropiado? Reporta una incidencia
Jose replicó... Particular - hace 9 años

Gracias por la respuesta Juan Ignacio. El plano de la cocina esta adjuntado con puerta, ventana, medidas y muebles.

Gracias!

¿Inapropiado? Reporta una incidencia
Jose respondió... Particular - hace 9 años

Muchas gracias por las respuestas!

Responder
¿Inapropiado? Reporta una incidencia
Liberto
Liberto
Liberto respondió... Céspedes Electricidad (Madrid, Madrid) Céspedes Electricidad - hace 9 años

Buenas tardes Jose

En mi opinión, con dos paneles LED 18w 4000k tienes de sobra, tienes un espacio de 165 cm el cual te ilumina perfectamente y el otro espacio es de 180 cm que también te cubre luminicamente.

Un saludo

Responder
¿Inapropiado? Reporta una incidencia
Jose respondió... Particular - hace 9 años

A la derecha (muebles bajos y altos) voy a poner luz debajo de los muebles altos para iluminar la encimera. La duda son las luces del techo

Muchas gracias

Responder
¿Inapropiado? Reporta una incidencia
Mihai Cudalb
Mihai Cudalb
Mihai Cudalb replicó... Energias Renovables, Montajes De Paneles Fotovoltaicas,mantenimiento Electricidad (Bonico Parra, Madrid) Energias Renovables, Montajes De Paneles Fotovoltaicas,mantenimiento Electricidad - hace 9 años

Hola José. Yo creo como es muy importante saber el superficie de la cocina para poder calcular el flujo mínimo necesario teniendo en la cuenta los coeficientes de reflexión del techo y paredes etc. Después,claro es muy importante saber elegir el tipo de luminarias teniendo en cuenta la distribución de muebles zonas importantes para iluminar etc.

Un saludo.

Mihai

¿Inapropiado? Reporta una incidencia
Jose respondió... Particular - hace 9 años

Gracias por contestar! Adjunto plano con los muebles, al lado izquierdo van muebles columna hasta techo y frigo, a la derecha muebles bajos y muebles altos. El trozo de muebles que rodea la columna son solo bajos.

Os agradezco información al respecto. Me comentan que en principio con 2 downlight led en linea en el centro sería suficiente, pero no estoy seguro.

Muchas gracias a todos!

Responder
¿Inapropiado? Reporta una incidencia
Deja tu respuesta

Para escribir una respuesta debes estar registrado. No está permitido incluir teléfonos de contacto, e-mails o enlaces a páginas web externas en este apartado, dicho contenido será moderado y eliminado.

Adjuntar fotografías
Pide presupuestos de electricistas en tu zona

Escoge un tipo de trabajo

¿Eres un profesional? Consigue más clientes fácilmente
Registrarse como profesional