Patricia
¿Cómo puedo mejorar un piso con una distribución peculiar?

Buenos días, acabo de comprar un piso con una distribución peculiar. En plano es un rectángulo estrecho, con un largo pasillo que recorre el piso. Una vez que se accede a la vivienda, justo a la derecha del recibidor hay dos dormitorios y a la izquierda, a lo largo del pasillo, se distribuyen otros dos dormitorios, baño, cocina y salón.

Lo que me preocupa es que el recibidor del piso da directamente a todos los dormitorios, teniendo que recorrer un pasillo de 8 metros hasta llegar a la cocina y al salón.

¿Qué podría hacer? ¿No es muy bonito que el acceso a la vivienda no dé al salón o la cocina?¿He pensado usar el dormitorio que está justo frente al recibidor para hacer una sala de estar/despacho? ¿cómo lo veis?

Muchas gracias y un saludo.

Patricia
Patricia preguntó sobre
Decoradores
Actualizado Hace 9 años

¿Cómo puedo mejorar un piso con una distribución peculiar?

Buenos días, acabo de comprar un piso con una distribución peculiar. En plano es un rectángulo estrecho, con un largo pasillo que recorre el piso. Una vez que se accede a la vivienda, justo a la derecha del recibidor hay dos dormitorios y a la izquierda, a lo largo del pasillo, se distribuyen otros dos dormitorios, baño, cocina y salón.

Lo que me preocupa es que el recibidor del piso da directamente a todos los dormitorios, teniendo que recorrer un pasillo de 8 metros hasta llegar a la cocina y al salón.

¿Qué podría hacer? ¿No es muy bonito que el acceso a la vivienda no dé al salón o la cocina?¿He pensado usar el dormitorio que está justo frente al recibidor para hacer una sala de estar/despacho? ¿cómo lo veis?

Muchas gracias y un saludo.

¿Tienes alguna pregunta?
Pregunta a la comunidad

8 Respuestas

Respuestas útiles 6
José Luis Búrdalo Martínez
José Luis Búrdalo Martínez
José Luis Búrdalo Martínez respondió... compás y cartabón (Alcalá de Henares, Madrid) compás y cartabón - hace 9 años

... de cualquier modo, en viviendas estrechas y alargadas, por suerte o desgracia, la mejor forma de programarlas y aprovecharlas es mediante pasillo que vaya dando acceso a los espacios.

Evidentemente, el cambio de uso de algunos de esos espacio es lo que puede suponer un cambio en la vivienda, pero piense que siempre es conveniente agrupar las zonas y distribuir, zona de noche, zona de día...

Un saludo.

Responder
¿Inapropiado? Reporta una incidencia
Oscar Almiñana López
Oscar Almiñana López
Oscar Almiñana López respondió... óscar Almiñana (Getafe, Madrid) óscar Almiñana - hace 9 años

Buenas Patricia,

La vivienda tiene muchas posibilidades. Así de primera se me ocurre variar la entrada de las 2 habitaciones que hay justo a la entrada variando su distribución... pero sería bueno conocer tu forma de vida y tus necesidades para aproximar un proyecto lo más posible a tu realidad diaria y tus gustos. Me gusta trabajar en contacto directo con los clientes y algunas de las ideas que se me ocurren igual no coincidirían con tu realidad.

Si necesitas ayuda no dudes en contactarme. Busca mi blog y te echo una mano.

Óscar Almiñana López

Decorador interiorista

Responder
¿Inapropiado? Reporta una incidencia
Jorge Nuño
Jorge Nuño
Jorge Nuño respondió... Nuño Arquitectura (Almoradi, Alicante) Nuño Arquitectura - hace 9 años

Buenos días Patricia,

En tu caso, podría realizarse una reforma integral y mover los espacios.

Como comentas, puedes realizar un estudio en el acceso. Te dejo un enlace de una vivienda, con mucho pasillo, en la que proyectamos un estudio en el acceso con una puerta corredera, la cual permitiera abrir o cerrar el espacio según las necesidades, a la vez que dotábamos de amplitud y luz al acceso.

Por otro lado, podrías cambiar la puerta del salón, por un panel corredero hasta el techo, que permitiera una amplia comunicación del pasillo con el salón, entre algunos ajustes que se pueden realizar, según tus necesidades.

proyectos.habitissimo.es/proyecto/reforma-integral-de-un-piso

Un saludo

Responder
¿Inapropiado? Reporta una incidencia
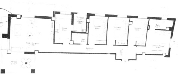
Patricia respondió... Particular - hace 9 años

Adjunto plano por si puede facilitar la respuesta.

Gracias.

Responder
¿Inapropiado? Reporta una incidencia
José Luis Búrdalo Martínez
José Luis Búrdalo Martínez
José Luis Búrdalo Martínez replicó... compás y cartabón (Alcalá de Henares, Madrid) compás y cartabón - hace 9 años

Gracias Patricia. Ahora estoy de visita de obra... esta tarde le echo un vistazo.

Un saludo.

¿Inapropiado? Reporta una incidencia
Andoni Bollada
Andoni Bollada
Andoni Bollada replicó... Andoni Bollada (Barakaldo, Vizcaya) Andoni Bollada - hace 9 años

Existen un monton de posibles ideas, todas en funcion de tus necesidades y de tu capacidad economica. Desde mi punto de vista en el area de acceso debe encontrarse la zona mas publica de la casa Sala y cocina, y en la parte mas alejada los dormitorios, eso no siempre es posible pero si es interesante intentar acercarse a ese criterio. Si vas a instalar un despacho y ese despacho es publico debera estar cerca de la entrada .

¿Inapropiado? Reporta una incidencia
José Luis Búrdalo Martínez
José Luis Búrdalo Martínez
José Luis Búrdalo Martínez replicó... compás y cartabón (Alcalá de Henares, Madrid) compás y cartabón - hace 9 años

Buenas tardes Patricia.

Pues habría que darle alguna vuelta pero creo que poco se podría ganar o mejorar. La posición de bajantes, y ventilaciones condiciona mucho... tenga en cuenta que alrededor de las bajantes, en un radio máximo de 100 cms, hay que situar los inodoros para evitar futuros problemas y atascos, por lo que la posición actual de cocina y baños es casi inamovible, además, el tendedero también fuerza la posición lógica de la cocina.

Como posible cambio lo que se me ocurre es que la zona de salón pase a ser dormitorios (al menos el principal con salida a la terraza) y otro que se quede con la ventana... según se entra a la izquierda, poder colocar ahí salón pero quedan dormitorios (al menos uno) en medio o, que sea la opción de despacho que usted comenta.

No obstante ¿que necesidades reales tienen usted?, ¿cuantos dormitorios precisa (sin contar el despacho)?. Ya puestos, como le decía en las primeras respuestas, si se trata de Madrid o alrededores, puedo tratar de planificarles y distribuirles la vivienda con toma de datos in situ.

Le adjunto dos imágenes de una reforma en Madrid dónde el pasillo es la pieza fundamental de distribución de la vivienda, también es largo y como ve, a un lado y otro hay un buen número de puertas (las fotos están hechas más o menos en el centro del pasillo).

Gracias. Un saludo.

2 fotos
¿Inapropiado? Reporta una incidencia
José Luis Búrdalo Martínez
José Luis Búrdalo Martínez
José Luis Búrdalo Martínez respondió... compás y cartabón (Alcalá de Henares, Madrid) compás y cartabón - hace 9 años

Buenos días Patricia.

Si tiene el plano y lo puede subir para que lo veamos, será más fácil poder echarle una mano.

Además, si la viviemda está en la Comunidad de Madrid o Guadalajara, podemos ver la vivienda in situ si usted lo desea.

empresas.habitissimo.es/pro/compas-y-cartabon/modificar

Gracias. Un saludo.

Responder
¿Inapropiado? Reporta una incidencia
Deja tu respuesta

Para escribir una respuesta debes estar registrado. No está permitido incluir teléfonos de contacto, e-mails o enlaces a páginas web externas en este apartado, dicho contenido será moderado y eliminado.

Adjuntar fotografías
Pide presupuestos de decoradores en tu zona

Escoge un tipo de trabajo

¿Eres un profesional? Consigue más clientes fácilmente
Registrarse como profesional