¿Podría sacar 1 habitación adicional?

Buenas tardes,

Soy nuevo en esto, por lo que seré breve.

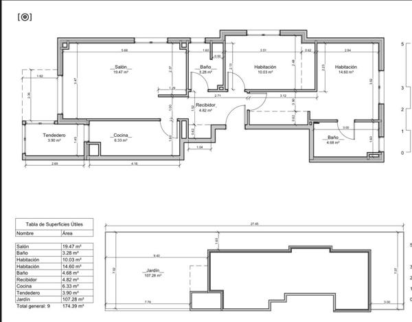
Estamos planteándonos sacar una habitación adicional a este piso bajo con jardín, en total serían 3 habitaciones y 2 baños, en principio donde tendría mas sentido sería reduciendo el salón, y mover el espacio de comida a la zona de terraza cubierta, pero no sabemos la viabilidad de esta opción, o si hay diferentes alternativas y el coste de estas, incluso si es recomendable hacerlo por el tamaño que tendrían los espacios. ¿Qué opciones tendría? ¿Cuál sería el coste aproximado de esa reforma?

Adjunto el plano de la vivienda para ver si alguien puede echarnos una mano.

Gracias de antemano,

Un saludo,

Aron
Aron preguntó sobre
Reformas Viviendas
Actualizado Hace 2 años

¿Podría sacar 1 habitación adicional?

Buenas tardes,

Soy nuevo en esto, por lo que seré breve.

Estamos planteándonos sacar una habitación adicional a este piso bajo con jardín, en total serían 3 habitaciones y 2 baños, en principio donde tendría mas sentido sería reduciendo el salón, y mover el espacio de comida a la zona de terraza cubierta, pero no sabemos la viabilidad de esta opción, o si hay diferentes alternativas y el coste de estas, incluso si es recomendable hacerlo por el tamaño que tendrían los espacios. ¿Qué opciones tendría? ¿Cuál sería el coste aproximado de esa reforma?

Adjunto el plano de la vivienda para ver si alguien puede echarnos una mano.

Gracias de antemano,

Un saludo,

¿Tienes alguna pregunta?
Pregunta a la comunidad

9 Respuestas

Antonio Cilea
Antonio Cilea
Antonio Cilea respondió... Antonio Cilea Arquitecto (Barcelona, Barcelona) Antonio Cilea Arquitecto - hace 2 años

Buenas,

Creo que es imposible salvo que no aumentáis volumetría y que se ocupe parte de la terraza. Haciendo asi se podría hacer una nueva habitación a lado del baño actual. No se me ocurren otras cosas porque el espacio es muy pequeño.

Si estais por Barcelona, contactad conmigo

Responder
¿Inapropiado? Reporta una incidencia
Victor Hugo Landazuri  Obando
Victor Hugo Landazuri  Obando
Victor Hugo Landazuri Obando respondió... Hyhcontruciones (El Aeroport del Prat, Barcelona) Hyhcontruciones - hace 2 años

Buenos días, lo mejor es verlo ver posibilidades, nosotros si estas en barcelona, lo vemos y le damos presupuesto sin compromiso como en este caso

2 fotos
Responder
¿Inapropiado? Reporta una incidencia
Jose Luis
Jose Luis
Jose Luis respondió... Construsan (Torrejón de Ardoz, Madrid) Construsan - hace 2 años

Si están en Madrid, podemos hacerle una visita y valorar las opciones.

Un saludo

Responder
¿Inapropiado? Reporta una incidencia
Andrés Enrique Goldberg Aimeri
Andrés Enrique Goldberg Aimeri
Andrés Enrique Goldberg Aimeri respondió... Aega Proyecto Y Obra (Barcelona, Barcelona) Aega Proyecto Y Obra - hace 2 años

Buenos días,

La opción que comentas es viable pero vale la pena explorar otras opciones. Para hacerlo debidamente lo suyo sería concertar una visita, ver el espacio y todas sus posibilidades y a partir de allí poder hacer propuestas que luego se presupuestarían.

Nosotros tenemos experiencia en ello, si nos contactas te ayudaremos con mucho gusto.

Te adjunto fotos del resultado de un caso similar.

2 fotos
Responder
¿Inapropiado? Reporta una incidencia
Olga
Olga
Olga respondió... Santos Design (Barcelona, Barcelona) Santos Design - hace 2 años

Bajo mi experiencia se tendría que hacer un estudio del espacio para poder ver cuál sería la mejor solución y/o aportar nuevas distribuciones. Por eso contactar con un interiorista sería una buenísima opción.

Responder
¿Inapropiado? Reporta una incidencia
Olga
Olga
Olga replicó... Santos Design (Barcelona, Barcelona) Santos Design - hace 2 años

Nosotros hacemos el estudio del espacio y podemos darte presupuesto sin compromiso

¿Inapropiado? Reporta una incidencia
Jose Talavera
Jose Talavera
Jose Talavera respondió... J. TALAVERA - DECORACION Decoradores y reformas (Madrid, Madrid) J. TALAVERA - DECORACION Decoradores y reformas - hace 2 años

Buenos días, lo mejor es verlo , y ver las posibilidades, nosotros si es en Madrid, lo vemos y le damos presupuesto sin compromiso

Responder
¿Inapropiado? Reporta una incidencia
Miguel
Miguel
Miguel respondió... Mamg Reformas (Sevilla, Sevilla) Mamg Reformas - hace 2 años

Como te conviene hacer en pladur o ladrillos

Responder
¿Inapropiado? Reporta una incidencia
Ricardo Manuel Fernández Brenis
Ricardo Manuel Fernández Brenis
Ricardo Manuel Fernández Brenis respondió... Reformas Rf (Madrid, Madrid) Reformas Rf - hace 2 años

Hola buenos días podríamos hacerle una visita sin ningún compromiso para ver el área a trabajar y hacerle un presupuesto exacto

Responder
¿Inapropiado? Reporta una incidencia
Deja tu respuesta

Para escribir una respuesta debes estar registrado. No está permitido incluir teléfonos de contacto, e-mails o enlaces a páginas web externas en este apartado, dicho contenido será moderado y eliminado.

Adjuntar fotografías
Pide presupuestos de reformas viviendas en tu zona

Escoge un tipo de trabajo

¿Eres un profesional? Consigue más clientes fácilmente
Registrarse como profesional