¿Qué aparato de aire acondicionad debo comprar?

Hola!

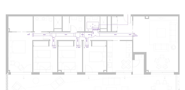
Estoy buscando una máquina potente que se ajuste a los 160m2, 125m2 útiles de mi nuevo piso con 4 habitaciones y un salón bastante amplio (prefiero Daikin o mitsubishi) y estimación de cuánto me costaría zonificar con AirZone conectado a internet.

El piso tiene preinstalación de los canales y los tubos, por lo que sólo necesito máquina+instalación+airzone.

¿Qué me recomendáis? ¿merece la pena zonificar?

Pedro
Pedro preguntó sobre
Aire Acondicionado
Actualizado Hace 7 años

¿Qué aparato de aire acondicionad debo comprar?

Hola!

Estoy buscando una máquina potente que se ajuste a los 160m2, 125m2 útiles de mi nuevo piso con 4 habitaciones y un salón bastante amplio (prefiero Daikin o mitsubishi) y estimación de cuánto me costaría zonificar con AirZone conectado a internet.

El piso tiene preinstalación de los canales y los tubos, por lo que sólo necesito máquina+instalación+airzone.

¿Qué me recomendáis? ¿merece la pena zonificar?

¿Tienes alguna pregunta?
Pregunta a la comunidad

5 Respuestas

Respuestas útiles 2
CLIMATEMP SUR 8490 S.L.
CLIMATEMP SUR 8490 S.L.
CLIMATEMP SUR 8490 S.L. respondió... Climatemp (Mairena del Aljarafe, Sevilla) Climatemp - hace 7 años

Hola Pedro:

Según el plano que se adjunta a tu pregunta, se trata de una preinstalación ya realizada.

No nos indicas la zona de residencia ya que puede ser importante a la hora de determinar la potencia necesaria del equipo a instalar. Actualmente todos son con Bomba de Calor y de tecnología Inverter.

En este caso lo importante, además de la potencia frigorífica, es el caudal de aire que tenga el equipo a instalar, ya que de ello depende que el aire "llegue" al final de los conductos con la fuerza necesaria para poder climatizar todas las estancias.

La unidad interior iría en el techo del cuarto de baño que tendría que ser desmontable y tener unos 30 cm de hueco útil para que entre la unidad, siempre que no fuera necesario instalar un equipo de alta presión, en cuyo caso sería más el hueco necesario.

Visto por encima, yo optaría por un equipo Mitsubishi Electric modelo 140 (existen varias versiones en esta potencia), que podría cubrir todas las necesidades.

Sobre el sistema de rejillas motorizadas decirte que debe primar el confort y la calidad de vida que te proporciona sobre el ahorro energético, ya que estos sistemas aún son caros y, si se instalan solo por el ahorro eléctrico entonces no compensa tanto su inversión ya que es a medio o largo plazo. No obstante debo decir que el sistema de rejillas motorizadas (airzone es una marca de las muchas que existen) proporciona un confort excelente.

Mi consejo es que contactes con algún instalador de tu zona y que realice una visita a la vivienda para ver todos los detalles (SOBRE TODO los tamaños de las tuberías pre-instaladas, ya que si no son las correctas para el equipo que se monte te podrías quedar sin garantía del fabricante), y que te confeccione un presupuesto detallado y "cerrado" para que no tengas sorpresas de última hora.

Un saludo

Responder
¿Inapropiado? Reporta una incidencia
Felipe Gil
Felipe Gil
Felipe Gil respondió... Climatización LG (Fuenlabrada, Madrid) Climatización LG - hace 7 años
El precio por hora sería... 16 €

buenos días

lo mejor bomba de calor o una maquina de casete si tienes espacio donde instalar bien el equipo

techos bajados para meter los conductos. también como esta preinstalado, te tocaría mirar bien la distribución pero para eso es mejor una visita ínsito

Responder
¿Inapropiado? Reporta una incidencia
Qlimatiza & Automatiza SL.
Qlimatiza & Automatiza SL.
Qlimatiza & Automatiza SL. respondió... Qlimatiza & Automatiza SL (Cubas de la Sagra, Madrid) Qlimatiza & Automatiza SL - hace 7 años

Hola Pedro, ya tienes repuestas sobre la maquina y nosotros te podemos asesorar sobre la zonificacion, dado que con este tipo de control automático optimizarás los rendimientos de tus máquinas, ahorrando en consumo y horas de trabajo de tu equipo. Dado que tienes la preinstalacion seria fácil la colocación rejillas motorizadas y solo tendrías que adecuar los controles termostaticos. Un saludo

Responder
¿Inapropiado? Reporta una incidencia
Pedro respondió... Particular - hace 7 años

Gracias por las respuestas, lo tendré en cuenta!

La casa está en Madrid capital (zona norte).

Responder
¿Inapropiado? Reporta una incidencia
Manuel Riquelme climatización y electricidad
Manuel Riquelme climatización y electricidad
Manuel Riquelme climatización y electricidad replicó... Manuel Riquelme Climatización Y Electricidad (Elche, Alicante) Manuel Riquelme Climatización Y Electricidad - hace 7 años

Hola Pedro, somos empresa instaladora de climatización y electricidad en la provincia de Alicante, para el trabajo que comentas y superficies que describe el plano , si nos vamos a la máquina mas eficiente y potente para esa estancia de 125 m2, sin duda, si el presupuesto lo permite, elegiría una Mitsubishi electric power 140 VJA. El precio que te puede costar la instalación por una empresa autorizada y con experiencia rondaría los 6000 euros máquina e instalación con IVA. El Airzone que comentas podría subirte unos 1500 o 2000 euros la factura total según la empresa instaladora.

Somos instaladores autorizados en electricidad (REBT) y máquinas térmicas y de climatización(RITE)

Un cordial saludo

¿Inapropiado? Reporta una incidencia
Deja tu respuesta

Para escribir una respuesta debes estar registrado. No está permitido incluir teléfonos de contacto, e-mails o enlaces a páginas web externas en este apartado, dicho contenido será moderado y eliminado.

Adjuntar fotografías
Pide presupuestos de aire acondicionado en tu zona

Escoge un tipo de trabajo

¿Eres un profesional? Consigue más clientes fácilmente
Registrarse como profesional