¿Cuánto me podría costar la reforma integral para un piso de 71 metros cuadrados?

Buenos días, quería saber cuánto me podría costar la reforma integral de un piso de 71 metros cuadrados cambiando la distribución y otros aspectos como los siguientes:

- Pasar de 3 habitaciones a 2.

- Cambiar la ubicación del baño e incluir un aseo extra en una de las habitaciones.

- Cambiar los habitáculos de salón, cocina y comedor a una solo estancia que incluya todo con isla en la parte de la cocina.

- Poner suelos de madera.

- Poner ventanas de climalit.

- Cambiar puertas.

- Cubrir las terrazas para aprovechar todos los metros posibles.

- Fontanería, pintura, etc.

El inmueble se encuentra en la localidad de Cartagena.

Arriba dispone de una terraza de 70 metros comunitaria pero a la cual sólo se puede acceder desde mi piso, ¿podría hacer modificaciones en ella?

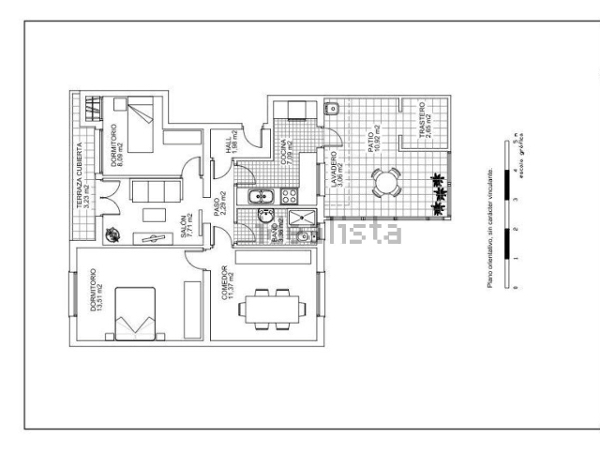
Adjunto foto del plano de la vivienda.

Un saludo y gracias anticipadas.

Natalio
Natalio preguntó sobre
Reformas Viviendas
Actualizado Hace 4 años

¿Cuánto me podría costar la reforma integral para un piso de 71 metros cuadrados?

Buenos días, quería saber cuánto me podría costar la reforma integral de un piso de 71 metros cuadrados cambiando la distribución y otros aspectos como los siguientes:

- Pasar de 3 habitaciones a 2.

- Cambiar la ubicación del baño e incluir un aseo extra en una de las habitaciones.

- Cambiar los habitáculos de salón, cocina y comedor a una solo estancia que incluya todo con isla en la parte de la cocina.

- Poner suelos de madera.

- Poner ventanas de climalit.

- Cambiar puertas.

- Cubrir las terrazas para aprovechar todos los metros posibles.

- Fontanería, pintura, etc.

El inmueble se encuentra en la localidad de Cartagena.

Arriba dispone de una terraza de 70 metros comunitaria pero a la cual sólo se puede acceder desde mi piso, ¿podría hacer modificaciones en ella?

Adjunto foto del plano de la vivienda.

Un saludo y gracias anticipadas.

2 profesionales han dejado sus precios aproximados para este tipo de trabajo

Precio aproximado
desde
27.000 €
hasta
30.000 €
en un minuto y sin compromiso

4 Respuestas

Alberto
Alberto
Alberto respondió... Gisai Arquitectura e Ingenieria (Murcia, Murcia) Gisai Arquitectura e Ingenieria - hace 4 años
El precio para este trabajo sería... 30.000 €

Buenas tardes, si nos pide presupuesto a través de nuestra ficha de habitissimo: Podemos programar una visita y valorar exactamente a precio cerrado la intervención, puesto que el precio ronda entre los 30-40 mil euros dependiendo de lo que se haga.

Responder
¿Inapropiado? Reporta una incidencia
Edificalia Viviendas SA
Edificalia Viviendas SA
Edificalia Viviendas SA respondió... Edificalia Viviendas S.A. (Pozuelo de Alarcón, Madrid) Edificalia Viviendas S.A. - hace 4 años

Hola buenos días.

Para esos metros2, estime un precio realista A PARTIR de 35.000€ + IVA ---- (500€/por m2), con variantes según calidades.

En la terraza superior, dificilmente pueda realizar ninguna intervención, salvo que haya acuerdo en junta de propietarios...

Cualquier cerramiento, o intervencion tipo pérgola, porche, está sujeta a una normativa urbanística y por encima de todo a la autorización de La Comunidad de Propietarios.

Conocemos casos de cerramientos de áticos ejecutados por acuerdo en junta, con unas directrices y están construidos a día de hoy sin problemas...

Y otros ejecutados por el dueño sin autorización, que han sido derribados con una simple denuncia en el ayuntamiento... También algunos construidos sin autorización cuya ilegalidad a prescrito y siguen en pie.

Responder
¿Inapropiado? Reporta una incidencia
José Luis Búrdalo Martínez
José Luis Búrdalo Martínez
José Luis Búrdalo Martínez respondió... compás y cartabón (Alcalá de Henares, Madrid) compás y cartabón - hace 4 años

Buenas tardes.

En el momento que se cambia distribución, se tocan instalaciones, se cambian ventanas (las ventanas por cierto no son Climalit que solo es una marca comercial de vidrio), se cambian todos los acabados, etc... raro que pueda bajar de los 600 €/m2 + IVA.

La terraza, si es comunitaria, por mucho que el acceso solo sea por su vivienda, no es de su propiedad, solo tienen el derecho de uso, no puede hacer nada con ella.

Saludos.

Responder
¿Inapropiado? Reporta una incidencia
Reformas Dominguez DOMINGUEZ   BAYON
Reformas Dominguez DOMINGUEZ   BAYON
Reformas Dominguez DOMINGUEZ BAYON respondió... Reformas Dominguez (Madrid, Madrid) Reformas Dominguez - hace 4 años
El precio para este trabajo sería... 27.000 €

Precio estimado con materiales de calidad media alta

Responder
¿Inapropiado? Reporta una incidencia
Deja tu respuesta

Para escribir una respuesta debes estar registrado. No está permitido incluir teléfonos de contacto, e-mails o enlaces a páginas web externas en este apartado, dicho contenido será moderado y eliminado.

Adjuntar fotografías
Pide presupuestos de reformas viviendas en tu zona

Escoge un tipo de trabajo

¿Eres un profesional? Consigue más clientes fácilmente
Registrarse como profesional