Sara
¿Dónde es mejor ubicar un lavadero en un dúplex?

Hola a todos.

Me gustaría recibir opinion respecto a donde es mejor ubicar el lavadero en un duplex. Si bien es cierto, que pegado a la cocina, es muy práctico, residiendo en una sola planta.

Aun asi.. tenemos dudas.

Podrias asesorarme. Adjunto algunas imagenes de los planos.

Gracias

Sara
Sara preguntó sobre
Reformas Viviendas
Actualizado Hace 5 años

¿Dónde es mejor ubicar un lavadero en un dúplex?

Hola a todos.

Me gustaría recibir opinion respecto a donde es mejor ubicar el lavadero en un duplex. Si bien es cierto, que pegado a la cocina, es muy práctico, residiendo en una sola planta.

Aun asi.. tenemos dudas.

Podrias asesorarme. Adjunto algunas imagenes de los planos.

Gracias

¿Tienes alguna pregunta?
Pregunta a la comunidad

9 Respuestas

Sara respondió... Particular - hace 5 años

Gracias Jose Luis.

Creo que al final se va a quedar ahí.

Si, el baño compartido para los niños, es genial.

Responder
¿Inapropiado? Reporta una incidencia
José Luis Búrdalo Martínez
José Luis Búrdalo Martínez
José Luis Búrdalo Martínez replicó... compás y cartabón (Alcalá de Henares, Madrid) compás y cartabón - hace 5 años

Gracias a usted.

Saludos.

¿Inapropiado? Reporta una incidencia
Jorge Nuño
Jorge Nuño
Jorge Nuño respondió... Nuño Arquitectura (Almoradi, Alicante) Nuño Arquitectura - hace 5 años

Buenos días Sara.

Como indicamos, depende del ruido, cuándo se produzca, o si éste es excesivo.

También depende de donde quiera tender, su accesibilidad o si la terraza da a la calle y se ve la ropa, que parece que no.

Un saludo

Responder
¿Inapropiado? Reporta una incidencia
Sara replicó... Particular - hace 5 años

Gracias!!

¿Inapropiado? Reporta una incidencia
José Luis Búrdalo Martínez
José Luis Búrdalo Martínez
José Luis Búrdalo Martínez respondió... compás y cartabón (Alcalá de Henares, Madrid) compás y cartabón - hace 5 años

Buenas tardes.

Coincido con lo indicado por los compañeros, no obstante... con las imágenes que no se han subido, seguro le podremos indicar mejor.

Saludos.

Responder
¿Inapropiado? Reporta una incidencia
Rafael Sollero
Rafael Sollero
Rafael Sollero respondió... Hominem Arquitectura (Sevilla, Sevilla) Hominem Arquitectura - hace 5 años

Buenas tardes Sara,

en principio si tienes espacio el lugar más adecuado para situar el lavadero es en la planta de arriba o junto a la zona de tendido si esta está abajo.

Al final se trata de reducir la circulación de la ropa, la mayor parte de la ropa se genera en la planta de dormitorios, pero es cierto que si la zona de tendido está abajo al final deberías de bajar la ropa y sería el mismo camino.

Espero haberte ayudado, un saludo

Responder
¿Inapropiado? Reporta una incidencia
Jorge Nuño
Jorge Nuño
Jorge Nuño respondió... Nuño Arquitectura (Almoradi, Alicante) Nuño Arquitectura - hace 5 años

Buenos días Sara.

No se ven las imágenes que dice ha enviado.

De primeras, siempre comentamos a nuestros clientes que el lugar adecuado del lavadero es la planta de arriba. Esto es debido a que la mayor parte de la ropa, sábanas, toallas, etc, se generan en la planta de dormitorios.

El inconveniente que puede tener es que arriba no tenga espacio para tender o que, por ejemplo, moleste la lavadora si la enciende por las noches.

Un saludo

Responder
¿Inapropiado? Reporta una incidencia
Sara replicó... Particular - hace 5 años

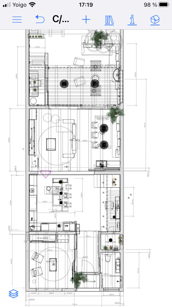
Adjunto imágenes.

En estos dibujos, esta ubicada en el pasillo, ocupando parte de un dormitorio.

Gracias a todos por los comentarios

2 fotos
¿Inapropiado? Reporta una incidencia
José Luis Búrdalo Martínez
José Luis Búrdalo Martínez
José Luis Búrdalo Martínez replicó... compás y cartabón (Alcalá de Henares, Madrid) compás y cartabón - hace 5 años

Buenas noches Sara.

Pues no es mal sitio dónde está situada la zona de lavado, si como dice Jorge, no enciende la lavadora por las noches o el espacio está suficientemente bien aislada, es dónde menos estorba y está bien resuelto... por cierto, muy interesante la idea del baño común para los dos dormitorios, me recuerda a uno que proyecté en un local de fisioterapita, también accesible desde dos zonas del negocio, para sala de espera o para usuarias de recuperación de suelo pélvico.

Saludos.

¿Inapropiado? Reporta una incidencia
Deja tu respuesta

Para escribir una respuesta debes estar registrado. No está permitido incluir teléfonos de contacto, e-mails o enlaces a páginas web externas en este apartado, dicho contenido será moderado y eliminado.

Adjuntar fotografías
Pide presupuestos de reformas viviendas en tu zona

Escoge un tipo de trabajo

¿Eres un profesional? Consigue más clientes fácilmente
Registrarse como profesional